户型解析
套内面积73㎡,两房,业主需求三房,满足二胎,简单即可。外地人在厦门买房的不易,我们都懂。
前后对比

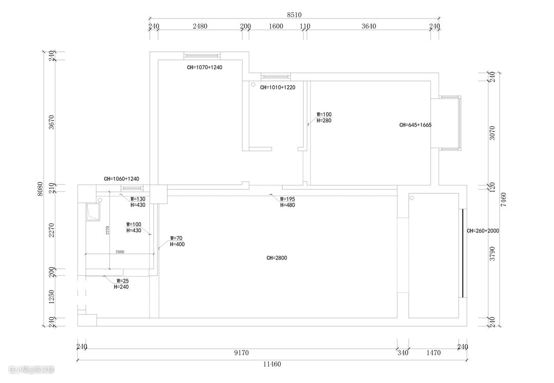
原始结构图

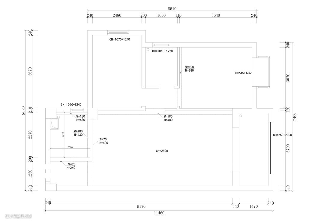
最终平面图
玄关



进门高柜收纳更多东西,配有的换鞋凳及饰品挂件
客厅
客餐厅及阳台打通使空间更大更通透






餐厅



餐厅用卡座,让空间更好的利用

厨房
U型的台面,满足更多需求


主卧




飘窗结合落地玻璃,闲暇时光可看看外面的世界


立邦太空漫步灰做的床头背景
儿童房
有童真,颜色及造型能自由畅想,上下梯柜满足更多可能


书桌及书柜


飞机灯
多功能房

榻榻米多功能房

阳台
两用阳台/生活阳台/小书房


小书房

阳台也需好看的灯装饰
卫生间

