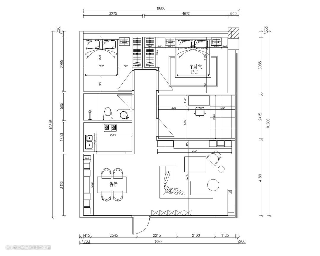
这是一套面积为89㎡的三居 业主需求 :年轻夫妻,一个小孩,家里老人偶尔来住 ,小孩学习空间要大,女主人喜欢轻奢的效果,但是又不能纯轻奢,要简约大气,实用性强。 结合业主需求 ,设计师将居室定义为现代简约轻奢风,无主灯设计简约高级 基于业主的生活习惯与爱好,对功能进行规划 。

客厅的设计没有太复杂,对于电视背景墙采用了岩板+格栅,电视嵌入式,让岩板与电视形成一个整体,旁边搭配一组透明玻璃柜,摆上些艺术品,搭配着良好的采光与同色系的家具 这样的客厅让看电视也成了一种享受.

通过白色窗纱透来的光将整个空间点亮,浅灰色的地砖搭配深灰色的茶几非常的简约大气


考虑到收纳的问题,在餐厅设计了餐边柜,除了白色门板,还搭配透明玻璃,能够随时放置酒类,艺术品和装饰品,白色门板的柜体可以用来储藏一些日常用品 、不常用的工具等等。

橙色灰色的餐桌的搭配,总是忍不住想多看两眼~

厨房整体色调与客厅和谐统一,简单的L型操作台,满足了日常烹饪洗切炒。

主卧的背景墙用岩纹板+木格栅,搭配着壁灯及灯带,氛围感拉满 。敞开式衣柜,隔板横向流动 ,功能分区,既能被充分利用 ,也能保持秩序感 ,整体搭配低奢却不失格调.



次卧设计浅灰色背景墙 增加层次感,简约大气,衣柜搭配同色系推拉门设计,一门到顶造型简洁,最大化利用空间解决收纳问题。


卫生间采用干湿分离,设计的玻璃淋浴房,能保证卫生间的明亮与通透。 决定卫生间颜值很大一部分因素就是其选择的色调 ,色调统一能够很好的从视觉效果扩大空间,同时增加空间的整体性,让卫生间看上去更加干净整洁。 卫生间的动线也需要合理分布,常见的就是洗手台与外侧,如厕位于中间,洗浴区安置在内部。

小次卧设计了榻榻米、衣柜、书柜、书桌一体式,L型布局将功能提升的同时保留了设计感,考虑需要辅导小孩作业,设计了陪读区,柜体颜色就是白色+木色,暖调的色系就给人一种温馨感,木地板和房间色系相呼应,阳光偶尔透过玻璃窗,治愈又舒适。



