访问APP
客厅
餐厅
主卧
次卧
厨房
卫生间
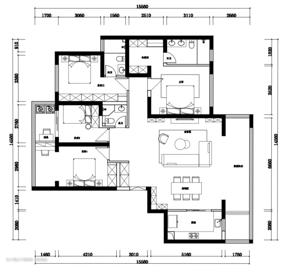
方案解析

千思案例 | 208㎡现代轻奢:江景大平层,乐享高端体验新家

千思装饰(株洲店)
关注
户型
四居以上
风格
轻奢风
面积
208㎡
位置
长沙市
方式
全包
预算
208万
方案解析

设计理念:这是一套现代轻奢风格的装修案例。奢而不华是轻奢风最大的特点,全屋暖调配上中性灰色,让空间多了一份层次感,显得更深邃。以“实用+宜居"为准则,保留超大观景阳台。大横厅与大平层的户型,将空间的寸土寸金恰到好处的利用起来。适量的金色是轻奢风的精髓之一,运用黄铜元素来提升空间贵气感,不易俗套。

入户见厅,厨房-餐厅-客厅一体的大横厅户型,超大景观阳台封窗处理后纳入室内空间,光线通透明亮;访客动线与生活动线合理划分。

客厅

从玄关入户,空间一览无余,动线上灵活贯通。色彩上以柔和的木质搭配以哑光金属和岩板等材质,营造奢华高级的气质。

左侧定制嵌入式玄关柜,无把手设计配以浅灰色更显空间流畅。中部留空设计,安置镜面和灯带,方便出门整理仪容仪表。

客厅空间,大横厅户型,空间以灰色+米色+橡木色打底,融合不同色彩的软装配饰,增加空间的沉稳感,在简洁和轻奢中找到平衡。

在浅色调空间内,灰色与蓝色布艺沙发进行大胆的色彩冲撞。回字形吊顶搭配两盏大小不一水晶吊顶,暖暖的光晕打在沙发上,更显空间华丽。

电视背景墙采用仿大理石岩板+金色线条拼接,两侧做对称式的开放式收纳兼展示柜,空间更饱满,满足视觉的同时增加储物空间。

镜头拉近,作为全屋最为吸睛惬意之处--景观阳台,容得下闲情雅致,也装得下良辰美景。阳台做封窗处理之后,纳入室内空间。

客餐厅一体,流畅的动线让空间获得了极大的利用率,轻奢优雅的高端扑面而来。

餐厅

餐厨之间以推拉门隔断,餐边柜置于夹角。大理石餐桌搭配灰色皮质餐椅舒适且时尚,利用自然光线,营造明亮惬意的用餐空间和氛围。

圆弧一字餐灯简约大气,质感高级。一侧餐边柜选择玄关柜同款柜体,空间彼此独立又联系。另一侧展示柜做玻璃柜门,奢而不华的新家格调。

厨房

橱柜选择无把手的简约柜面,全封闭的柜体设计质感十足,吊柜与地柜设计让收纳空间翻倍,新增视觉魅力,让烹饪成为一件美好幸福的事情。

主卧

主卧,整个空间由米白过渡到梦幻的紫色,温柔浪漫。抽屉+收纳格+背板镜面组合的梳妆台在床尾靠窗一角,光线照射得室内明媚烂漫。

床头背景墙选择米色软包+对称金丝线条组合,顶面射灯辅助照明。浅灰色床头柜摆上一束鲜花,浪漫且自由,营造柔和舒适的睡眠环境。

主卧空间兼具衣帽间功能,原木色的木纹衣柜自然耐看,两侧对立皆通顶设计,右侧留出部分空间定制书桌,简单宁静。

次卧

儿童房空间整体以白色打底,辅以粉色点缀,烂漫可爱。与阳台之间以推拉门隔断,在阳台安置烘洗设备,缩短家务动线,提高效率。

卫生间

卫生间空间,经典干湿分离设计,以玻璃门隔断干区与湿区。木质浴室柜搭配整面镜柜,在视觉上拉伸空间,干净又保持清爽。