方案解析
本案为套内115平米的4房户型,房子是女儿给父母买的,一家三口居住,他们都在机场工作,平时上班都很忙,客户觉得原始户型的阳台很大,卧室比较小,厨房的空间也很零碎,客厅不够宽敞明亮,而且储物空间也不够。正因为平时上班很忙,所以更加珍惜家人在一起聚餐的时光,所以客户想把整个厨房做得更加宽敞明亮一些,通过沟通,决定做开放式厨房和吧台的一体化设计,与客厅空间融为一体,女儿的卧室扩大,留有独立的办公空间,再通过后期的软装设计搭配,给客户营造一个宽敞明亮、简洁时尚的家。

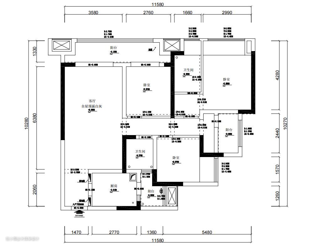
原始结构图

平面布置图
客厅
封闭阳台与客厅融为一体,使客厅更加大气敞亮。



餐厅
原有餐厅空间非常小,与厨房吧台连接,增加餐厅与厨房的互动性。



厨房
原始厨房和生活阳台都很小,打通后采光、通风、以及储物空间都得到进一步提升。

主卧
拆除卧室原有飘窗,增大空间。



卫生间

商品清单

都是客户真实购买的数据
