方案解析
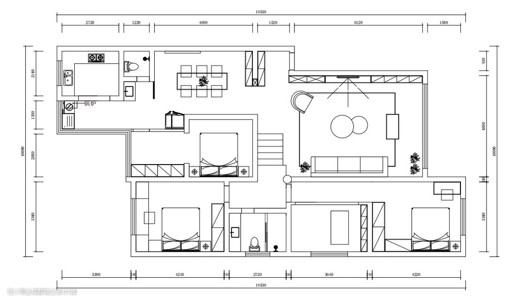
本案是一套面积为152平米老房转换为新房的项目。屋主在这个家里长大,对家的感情比较深厚,住了很多年。设计师根据业主的喜好、需求及生活习惯把家重新打造完成。房子面积较大,有四个房间,但却只保留了三室,拿出一个空间作为多功能房,休闲的同时也能够作为书房办公。

客厅
客厅整个空间较大,目前不仅仅是以会客为主,更多的是休闲、放松。整体采用咖色墙面,搭配木纹墙板、奶油色硬包等造型,在灯光下让空间更有层次感。客厅窗帘采用柔纱帘,让整个客厅更显通透、明亮。


客厅整个空间采用无主灯设计,与原本的阳台打通作为一体,让空间更显简单,大气!灯光下的客厅,氛围感满满。


电视背景较大,考虑结合一部分的功能柜与电视背景一起做。保证一定储物的同时也能够保证美观。



餐厅
餐桌采用850*1800的大木纹桌,考虑父母后期过来一起聚餐。墙面采用简单的石膏板与实木格栅的结合,在灯带的衬托下立体感更强。


餐椅采用皮质藤编椅与木纹桌的结合,让空间层次进一步提升。



厨房
厨房目前采光很不错,取消原本的单开门,拆除墙体,做推拉门让空间更显通透、明亮!门板颜色采用木纹色与白色做对比,让厨房更有家的味道。


主卧
主卧以休息为主,整体造型、家居比较简单。主要用灯光打造氛围感。


书房
书房也作为多功能间,即可以作为办公区使用也能够休闲阅读区。


次卧
次卧主要作为儿童房使用。目前小朋友比较小,玩具、学习的书籍较多,所以相对柜子也考虑的比较多。书桌与书柜采用整体定制,作为一个整体。保证储物的同时,立体感也显得更强。




卫生间
浴室柜采用岩板定制,搭配水磨石瓷砖,让空间更显精致。


设计团队
寺季空间设计工作室
