业主需求: ● 解决室内采光问题 ● 布局要大气,并希望带有东方元素 ● 优化功能空间,满足全家人的居住需求 故事的开始,源于业主对原设计的不满,带着问题找到我们,希望得到专业性的设计帮助。 由于是一个土建已经改完的项目,通过实地勘测,设计师发现空间格局有些奇怪,对于一个别墅来说,原有格局的布置显得太小气,没有把一个别墅特有的气韵给表达出来。 所以结合业主需求,设计师在原有框架之上优化格局,茶室阳台外推,连通采光井区域,使室内室外进行联动。又于其他细节之处,将大宅气质一一呈现。

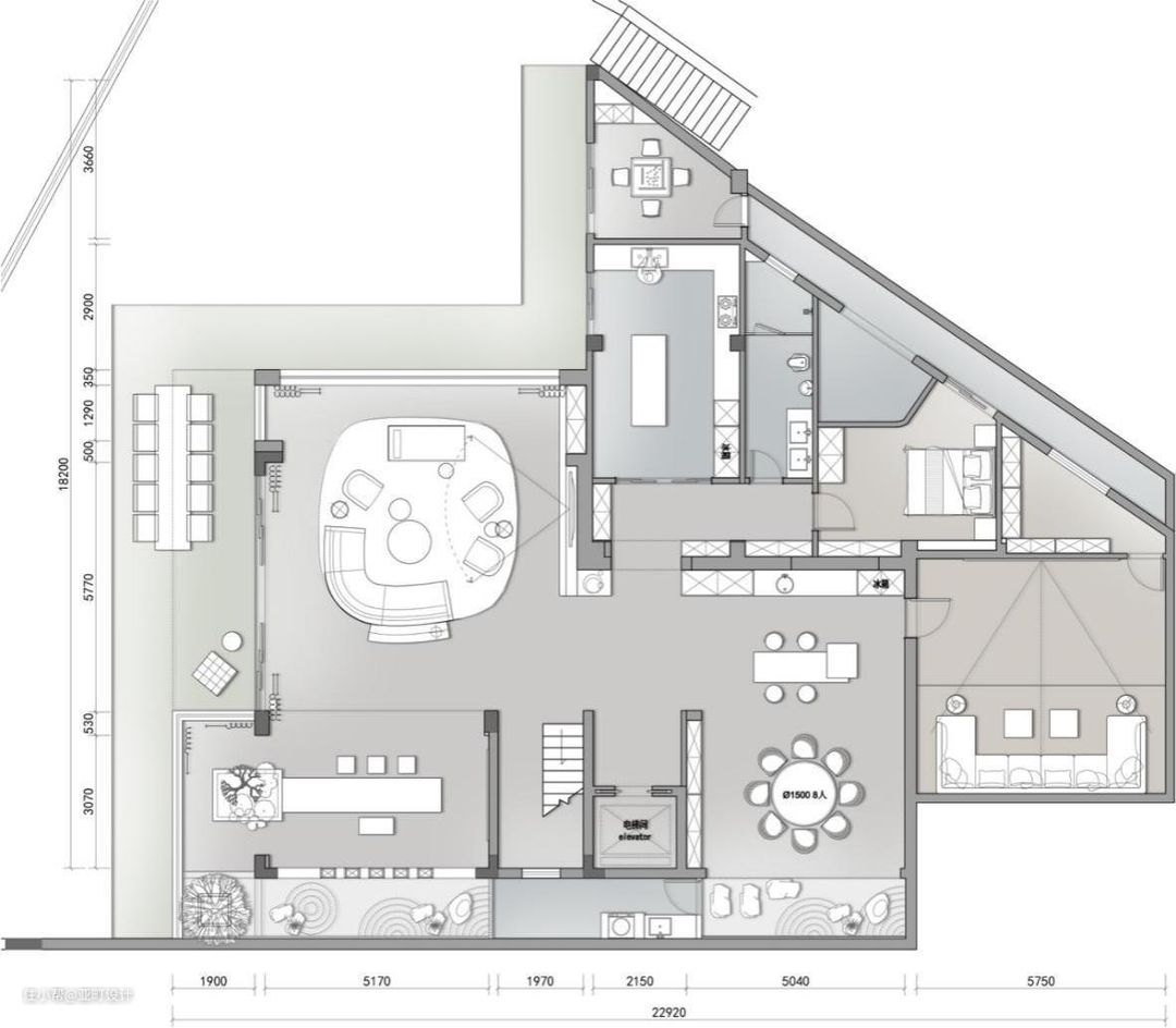
-1f平面布置图

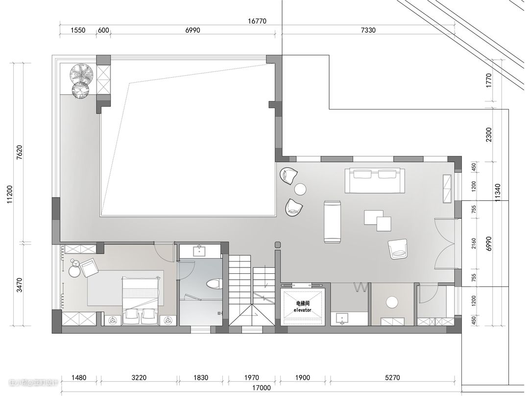
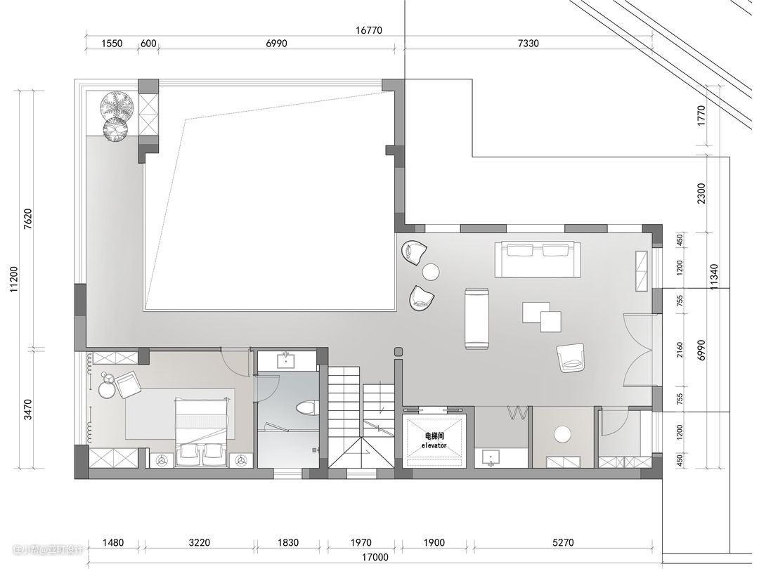
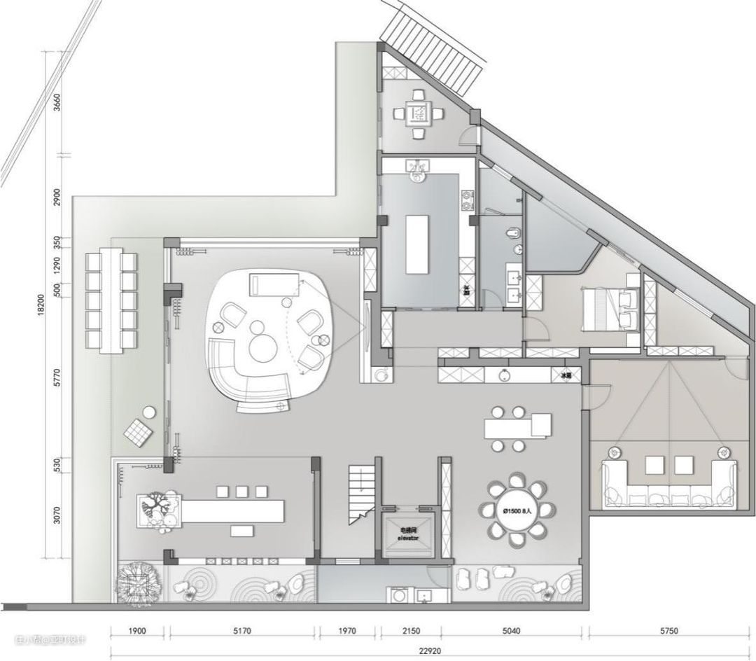
1f平面布置图

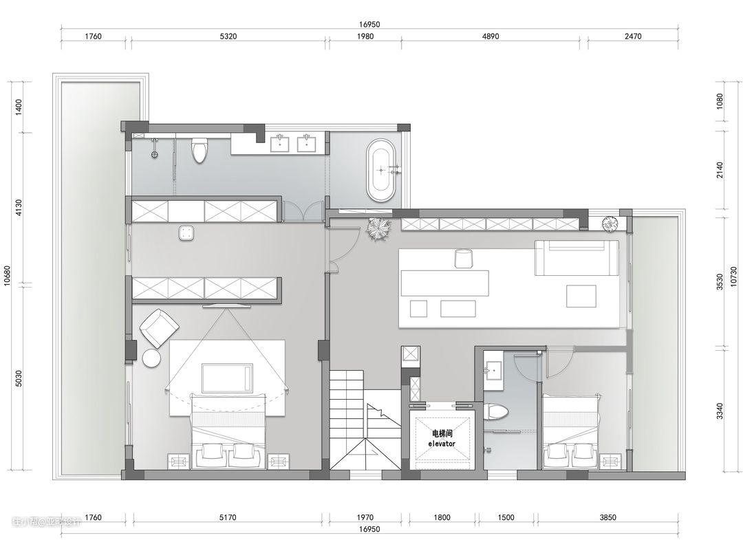
3f平面布置图


“宅以门户为冠带” 双开门设计为出门入户都带上仪式感,推门而入,门外是迎客青松绿意盎然,门内是以下沉式客厅为核心的典雅大厅,极通透的空间设计让视觉享受达到极致。



挑高客厅将两层楼的建筑空间打通,加上悬挂的艺术灯和大理石背景墙,搭配深咖色的沙发,融入中式的语境之中,在时空中凝结出雅致灵动的东方美学。



不同于平视或仰视,从高处俯瞰客厅布局,就能感受到返璞归真的东方哲学。 虽是现代沙发,但高度上追求唐代的低矮坐姿,更接地气的姿态,让人内心放松自在。

带着灰白纹理的楼梯连接上下两层,一整面的大理石电视背景墙与落地窗帘相对。 楼上木饰面与玻璃扶手,楼下意境悠然的泼墨纹理羊毛地毯,相互呼应间让空间契合与对话。


水泥墙将空间重新梳理,灯光与线条勾勒出生命力,提炼出安静安逸的和谐之美。 精巧瓷器摆放在侧边一处镂空置物台,点缀出一丝灵动。


大理石圆餐桌让家人围坐而聚,带着团团圆圆和和美美的传统寓意。 人间热意腾腾,绿植静谧相伴。动静相宜,便是生活。



餐厨空间对于一个家来说,是除了客厅之外最有“人气”的场景,袅袅烟火气,细碎好时节。 餐岛台与橱柜绘出洄游线,素色空间也满满生活气息。



主人房软装与素净的色调能让人匆忙的生活节奏中抽离,落地窗与纯白柔软的纱帘让光线自由洒落,如一剂良药,治愈心灵。



素色墙与木饰面拼接出床头背景墙,圆弧造型流畅又精致,现代简约与温暖原木相遇,让空气与阳光缓缓流动。

三面环山的住宅,处处都是自然景致的绝佳欣赏点,精致如雕塑的半隔断墙打造出层次感,引领视觉望向窗外的巍然衡山。 光线透过落地窗落入纯白浴缸,轻纱翻飞间摇曳出一室悠然惬意。



影音室不需要室外光,但不能缺少室内光。 层层叠叠的线性灯呈拱形将空间环绕,深咖色沙发搭配大理石面的茶几营造出私人时光。 明暗之间,用一部电影的时间享受独处。

一隅茶室,写意人生。 楼上的茶室将阳台往外推,通过落地窗便可览尽风光;楼下的茶室与客厅相连,连通采光井区域让自然光洒下,于无声中落入茶盏。


细腻的岛台一体化茶台和黑色茶椅,亚克力桌腿让茶台轻盈自如,自然的肌理打造充满质感的景观墙,同时与外院景致联动,演绎出空间独有的韵味。 生活不过春水煮茶,芬香悠扬,一晌欢愉。 我们时常在思考,如何通过空间表达更多思想。但实际上,空间自带故事感,它能通过线条弧度、造型材质,从点滴中诉说居住者的生活轨迹。 于是在喧嚣的现代都市之外,这间衡山脚下的别墅,以空间为纸,光线为墨,于静谧本真中写尽缱绻诗意。
