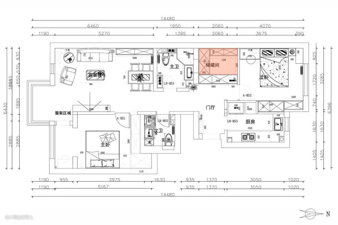
南北朝向、双阳台、双卫、主客分区、储藏间,这套由史先生和太太置办的两居室,拥有了很多先天优势。 但细看之后,还是能戳破一些「户型泡沫」: ● 厨房面积小是硬伤,收纳、操作空间均不足; ● 储藏间左右两侧的墙体均被门洞隔开,收纳容量「大打折扣」; ● 阳台空间狭窄,实际利用率不高; ● 受门洞限制,次卧缺少合适的储物空间。

住范儿设计师刘杨杨和两位屋主沟通后,对房子做了 4 处改动: ● 将原厨房隔墙从一字形变为 Z 字形,两边分别能塞下进深 61cm 的定制柜; ● 储藏间不再与主卫、卧室相连,内部储物空间得以扩大; ● 确认隔墙可拆除后,次卧门洞向左挪 50cm,右侧新建门垛以布置通顶柜; ● 阳台被纳入次卧,变为化妆区。

除了硬装上的改动,史先生还在家里布置了智能家居: ● 利用智能开关控制空调; ● 灯具采用感应式设计,人靠近或者下班回家开门时即刻亮起; ● 检测到无人活动时,自动关闭家里的灯具和电器; ● 猫咪进入猫砂盆后,卫生间里的排风扇会自动开启。


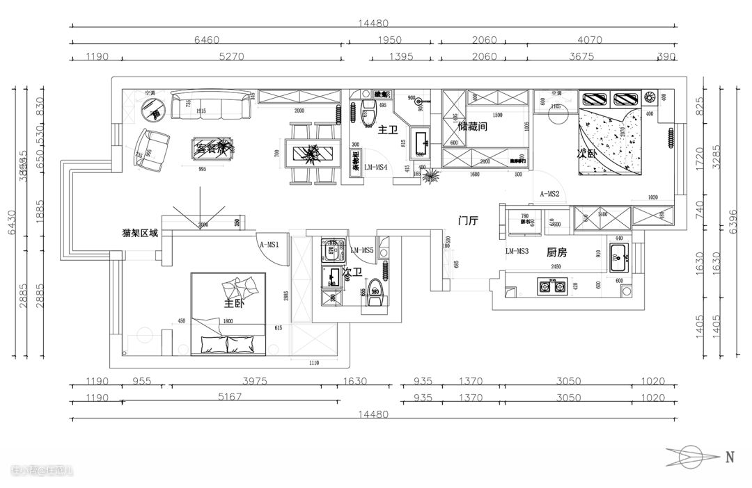
虽然入户门右侧预留的门垛尺寸有限,但屋主夫妇并没有浪费此处空间,定制了进深 18cm 的储物柜,一侧用来隐藏弱电箱和放置光猫、路由器,另一侧收下家里常用的低帮鞋和拖鞋。 上边再安装洞洞板,用来收纳体积小的物品,方便进出门时随手拿取。

正门对着的储藏间,内部规划出了外套、包包收纳区,旁边为穿衣镜和换鞋凳。


▼进出门动线颇为流畅


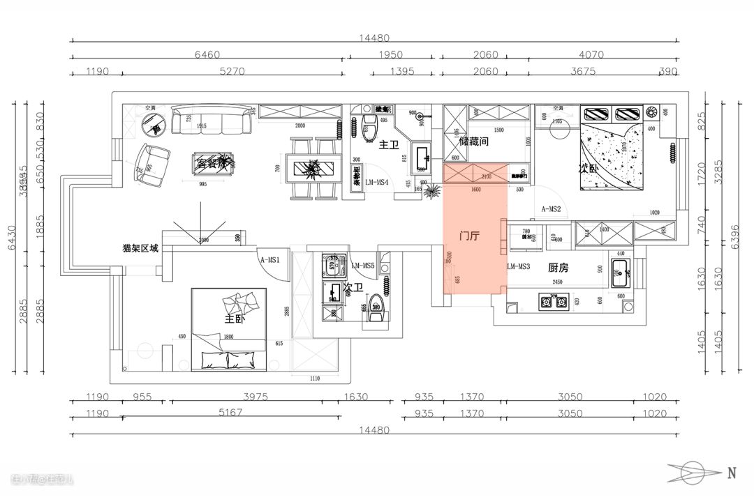
对比其它功能区,客餐厅的改造范围较小,仅是填补了与原次卧相连的阳台门洞。




史先生和太太都喜欢喝咖啡,因此专门在餐桌后边设计了宽 160cm、深 40cm 的餐边柜,存放咖啡机及相关的器具。



两只猫咪很喜欢待在餐桌上,史先生和太太只好在上边铺设餐垫,吃饭时再掀起来。


餐边柜旁的沙发套为科技布材质,史先生分享:「猫咪抓真的抓不烂。」

客餐厅为南向采光的缘故,阳台、书架已被史先生养护的绿植所「占领」,叶片也被精心地调整至窗前。 阳台花架上布置了植物补光灯,若碰上连续阴天的天气,可以打开为绿植照射。 史先生说:「补光灯最好买物理开关的,这样可以用智能开关控制,方便和光照传感器联动。」


电视背景墙的设计颇为巧妙,外边没有露出一根电线,看着十分清爽。

这也因为史先生提前规划了电路,将所有电线从墙中穿到柜子内部连接,后期再配置红外信号转发器解决遥控问题。 另外,由于柜子内部收纳的无线路由器、交换机、ALL IN ONE 一体机、NS 等设备,需要通风散热,史先生也在电视柜底板打孔加装了温控风扇。


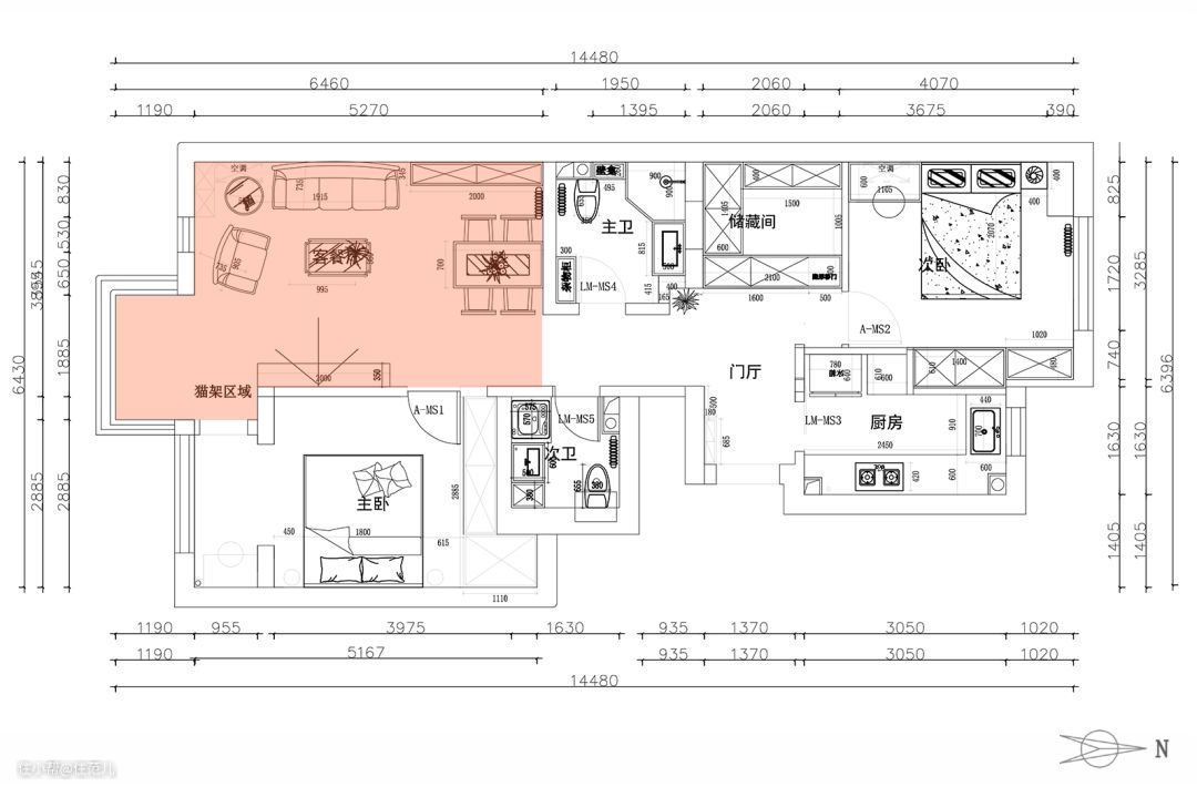
被封上的次卧阳台门洞,现在装上了猫咪爬架;旁边的主阳台顶部配有晾衣架,需要时即可拉下使用。



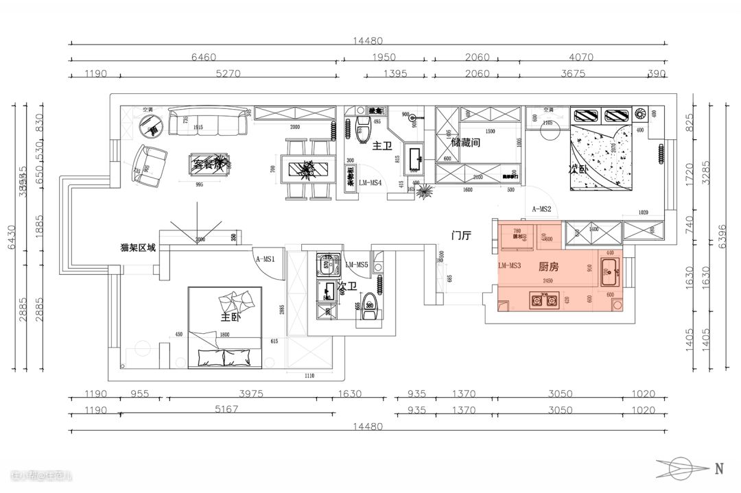
原厨房的面积仅有 4.5㎡,且碍于右侧门垛的尺寸,不仅无法规划出 U 型格局,连冰箱放哪里都成为一个大问题。 设计师刘杨杨决定借用一部分原主卧的面积,规划出进深 61cm 的 Z 字形隔墙,塞入冰箱、储物柜后,墙体正好能被拉平。



原厨房的面积仅有 4.5㎡,且碍于右侧门垛的尺寸,不仅无法规划出 U 型格局,连冰箱放哪里都成为一个大问题。 设计师刘杨杨决定借用一部分原主卧的面积,规划出进深 61cm 的 Z 字形隔墙,塞入冰箱、储物柜后,墙体正好能被拉平。

水槽底下的空间仅有 0.5㎡,但能塞下 RO 净水器、软水机、储物盒和各式小家电,可谓「螺蛳壳里做道场」,每一寸都不能浪费!

综合尺寸、价格、容量等因素,屋主夫妇最终选择了东芝的冰箱,且顶部、四周都预留空间,方便其散热。 旁边的定制柜为「封闭式柜体 + 开放格 + 抽屉」的布局,方便屋主夫妇为不同大小的物品,选择合适的收纳位置。


从厨房出来向前走,看到的是包含外套、包包收纳区的储藏间。

原本它被纳入主卧之中,同时连接着主卫,只有两面墙体能布置定制柜或者储物搁架。 住范儿在后期改造时,封上了两边的门洞,将主卧、储藏间、主卫变成三个独立的功能区。 同时化用 Z 字形隔墙,分割出外套收纳区和入口,加上门板后,从外边看完全想不到内里有如此多门道。


史先生也提醒,要想达到这样齐平的效果,装修时需在墙面找平上多花心思,「细致些总没错」。

▼打开柜门即可进入储藏间


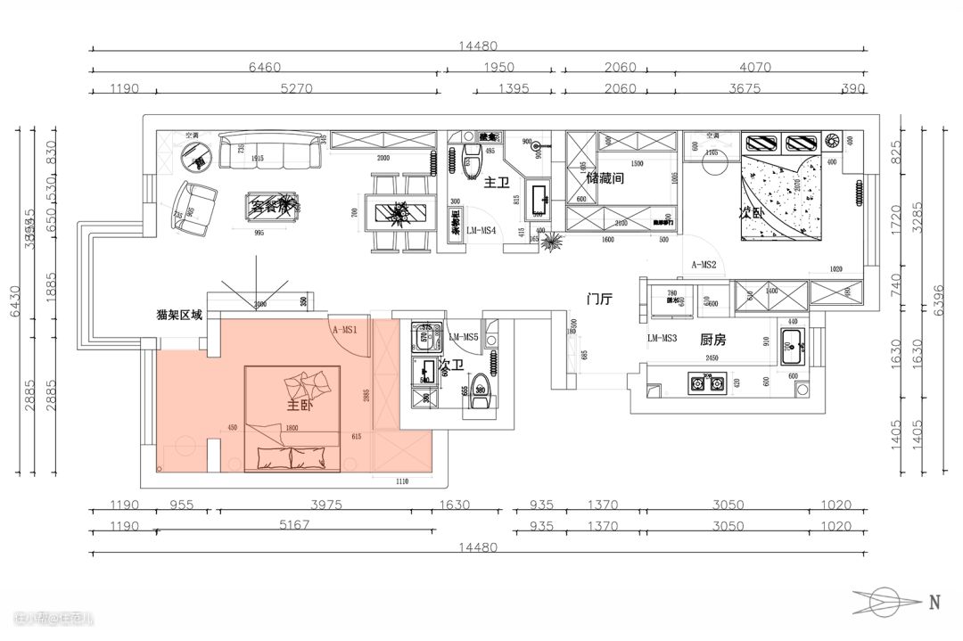
这一房间原被设计为次卧,但因为朝南采光,住着会比原来的北向主卧舒服,屋主夫妇便决定搬到此屋。

调整门洞位置后,主卧得以有空间布置整墙通顶柜,不再像以前一般,只能塞入墙边的凹角里。


▼床尾正对的墙藏有投影幕布


除了调整门洞,主卧还将阳台纳入其中,增加使用面积。采光好的缘故,这里也被用作太太的化妆区。


关于床边杂物的收纳,屋主夫妇舍弃了笨重的床头柜,改为放置椅子和窄缝储物柜,视觉上看着整洁,拿取也便利。


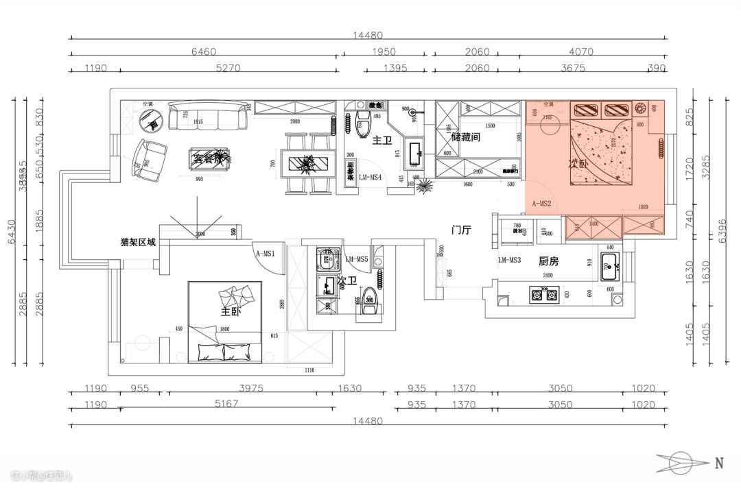
次卧目前为屋主夫妇的办公区,但日后要有亲友留宿,也能歇息于此。


办公桌为升降设计,坐累了能随时切换到「站立办公」的形式。 显示器前安装屏幕挂灯,其实是很好的布光方式,比旁边摆放台灯更有用。 因为显示器的亮度会比其他灯具亮,这样会与周围产生「亮度高对比」的情形,长期在此环境中,眼睛更容易感到疲劳。

▼床尾的储物柜主要负责换季收纳

卫生间

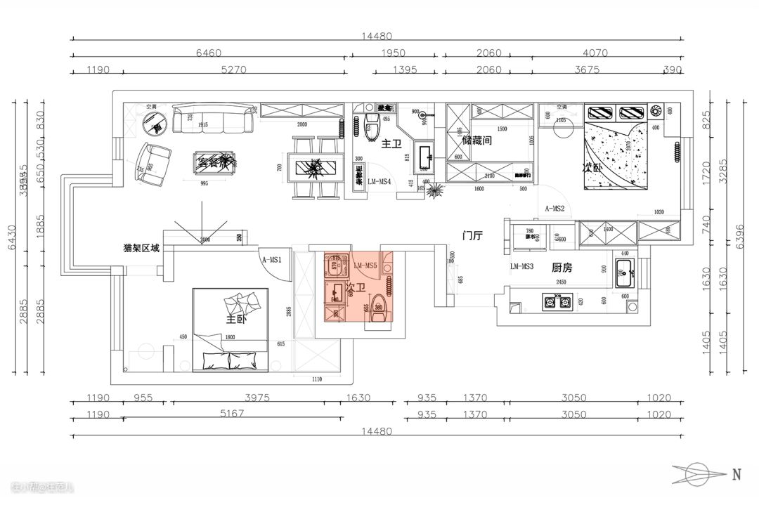
洗衣机和烘干机被安排在次卫中,上边安装到顶的储物柜,就近收纳洗衣用品。 另外,考虑到有存放扫地机器人、猫砂盆的需求,屋主夫妇将洗漱台高度定在了 90cm。


次卫门上留有洞口,方便猫咪进入里边的猫砂盆。 史先生还在猫砂盆上安装了人体传感器,当猫咪如厕时,次卫顶部的排风扇会开启,帮助室内通风。


经过前期勘测,设计师确认主卫门洞的位置能改到朝向过道一侧,便将其与储藏间隔开。 这样主卫内部的空间能被独立规划,所产生的潮气也不会影响到储藏间。


两位屋主都不太喜欢淋浴房,便采用浴帘隔开进行遮挡。 虽然挡水效果会有折扣,但地面无障碍物,日常打扫也会很方便。

因加装了回水管,使用洗漱台时能达到「零冷水」的效果,对现在的季节来说,这点堪称福音。

浴室柜并非成品,是屋主夫妇在测量自己常用物品的高度后,选择在网上定制的。 镜柜至洗漱台的高度有讲究,刚好能竖着放下电动牙刷;需要充电时,内部也留有插座。 史先生分享,自家网购还是比较顺利,浴室柜从设计到安装都没有出现返工的情形。

史先生和太太都是热爱生活的人,小到餐边柜抽屉尺寸,大到全屋水电路、智能家居的设计,他们都会和设计师、厂家来回沟通,以达到最好的效果。 装修完成后,史先生成为了公司里的「装修百事通」,「同事要有不懂的,就会来问他」太太说。 现在,他也将自己用到的设计图分享出来,希望能帮到屏幕前的你。



