设计理念:我们今天来看看这套【新中式】美宅,满满的东方古韵!屋主夫妇二人气质从容,对于新家的装修诉求便是“给他们一份宁静,淡雅的归家之所”。以【新中式】为主题,来一场古典与现代元素的碰撞,部分家具选择定制乌金木全实木家具,彰显中式的美韵,应用现代的设计布局,给业主呈现一个舒适而诗意的新家。

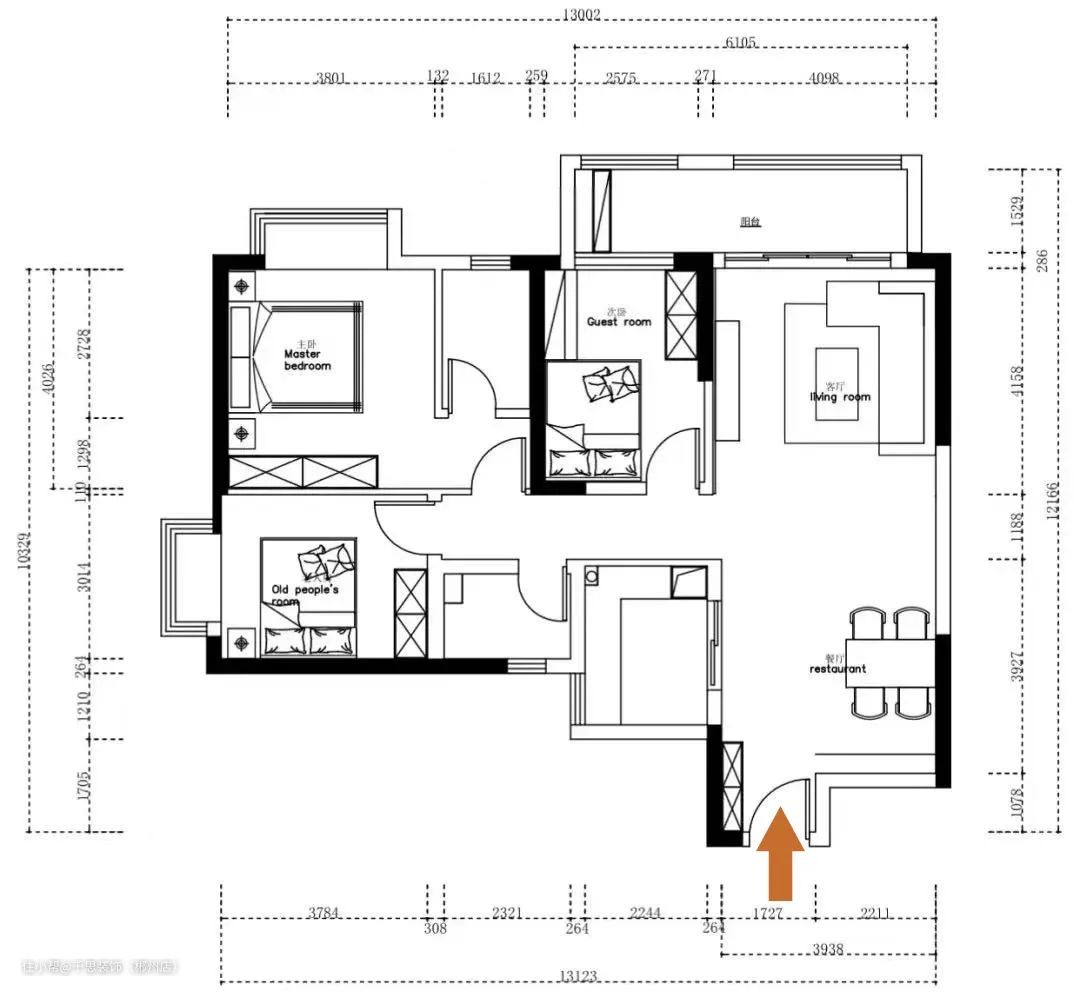
户型方正,结构并无硬伤,重点在软装上。户型亮点:【1】客厅拥有一个超大阳台,保证大厅的采光,客餐厅开放式布局,动线合理。【2】厨房位于户型一角,与餐厅连通,L型经典布局。

玄关为开门见底型(玄关-餐厅-客厅-阳台走向),入户左侧沿墙L型组合玄关柜,通顶设计满足业主个性化收纳需求,不留卫生死角。

玄关柜由通顶高柜+矮柜组合而成,矮柜台面可放置包包、钥匙等物品,并在上方墙面安装插座,底部均预留了20公分用来换鞋。

我们来看客厅空间,本案户型拥有超大阳台,在原始户型上,拆掉了阳台与客厅之间的推拉门,保证室内采光良好,空间更为通透。

素色布艺沙发搭配颜色各异的抱枕,在淡雅的空间内绽放异彩。背景墙点缀水墨装饰画,辅以茶具、瓷器等陈设,散发东方写意韵味。

整体灰白+木色的空间基调,中式古灯与线性灯源为空间提供照明,暖光下的浅色沙发与实木家具,渲染出古典优雅的即视感。

电视背景墙两侧做对称造型,木饰面护墙板沉稳大气,中间留白不做装饰。搭配上同材质的矮柜与电视柜,彰显出端庄、内敛的和谐之美。

两张客厅细节图:细节之处见真章,一盏10头新中式吊灯,中式韵味流淌在全屋之中。

客厅与餐厅相连,开放式布局,保证空间通透性,让家人之间的互动与交流更紧密。

餐厅主色调选用棕褐色,延续客厅同系列背景装饰画,展现别致的优雅氛围。简约稳重的中式实木家具,赋予空间文墨香气。


沉静百搭的木质气息充盈着整个餐厅空间,餐厅与厨房之间以玻璃移门隔断,木框勾勒雅而不俗,既隔绝了油烟,又不影响采光。

卡其色餐边柜修饰单调的餐厅背景,有藏有露的柜体设计,结合玻璃柜与展示柜一体,为餐厅带来丰富实用的储物功能。

深色木地板通铺至整屋,营造空间的典雅时尚,中式韵味十足。保留飘窗设计,飘窗上做软垫,整体营造清新雅适的就寝环境。

卧室以深色为基调,床头色彩斑斓的挂画,为空间注入活力与时尚。色调醇厚的实木衣柜,与树形挂衣架尽显木质温润之美。

深藕合床品搭配小碎花元素,与上方朱红装饰画呼应,一深一浅,一明一暗,形成鲜明的色彩对比。在上方也安装了插座,用电更方便。

床头一侧,定制简约分体式书桌,吊柜做开放格+封闭格,摆置着收藏的心爱手办。书桌和梳妆台一体,方便业主偶尔在家办公需求。
