本期案例是一套现代混搭风格,业主是个一家三口,希望家能契合自己现代化的生活方式,同时空间中能感知到一点点文艺的情调。设计师引入自然光,用上氛围光,打造出空间通透、配色文雅、细节满满的居住氛围。

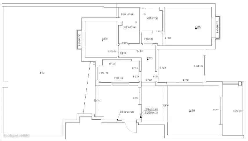
1. 入户过道走廊过宽,业主希望这部分空间能够加以利用; 2. 业主想要在阳台处有个开放式书房空间,和客厅连通增强互动感; 3.主卫是暗卫,希望通过设计可以借助一些光线。

1. 入户借助墙体设计出优雅的玄关小景,走廊处做一道木格栅屏风隔断,巧妙形成动静合一的双过道,营造出曲径通幽、移步换景的空间感; 2. 客厅阳台打通,布置成开放式书房,客厅的功能性随之增加,加强了人与人之间,空间与空间的互动与沟通。 3. 主卫采用了“玻璃墙”的隔断方式,不仅增强暗卫采光,同时也更容易制造情调氛围。

入户借助墙体利用构造穿插处理,设计出优雅的玄关小景,让开门的瞬间,家的温馨气息扑面而来,心情切换到放松的状态,回归静雅生活。

走廊处设了一道木格栅屏风隔断,在视觉上起到遮挡的作用,避免客人一进门对整屋一览无余。如此一来,巧妙形成动静合一的双过道,营造出曲径通幽、移步换景的空间感,颇有“千呼万唤始出来,犹抱琵琶半遮面”的意境之美。



客厅以灰和咖为主色,不同层次的灰咖色以多元的形式相互交融组合,软硬装在同一空间里实现了彼此呼应,整体的搭配感更强,也更有和谐度。

电视背景设计成整面柜体墙,整体空间感得到有效延伸。柜体形式有开有合,能满足不同类型的收纳需求。

电视背景设计成整面柜体墙,整体空间感得到有效延伸。柜体形式有开有合,能满足不同类型的收纳需求。


客厅阳台打通,布置成开放式书房,客厅的功能性随之增加,加强了人与人之间,空间与空间的互动与沟通。

餐厅空间在配色上与客厅形成呼应,搭配也遵循简约的基调。

餐桌与吧台连结,形成连续的动线,吧台不仅自带储物功能,装上移动排插后,丰富了餐厅的功能性和体验感。

酒柜采用悬空式设计,底部做成地台,给予空间更多呼吸通透感。

多样化的收纳布局设计,也为全屋的储物形式提供了更多可能性。

拉开窗纱,惊现一片超大露台,洗衣晾晒都非常方便。种上花花草草,就是治愈力满分的后花园。

厨房采用玻璃移门形式,有利于增强空间的光线互通。

厨房操作台面采用了空间利用率最高的U型布局。此外,双层定制柜体增加收纳之外,根据尺寸内嵌厨房电器,将立面利用最大化。


主卧的床头背景墙别出心裁,将美观与收纳巧妙融合,一抹正红色打破浅色调的平淡,为空间带来更多浪漫的情愫。

床的两侧以定制的一字隔板代替传统床头柜,底部释放出更多空间,有效利用好每一寸空间。

主卫采用了“玻璃墙”的隔断方式,不仅增强视线通透感,同时也更容易制造情调氛围。

次卧设计成了榻榻米+书房的形式,床侧刚好放下一张小型书桌,上方做了装饰性层板,可以放置少量书籍或装饰摆件等。

二儿童房采用睡眠区+学习区+储物区的设计,满足孩子休息、学习的日常起居生活。


卫生间采用深色系打造,整个空间整洁大气。功能充足的情况下,布局工整有序,简约低调又极具质感,极大提升了家居生活的幸福指数。
