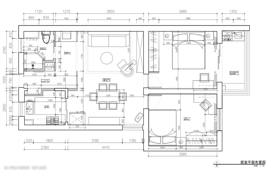
户型痛点: 1、靠近高架旁,噪音比较大; 2、进门没有玄关,需要玄关储物柜; 3、厨房门和卫生间门相对,不是很好; 4、卫生间偏小,空间拥挤。 5、储物空间过少,需要大量的储物。

户型改造后: 1、厨房、卫生间门更换位置,原来的门洞做玄关柜,厨房门位置设计宽710,底部悬空160的玄关高低柜,满足一家三口收纳鞋子、包包和少量杂物需要,上层左右两侧分别是悬空和开放收纳格,加上照明灯后空间也不显得拥挤; 2、原卫生间门做隐形储物柜,可挂外套,储藏大件物品; 3、卫生间空间小,做干湿分离,干区和客厅一体,做钻石型淋浴房,节省空间。 4、厨房门改造为面向餐厅,为了增加收纳,一侧常规橱柜,;另外一侧做深度为30公分薄柜放电饭煲、榨汁机等小电器,又不显得厨房拥挤。 5、客餐厅一体化,小空间规划的有条不紊,温馨的原木风格,让一家人的三餐四季更有滋味。 6、全屋采暖考虑暖白色暖气片,和全屋风格比较搭,处理噪音使用断桥系统窗,关窗后几乎没有太大的噪音,但为了保持空气流通增加了新风系统。 7、女儿房全屋定制,衣柜和床头柜一体,对面设计圆弧形书桌,加上原本1.2的小床,让女儿房空间不拥挤但是更温馨,增加更多收纳 8、主卧则是和阳台打通,阳台一边做了一体化洗衣台盆柜,一边是收纳柜,柜体高度和窗台平齐,可做办公使用。

装修前玄关

装修后玄关

装修前客餐厅

装修后客餐厅
客餐厅一体化设计,客厅设置2-3人沙发位,南面定制收纳柜,浅灰色的沙发和原木地板搭配,沙发背后留出投影的位置所以没有任何装饰。



客餐厅一体化设计,餐桌椅和餐边柜都是来自NORHOR家居,温馨实用。洞洞板可以成为多肉置物和水杯的家。



原始厨房是U型,设计师改造后应该是I型,为了增加操作和收纳空间,利用原来门的位置嵌入40公分左右的收纳柜,可以放小家电,上下层收纳空间更多。



主卧带阳台,直接把阳台打通,中间用窗帘遮挡光线。



女儿房空间也不小,全屋定制书桌衣柜和床头柜。



改造后卫生间的空间也比较小,所以设计干湿分离,





家具:NORHOR家居 原木家具 地砖:东鹏120*60大砖 地板:誉丰地板 套装门:欧派木门 定制柜:亿唐一站式定制 硬件:全屋系统窗、新风系统、全屋净水和供暖系统
