项目地址 / Address:北辰奥园 设计施工 / Co :铭品装饰 风格 | Style:新中式 项目面积 | Area:300㎡ 设计理念:一直在设计的矛盾中寻求突破和解决空间问题。善于结合生活将空间重组,把空间特色发挥到极致,强调功能与美感平衡,尊重使用者的真实需求。生活方式决定空间形态,为很多业主量身打造了属于他们自己别具一格的家。 设计亮点:兼顾开放式厨房的同时也考虑到中式厨房的油烟的味道问题的解决,同时在厨房做饭也能更餐厅的互动,更加有趣味性,客厅的形式以及餐厅和玄关之间是隔而不断的手法。#户型 #户型图 #平面设计图

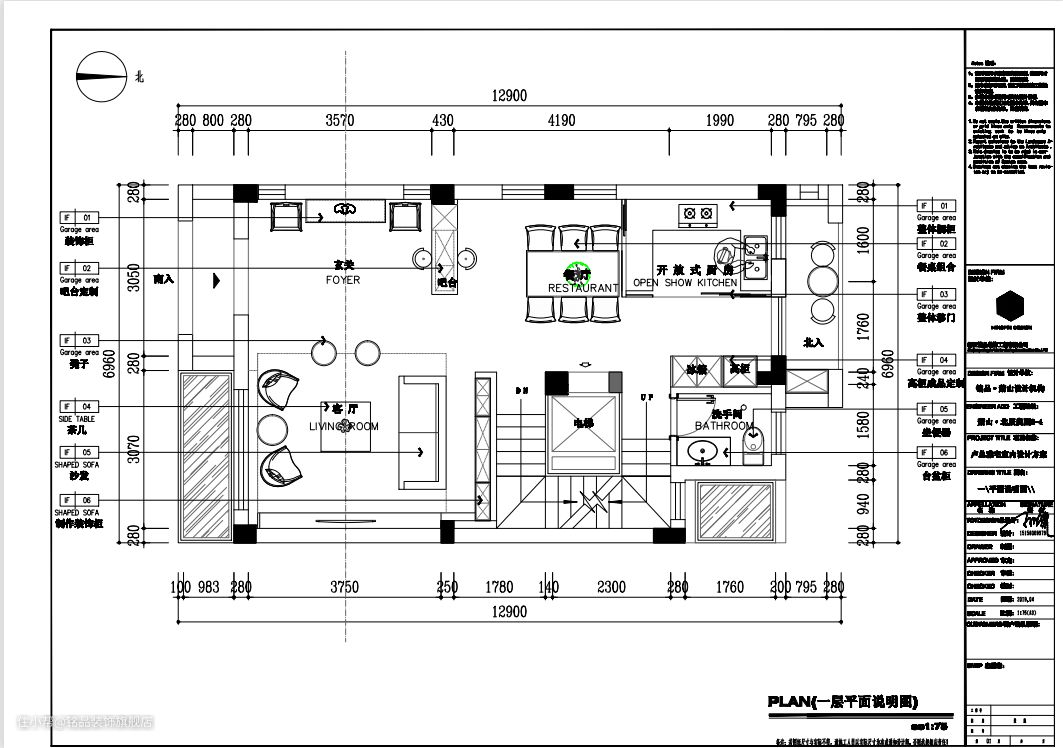
1F平面图

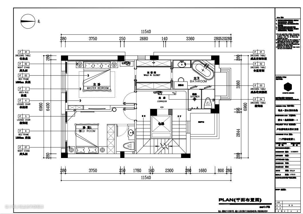
2F平面图

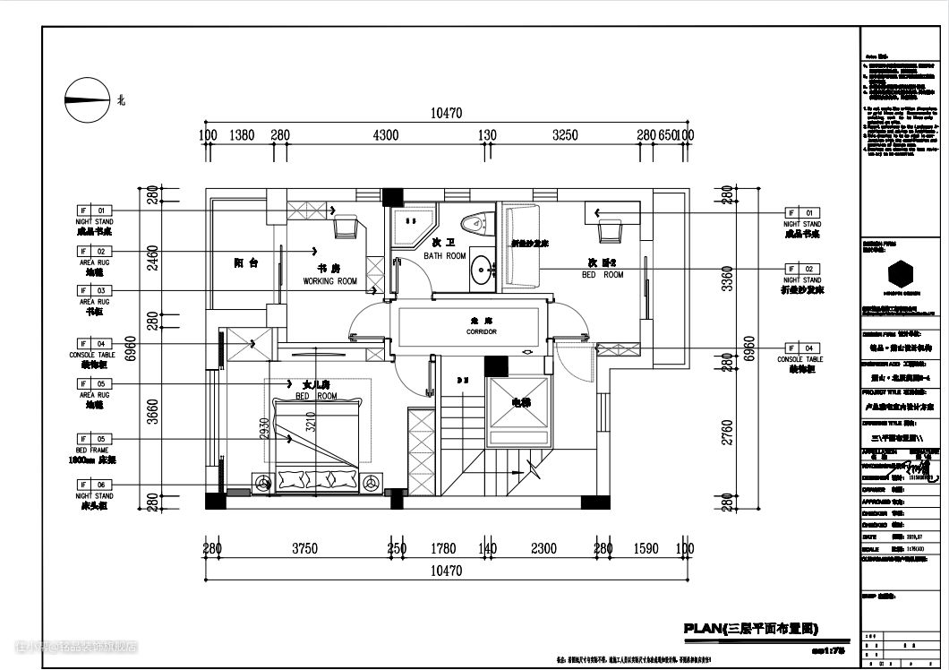
3F平面图

在设计之初,业主的要求室内装饰,要跟室外的建筑尽可能的统一,不要有太大的冲突,室外本身建筑采用的江南建筑一种中式手法,所以室内我们去繁就简,采用的现在新中式的基调,贯穿整个设计。#客厅 #电视背景墙 #沙发

客厅扮演着核心区的角色,而茶桌更是占据着客厅里的“C位”。本案选用胡桃木定制茶桌,以润泽细腻的质感搭配现代装饰工艺美学,给空间带来更多层次感,凸显了新中式风格的魅力与品质。#茶桌 #客厅 #新中式


客餐厅是一体的,开放式的设计打破了传统空间的局限性,将各功能区相互贯通,显得空间更加开阔而通透,空间的实用性与美观度协调得十分完美。利用灯带将电视背景墙点亮,形成一个立体且完整的立面。#客厅 #沙发背景墙 #客餐厅

中式家具的细节图~#中式 #客厅 #家具

利用中岛台将客厅与餐厅进行视觉空间上的划分。餐桌选用中式设计中常见的大圆桌形式,依据最佳的人体工学设计我们将餐桌高设计成80cm,餐椅高45cm(一般是身高的四分之一),尽可能给到最佳的就餐感受。餐厅做的是无主灯设计,利用设计进行照明,尽可能地在视觉上弱化空间的区块感,给人一种统一大气的感觉。#餐厅 #吧台 #餐桌

餐厅一侧做了吧台,临时做办公书台或咖啡桌,茶水吧等,同时作为隔断划分出会客区和用餐区。#餐厅 #餐桌 #隔断


会客区的设计用了对称的美学,两把单人椅,一张中式边桌,背景墙上的中式山水画,迎客松盆栽,每一处都充满着中式元素。#中式 #背景墙 #座椅

兼顾开放式厨房的同时也考虑到中式厨房的油烟的味道问题的解决,同时在厨房做饭也能更餐厅的互动,更加有趣味性。#厨房 #橱柜 #收纳

客厅的形式以及餐厅和玄关之间是亦是采用隔而不断的手法。将烘烤箱挪出厨房,嵌入外部储物柜中,黑色的蒸烤箱与灰色的柜子相得益彰。#厨房 #橱柜 #蒸烤箱

在中国人的审美观念中,卧室不可过于轻浮奢华,含蓄典雅才是高品位的雅士风度。我们在现代简约的卧室空间上,搭配大气端庄的新中式风格实木家具与软装,简洁典雅而不失厚重感。#卧室 #床 #中式

床品、床头背景墙都没有浓厚的装饰,而是在简洁的色彩和线条中表达新中式的神韵。【床头柜尺寸:45*60*50cm】#床头柜 #床头背景墙 #壁灯

次卧背景墙做了米色硬包,搭配了一款实木床,床头柜和地板都是原木材质的,比较有厚重感。#卧室 #背景墙 #床

把每一寸空间利用好,把每一处设计做到极致的精细化。将台盆区域浴缸呈一字型设计在同一侧,淋浴区与马桶区在对侧,利用视觉“欺骗手法”,让空间看上去不仅更干净清爽,无形中还能达到大一倍的效果。#卫生间 #干湿分离 #浴缸

卫生间墙面做了到顶的防水墙,保证业主的使用感受。同时考虑到实际的使用感受和感官效果,我们选择平开金属玻璃门(淋浴房面积:900*900cm)#卫生间 #玻璃房 #干湿分离


书桌和储物柜的一体式的设计,书桌做了无桌脚的设计,给腿部留出更多空间,座椅搭配了可调节的,可以保护孩子的脊椎。一侧定制了玻璃展示柜,里面用来摆放书籍,还有防尘的效果。#书房 #书桌 #收纳



