

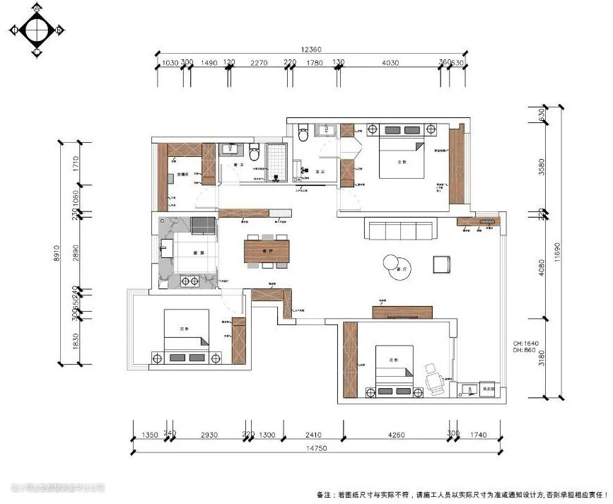
本案房子的风格布局是女主人喜欢的美式,整体温馨舒适、优雅大方。在各种材质的交错变化中,带出了层次的丰富感,整体环境的氛围加上巧妙的收纳设计让居住空间的机能与美感都兼具了。 1.打破原有阳台格局,一半纳入客厅,增加客厅活动空间,一半规划为生活阳台; 2.将西北侧房间的墙体打通,作为衣帽间和书房使用,增加收纳功能; 3.随处可见的弧形线条柔和优美,减少空间锐度,舒展出丝滑柔顺的家居图景。




进门首先引入眼帘的是充满自然风情的热带雨林背景墙画,以大自然作为创意灵感,将一方雨林织于家居之中,打造东南亚风情“乌托邦”。让家居回归自然,幻发勃勃生机,收获深沉而又平静的力量。客厅沙发区,温润的美式家具配上美式简约线条护墙板,真的是非常耐看。舒适的蓝色沙发搭配浅色的大理石茶几,温润又雅致。在水晶灯和绿植的点缀下,整个空间温暖又醇厚。 电视背景墙设计的比较简单,就是简单的大理石墙面,左右两边用精致的美式护墙板对称装饰,整个空间简洁又时尚。 在单人沙发里,享受片刻的安静和舒适,喝喝茶、看看书、玩玩手机,或者简单地发个呆,都是最好的充电方式。




设计亮点
餐厅设计与客厅是相通的,中间以玄关厅作为隔断,三者合而为一,让家居空间得到最合理的利用,显得既宽敞又舒适。厨房空间白色柜体与灰色地砖搭配,既明亮又有整洁感。这里是体现家温度的空间,所谓人间烟火,至味清欢。
软装搭配
浅色系的餐厅色调给人轻松的感觉,在水晶吊灯柔和的灯光下,显得格外温馨和谐。两侧的收纳柜实用性十足,日常的藏酒、水具摆放其中,一同营造雅致惬意的生活氛围。



设计亮点
主卧以温柔的紫色为主色调,营造柔和宁静的睡眠空间。淡雅的色调更有助于释放压力,暖白的柜体,打造出了恰到好处的质感。


设计亮点
次卧的设计避开了繁琐的装饰,以舒适度和实用性为主。飘窗的视野完全打开,透光的窗纱能够带来良好的通透性。



