
这套房是一对年轻人的婚房,女主人性格温和,希望家里充满温暖的氛围感,要有好看的拱门和小花砖;男主人对品质感要求很高,装修材料要用环保安全的,要保障以后小孩、老人的健康。
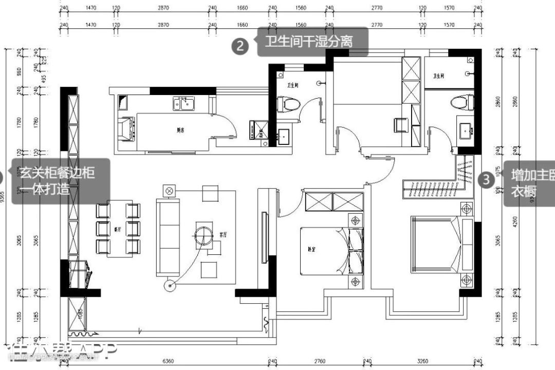
设计理念: 婚房是小家庭幸福生活的开始,营造符合夫妻审美偏好的氛围感非常重要,在布局上,也要根据业主的生活习惯,对功能空间做定制化的改造。经过深入沟通,我们在风格上以弧线造型来增加空间的甜美柔和感,在布局上,优化了客厅和卫生间,来满足收纳、方便业主使用。 改造前: 原户型南北通透,双面采光,明厨明卫,通风效果也很好;为了更适应业主的生活习惯,我们将客卫做了整改,建墙做干湿分离,将洗手台移到门外,方便使用。

改造后: 通过改造,玄关柜和餐边柜一体化设计,让客厅的收纳力得到提升;客卫做干湿分离,更方便使用了;三间卧室都增加了定制柜,充分利用空间,增加收纳。



玄关走廊较短,于是将玄关柜和餐边柜一体打造,定制柜连同冰箱位置,共长6160mm,装点了客餐厅的整个墙面。白色无拉手柜门设计,让定制柜更好的融入空间,整体大方简洁。 玄关走廊,尺度为1780*1470mm,做石膏板吊顶,可以更好的接驳到顶的玄关柜;同时让人从入户的狭窄进入大厅的宽敞,这个过程会给人带来豁然开朗的体验感。



客厅用奶油色墙漆和弧线造型来修饰空间,营造温和甜美的空间氛围。电视墙做悬浮造型,转角做弧线,与阳台的垭口相接,给人更舒适柔和的空间感。 100寸平板电视嵌入墙体,严丝合缝的精致感让人倍感舒适。 电视墙下方定制吊柜,用一排抽屉满足小物件的就近收纳。客厅中央用几何造型的黑色吊灯,与茶几相呼应,丰富空间表情。 客厅选深色布艺沙发,为以浅色为主调的空间增添了沉稳气质。沙发背靠餐厅摆放,成为客厅和餐厅之间的隔断,划分出清晰的功能分区,也让空间变得更加饱满丰富。 阳台落地窗保证了充足的自然光线进入室内,窗外就是小区绿化,四季风景如生动画卷,成为客厅最美的一面。



餐厅和客厅一体打造,空间更加通透明亮。顶面做部分吊顶,隐藏空调设备,同时为走道与客餐厅做出空间划分,给人更和谐的空间秩序美感。 客餐厅地面通铺800*800mm浅灰色亮面地砖,让空间更加明亮。浅灰地面与家具的黑色线条建立了清晰的对话,对比中,呈现出一个明朗清爽的空间观感。 餐桌选择白色岩板桌面,弧线造型的长桌1600*800mm大小,搭配曲线造型的餐厅吊灯,让餐厅空间变得更柔和。 餐边柜中段做成开放式壁橱,接入水管,壁挂直饮水机,方便取热水泡茶;餐边柜黑色面板和黑色的餐桌框架相对应,让餐厅空间更显简约精致。



厨房和客餐厅之间用细边框玻璃门相隔,地面和客厅一体,通铺800*800mm大地砖,拉开玻璃门厨房空间变得更加通透宽敞。 厨房橱柜呈L型布局,长边有2270mm,作为水槽区和备餐区,白色石英石台面与白色墙面相搭配,空间更显整洁。 下方橱柜嵌入烤箱和洗碗机,享用更多科技化厨电,让生活充满便利。 灶台区域宽1180mm,下方做抽屉更方便拿取。厨房吊柜也采用无拉手到顶设计,充分利用墙面空间作收纳。



主卧建转角的衣橱,增大了收纳空间,同时避免主卫生间对床开门的尴尬。衣橱到顶设计,米白柜体和墙面颜色一致,隐形拉手大气简洁。 主卧选择浅灰色软床,与地面瓷砖颜色相协调。营造清爽优雅的休息空间氛围。床头柜和衣柜一体打造,节省了空间,也增添了不少方便。



次卧靠墙做整体衣橱,更多利用墙面空间做收纳,衣橱尺寸1855*600mm,选白色柜门搭配隐形拉手,降低存在感,与墙面融为一体,空间整体感更好。 衣柜与床之间留550mm宽度的过道,足够开柜门。



从客厅就能看到客卫,所以洗手台位置的装饰性也很重要,用拱形门来呼应客厅的整体柔和风格。 墙面铺白色瓷砖,地面铺黑白花纹小砖,营造活泼趣味的空间氛围,让家更加温馨。 墙面安装流线造型的智能镜,带有防雾、照明等多种功能,让护理时光充满乐趣。定制白色一体陶瓷台盆,表面光洁无缝更方便打理卫生。吊柜抽屉方便收纳护理用品。
