
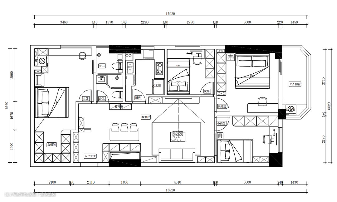
本期案例是120㎡的新房装修,三代同堂,整体设计风格以温馨明亮为主 ,设计师利用巧思,解决了业主增加室内采光、三房改四房等诸多困扰,并将温馨感持感持续到底,充斥每一寸空间。 设计思路或亮点: 1、房子原本为三房户型,由于三代同堂,将其改为四房; 2、空间内部梁柱较多且压抑,空间利用率较低,主空间采光较差,巧用梁柱进行灯光设计,改善室内采光,提高空间利用率; 3、帮助业主解决大门正对卫生间的困扰,改造后,优化了主空间动线,使功能分区变得更合理,更贴合业主一家人的生活习惯; 4、大幅增加日常储物柜,通过收纳,保持室内干净整洁,减少改四房后带来的空间差异感。


背景墙选择做整面大白墙,再无其它装饰,简约显大,购置的沙发还未到场,木质餐桌和餐椅的简单搭配也毫无违和感,电视背景做整面收纳柜,满足超强收纳。电视的旁边做镂空设计,方便放装饰品,减少整面柜的单调感,无论玄关柜、餐边柜,还是电视柜底部都有安装灯带,其实这也不失为一个增加室内光线的好方法



厨房的墙面均贴小白砖,一进门,小清新风扑面而来。在这样的空间里,做饭也充满温馨感,厨房门选择长虹玻璃门,透光不透人,白净美观。橱柜是一整个暖白色,连冰箱也是相似的颜色,搭配黑色发亮的餐厨用具,动线流畅,简约美腻~厨房台面十分整洁,用收纳架放置盘子,墙面做挂钩、隔板等各类收纳工具,这肉眼可见的厨房利器太可了!


卧室的功能分区明朗,从尽头看过来,依次有主卫、沿窗办公化妆两用桌、收纳柜。然后便是休息床卧,铺上毛绒绒的被子,看着就好舒服!收纳柜其实暗藏玄机,侧面做镂空,留出洗衣机和烘干机的位置不得不说设计师真的太会拿捏空间。更妙的是,这个卧室还有一个衣帽间,镜头移向床卧的另一边,镶嵌式到顶衣柜,三面环绕,围合成小小的天地,既能够足够收纳业主夫妇的衣物,又有一定的私密性。靠床的衣柜做延伸设计,延伸出展示区和床头柜,展示区全部做灯带,白色灯光让整个展示区充满高级感。木质悬空床头柜,放上音响,无论是早晨起床、还是睡前,放上自己喜欢的歌曲,真希望生活的惬意感就在此刻长久停留。主卫的收纳设计也是很赞的,用半个空间做浴室柜,半个空间容纳马桶,而且靠近马桶的一侧做开放格放上收纳盒,既不容易沾到水,而且物品存放有序,nice! 窗户使用蜂巢帘,免打孔、能内开还不影响采光,而且可以上下拉,想停哪里都可以,现在的居家用品越来越方便!


公卫做干湿分离,洗漱台的正上方。“遮挡的艺术”吸人眼球,它的解释很有意思: “只要是没看见,就是干净的整洁的”,业主的居家理念,有点独特哦!
