

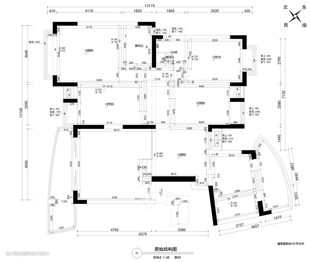
“效果的一步步还原,没有100%也有98%了,我的想法落地了,符合度还是很高的。”业主给出如此高的评价,离不开前期全方位的设计考察与沟通。空间构造与装饰也同样需要“因地制宜”,本案中设计师合理考量居住者的生活习惯与要求,以此为肌理构建空间的神与形。 本案原始结构图与最终家居定位图结构相差不大,仅有的两处改动在于:将主卧宽度适当缩小,并入排污区后建成主卧卫生间;长辈房同理,墙体移动后多出的面积规划进公共卫生间。因此在保障合适的卧室面积基础上,避免了狭窄空间带来较差的盥洗体验。








与传统打通客餐厅空间的构造不同,本案入户处呈现温馨的起居客厅,动线往上小台阶设计,其高低落差丰富了空间的层次感,个性且独特。 客厅中色彩的应用相对丰富明艳,渲染一种轻松愉悦的家庭氛围。材质的运用以舒适为核心理念,避免了杂乱无序的视觉干扰,多样且具有层次。电视置于墙体收纳柜中,节省空间并提供多样收纳功能。浅灰色皮质沙发饱满柔软,无束缚的触感反馈足以满足任何坐躺需求。绿植装点、现代抽象画作还原最原始粗犷的艺术氛围。


客厅与其他空间衔接处放置一张餐桌,合理规划空间。方形长桌可满足多人进餐需求,在暖色灯光的映衬下,木质地板与白色桌布共同构成一个质朴简约的空间视觉。此外,设计师预留白色墙体,将此处作为家庭合照展示区域,共同呼应其乐融融的家庭氛围。



本案厨房空间不大,且不方正,因此设计师采用开放式厨房设计连贯空间,落地玻璃门窗设计增加光线覆盖率,沿着入口处设定操作台,因而通道处和烹饪处皆可“实用”操作台,空间结构设计能够满足厨房多项功能需求,丰富动线的同时打造吧台氛围感,增加空间情趣。



本案在原始结构图上做出更改,设计师打造一间套房,合理缩小主卧面积,给到主卫更大空间。空间色系采用传统的黑白灰设计,结合业主需求,室内设置黑色皮质床具、木制床头柜与少许装饰品,共同打造沉稳的家居氛围。圆形梳妆镜更显轻松愉悦,点缀单调的空间。



空间以简约质朴为设计理念,拒绝过多组件装饰与色块杂陈,顶角装饰线的设计丰富空间构造。在色系上追求平衡:采用2种浅绿匹配映衬桃红,降低色系饱和度,给到长辈十足的简约质感。 设计巧妙点在于各处呼应统一,色系、软装、外观,共同作用构建空间之美。如同肉眼可见,空间色系较为统一,以可爱的软装装饰为主,大面积应用桃红与珊瑚红,凸显空间年轻、青春洋溢的特点。上下铺床体与可爱玩偶装饰结合,打造游乐园般的梦幻场景。





墙角设定约1平方洗浴处,,防滑大理石保障洗浴安全性,此外采用干湿分离设计,减轻卫生间清洁打理工作,提升家居幸福度。 简约的框架线条,硬朗,大气,洗漱池下方收纳柜提供足够收纳空间放置生活用品。空间面积不大,设计师在满足正常功能需求基础上合理规划空间,使得置身其中仍能感受空荡的空间体验。 主卧卫生间相对更豪华,无主灯设计让光线更充盈饱满,照亮每一处死角;三面梳洗镜柜铺陈,将空间通透质感完美呈现,空间视觉愈发被放大;操作台下方收纳柜与侧方柜体确保收纳无忧;双台下盆设计,同能满足两人盥洗需求;在偌大的空间内同理设定干湿分离洗浴区。
