
装修前
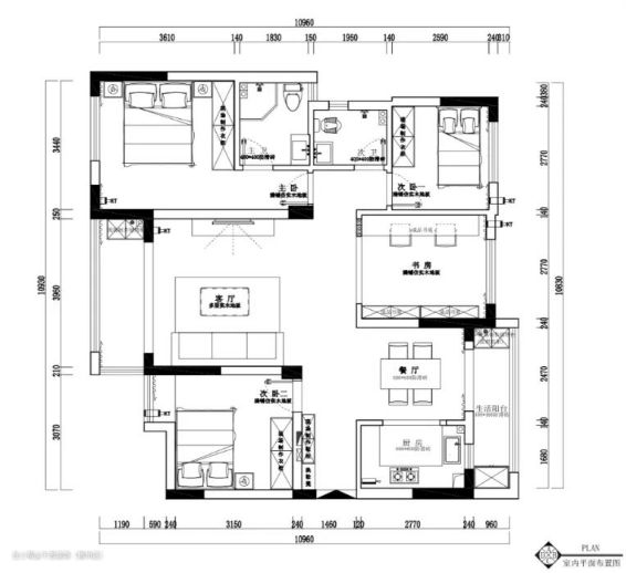
平面布置图:南进门入户,玄关区较为狭长。客餐厅自带阳台,采光良好,南北通透。餐厨毗邻,与生活阳台连通,动静合理分区。书房设吊轨推拉门与客厅隔断,安静一角。



设计亮点
入户打造一排嵌入式玄关柜,柜门做纯白色百叶造型,辅以一株绿萝装点,尽显小美风的惬意安然。在白色包容的世界里,平和安心。
软装搭配
灰色瓷砖+极简无主灯布局,有着灰白的纯粹与高级质感。玄关柜底部悬空处理,可收纳常换鞋,中间镂空处是钥匙小件物品的归处。





设计亮点
客厅,将休闲阳台纳入,彰显空间的结构美感。整体以灰白为主基调,运用现代手法,加入复古元素,丰富空间层次感,更为立体。相较于传统美式,小美风在家具软装上更为灵巧,虽仍为实木家具,去掉了雕花装饰,清新灵动。暗色调软装与亮丽的硬装彼此衬托。
软装搭配
融合了现代设计手法,遵循【轻装修,重装饰】的设计理念,墙地面、门窗皆以浅色为主基调,简洁利落,将重点落于后期的软装上。



设计亮点
餐厨毗邻而设,实木餐桌椅+刺绣桌旗占据餐厅c位,在复古吊扇灯的烘托下,美式风的古典韵味愈发浓烈。连通生活阳台,空间更显开阔。
软装搭配
餐厅背景墙同样以美式画上墙装饰,并以pu线条勾勒极简造型。蓝黄相间的窗帘,优雅又复古,以不同元素的单品交织诠释古典的美学。


设计亮点
厨房以白色橱柜搭配复古小方砖,构筑简练不失雅致的烹饪空间。呈U型布局,洗切炒动线一气呵成,灰色地砖奠定了大气沉稳主基调。
软装搭配
餐厨开放式布局,上餐至用餐,有效缩短动线,提高两个空间的交互性。白色橱柜造型与玄关柜呼应。白色搭配莫兰迪色,清新灵动。



设计亮点
书房与客厅以木质吊轨门隔断,空间铺设木地板,营造出温柔安静的氛围,与公区的低奢截然不同,不同程度的木质调赋予空间文艺感。
软装搭配
一进入书房,木质调的厚重与历史感扑面而来,是身心皆安与阅读冥想的空间。左右两端摆放书桌书柜,空间大而不空,绿植于右端加入。



设计亮点
主卧,整体以木白为主基调,原木地板统一铺设,黄蓝白三色窗帘,增加空间趣味和设计感。木质的复古床头搭配素雅床品,增添温馨感。 奶茶色背景墙+两幅小美装饰画,与客餐厅呼应。在白木构筑的空间内,木质调的温馨与自然感无可替代,予以屋主一个适宜的休憩居所。
软装搭配
于床左侧,定制通顶白色衣柜,搭配金属拉手,丰富空间层次感。分别设计挂衣区+叠衣区+抽屉区,打造多功能收纳衣柜,灵活多变。


设计亮点
洗漱区、淋浴区、马桶区三湿分离设计,三者各司其职,并打造玻璃淋浴房,功能划分更为精细,干区不易积水,空间使用率更高。
软装搭配
卫浴柜悬空设计,不留卫生死角。马桶区墙面铺贴黑色格子砖,丰富空间层次感。三湿分离的设计,丰富更能外,提高居住者的舒适度。
