
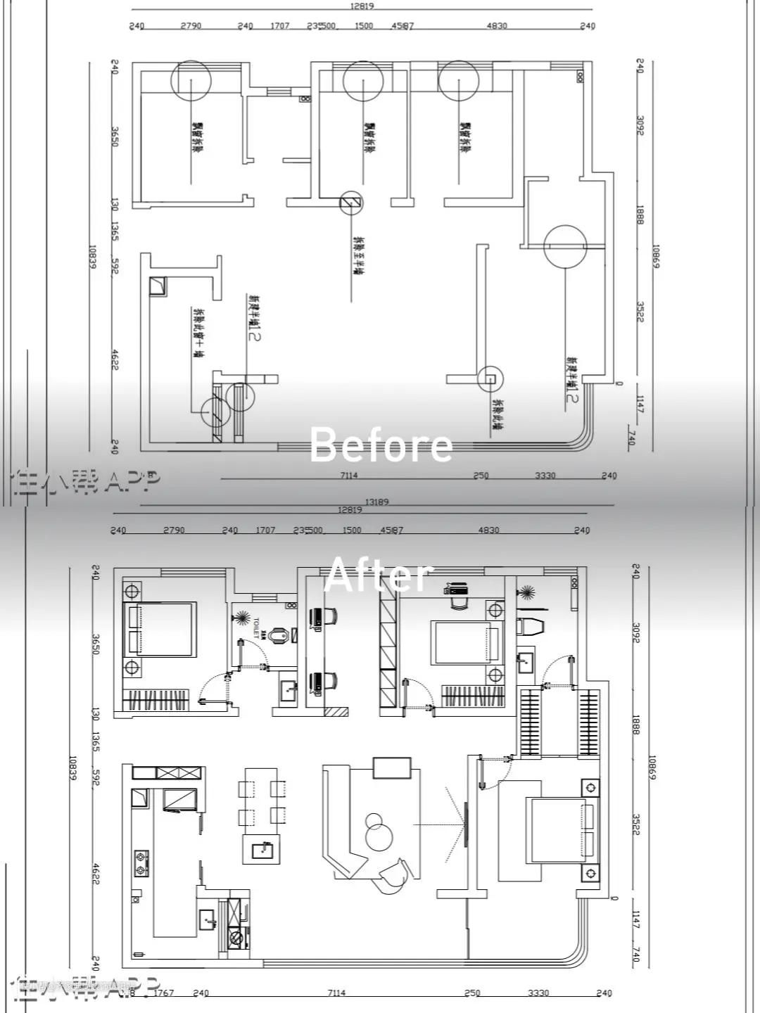
装修前
地址:贵阳·小河融创 风格:现代风 面积:135² 价格:15万左右 设计师:徐渝昆 房主家是一对新婚夫妻,这套房是用来作为自己的婚房。两人一起规划属于自己新的小家,有对即将孕育的小宝宝做准备,以及要预留父母亲的房间,要给自己一个温馨、稳定、舒适的家。 男主和女主人都喜欢时尚感强烈、高级质感的物件,同时对时尚有自己的一定见解,两人在整屋的需求上就主要以实用、简约为主。 房主家对即将孕育的小宝宝,考虑到以后的物品增多,对家装的需求就是能满足大量收纳,能放越多越好。 基本情况:4室2厅2卫1厨布局,原始建筑面积135.00平米 业主要求: 1、要有3个卧室,收纳空间大 2、阳台有富余空间 3、宠物居住的空间要合理 4、至少要有两人以上的学习区 户型缺陷: 1、书房偏小,空间不足 2、厨房的窗和墙累赘占空间 3、飘窗占地过多空间小
装修后
户型改造: 1、书房拆除板墙,扩大空间,保证书房整体性让出宠物居住的区域 2、厨房拆除原窗和墙,以 u 型设计为主,布局合理让动线更便捷 达到改善功能空间利用率、美观度、舒适度...... 刚组建的小家庭,对两人都追求高品质的生活,所以家的风格设计简单又不失高级。功能上满足多元应用的公共空间,满足休息、跟家人互动的需求。






设计亮点
客厅作为共享空间,体现出主人品味和家庭文化内涵,整个空间硬装设计没有花哨的装饰,主打黑白,创造一个简约的空间视觉感。 电视墙白色乳胶漆,电视柜的选材、款式与客厅整体风格协调,在视觉给人鲜明的冲击感,简洁的吊顶、无主灯设计,使客厅显得简洁大气、实用性强。
装修建材
沙发选择400*300CM转角异型沙发,方便屋主与家人交流。 简易茶几90*70*40CM体积小巧,留出更多空间,孩子玩耍时,不会磕到碰到。




设计亮点
餐厅的整个色彩搭配上,因为是处于和客厅在同一个横厅内,所以色彩选择上以黑白色和米色搭配,餐厅背景同样以白底黑框为主。 餐桌改换成圆桌点缀,视觉上明亮有层次,放置装饰物品可以体现出家庭文化和生活趣味。鲜花这些物品的质感、颜色、造型和款式都能反映出主人的情趣和品位
装修建材
皮革+编织桌椅,氛围感拉满~~ 做了镂空的形式,使得视觉效果更加丰富。 圆桌直径120CM。质感高级、防水防油免洗防烫



设计亮点
厨房以 u 型设计为主,布局合理让动线更便捷,满足烹饪需要和日常使用,在橱柜的选择上,高低柜台设计日常洗菜不弯腰,炒菜不垫脚。 为了增加储物收纳,除了橱柜还有吊柜用来储物,深色墙砖背景搭配橱柜颜色倒也挺耐看更耐脏。设计精致,强调线条明晰化与简约,整个厨房,营造出舒适、时尚的氛围。
装修建材
集成壁柜设计:能够将厨房空间的储物功能发挥到极致,同时能够更好地整合家具,美观好看又方便实用。



设计亮点
卧室的设计和布置以简洁、干净、明亮、高效、时尚、自然为主,采用大面积的白色、灰色,突出简洁和干净感。 家具方面采用低调的框架和简单的线条,家具的数量虽然少,但是品位和质感都能体现出来,扑入天然的自然光,营造舒适纯粹的休憩环境,领略别样睡眠体验
装修建材
卧室厕所用衣帽间隔开,分区合理,动线流畅 双人床1.8米,工艺吊灯直径15*高33*底盘10



设计亮点
卫生间的设计采用明亮、干净的色彩灰色,提高实用性和易于清洁。 选择边角弧形的洗脸盆,圆形的马桶,能够弥补角落过于棱角分明带来的不适,日常使用也方便, 墙边做挂墙收纳增加浴室的洗浴用品储纳,减少了置物架的使用影响空间使用面积,可调控的智能洗漱镜,早起化妆更方便。
装修建材
单盆式洗脸盆一般为高80-85cm,宽60-70cm,深45-50cm; 地砖尺寸为300mm×300mm、墙砖尺寸为200mm×300mm; 地漏:地漏一般的尺寸为10cm×10cm。




设计亮点
阳台打通,融入到客厅,拆除的门框做垭口包边,采光好更加通透~~ 选择具有隔热性和透光性的玻璃窗,阳台光线更加明亮自然,同时增加阳台空间的亲和力,布置一些绿植花草,增加阳台环境的自然气息和舒适度。





设计亮点
玄关处的收纳柜,做了镂空的形式,既增加了收纳空间,又使得视觉效果更加丰富。屋主下班回家,手提包随手就可以放在镂空柜,十分便捷。 环保E0级实木定制橱柜,简约而不简单,时尚又大气。
装修建材
入户的左手处,是一整面大的玄关柜,延伸到顶;纯白柜门,隐形把手,呈现出空间轻松温润的氛围,步入空间,再多疲惫在此刻都能被治愈。 底部悬空的设计让整个柜体更显轻盈,不仅换鞋方便,还不留清洁死角 局部镂空撞色打破“沉闷”,精致的细节设计提升生活幸福感 入户的左手处,单独“造”个超大镜子解决了视觉的孤立,还形成了空间围合感





设计亮点
靠近过道,设计了一个展示区,与客厅一体,既不打破空间的整体性,又增加了客厅的使用功能。 放置展示柜或墙面安装,不仅削弱墙面空间空旷,同时还可以展示收纳物品,把一些装饰品悬挂在墙上,以起到美化过道的作用
装修建材
业主真的很懂生活,喜欢简单惬意的现代风格,加入简约设计,摒弃过多的繁琐,加以工艺品的点缀,简洁当中又有对细节的专注,观赏性十足又给予人温暖舒适的感受,给生活增添些浪漫。
