
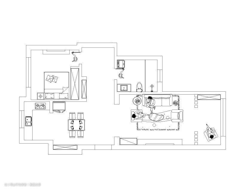
方案解析: 本案是75平的一居室,业主是一名金融女白领,居住状态是独居。75平的空间相对来说比较充裕,房子装修风格为日式原木,房屋大量采用原木材质,整个空间比较治愈简介和温和,没有过多华丽的软装,这样一片治愈美家是业主的心灵与身体所归之处,一进门就温柔得让人没脾气。 户型图: 通过户型图我们可以看出这是一套采光较好的房子,整个布局都比较流畅充裕,客餐面积较大,厨房做了较大的调整,设计成开放式厨房,流线非常顺畅,可以环顾整个家,让整个客餐厅空间看起来更加通透。



设计亮点
日式原木暖色系的客厅让家处处流淌着岁月静好的温馨,整个空间都充满舒适感,大量原木软装让整个家清新自然。 阳台与客厅打通,并利用墙体做定制柜,极大扩大了整个家的收纳力,春色背景墙搭配书法字画,整个空间都洋溢着书香气息,起到点睛之笔作用。 暖色木地板搭配纯白色墙体,配上原木沙发与浅米色沙发垫呼应,让整个空间都十分和谐,蓝色的沙发枕在整个淡雅空间中,一下子跳脱了出来,起到了点睛之笔。



设计亮点
餐厅与全屋的基调一致,木质的餐桌和餐椅,餐厅的温馨不乏烟火气,每天做好早餐,慢悠悠在此享受,想想都是惬意。 餐厅旁边一侧墙体为精美的餐边柜,可以放置日常所需物品,因为距离大门很近,出门在这个柜子内放置物品拿取十分方便。 木色的门框搭配木地板真的太有氛围感了,木纹色质感特别好,显得高级又耐看。



设计亮点
开放式厨房+岛台,设计感拉满,L形空间布局,动线流畅,采光和通风也极好,墙面采用大理石纹瓷砖,方便清理打扫,与木纹地板和橱柜呼应,高级感满满。



设计亮点
温润的木色+白色搭配,简约且统一,墙面颜色与白墙颜色呼应,地板与床头都是相互接近的原木色,整体这种白色+原木的空间搭配,温柔治愈不失质感,仿佛进入到田园自然之中。 整面落地窗让室内采光视野极好,床头背景墙采用大面积木框+书法画,与落地窗呼应简直堪称一绝。在这样的空间哪怕是发呆都是幸福! 顶天立地的衣柜收纳力极强,再多衣服都可以轻松收纳,原木展示柜的出现为整面衣柜也增加特色,不会显得大面积白柜而沉闷。



设计亮点
采用干湿分离设计,简洁大方,功能划分明确使用起来十分方便。洗漱台盆上的镜子装了灯带构成丰富的光源系统。 原木色门与台盆柜颜色一致,为整个空间起到呼应作用。 整个空间宽敞明亮,即提高舒适度也非常方便清洁,日常打理容易。
