
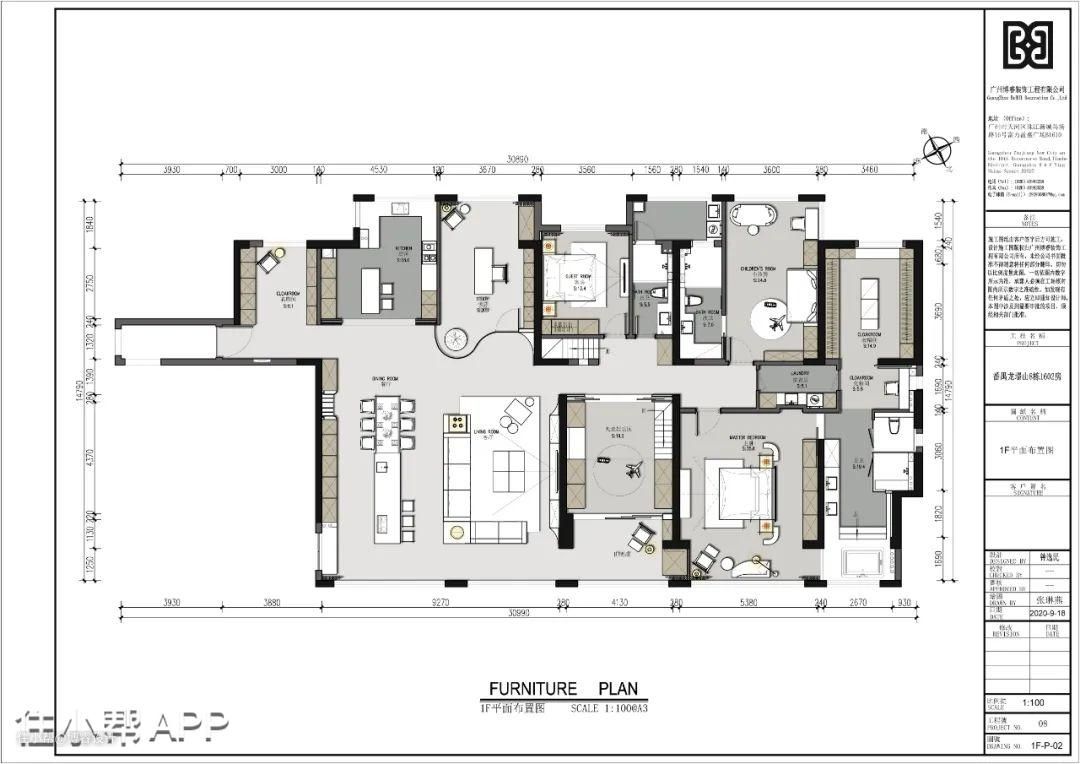
本案为398㎡的高层公寓,层高达4.3米。 南向看到小区内花园及外景,北向为别墅区, 能看到远处的商业写字楼。 优点: 1.户型方正 2.视野开阔 3.采光极好 缺点: 1、进入户门的过道黑暗,过道狭长 2、层高很高,客餐厅面积巨大 3、通向房间过道太窄,阳台很过长,隐私性不强 4、公共空间过大,无独立玄关 5、房子没有沉箱

业主是一对95后年轻夫妇,这套房子是他们的新家,全新的家意味着全新的开始。 业主夫妇喜欢黑白灰的高级,设计中不需要花哨的元素。 为了营造温馨的氛围,设计师建议不要选择冷色调,最终我们确定以暖色调为主。 现阶段有一个小朋友,计划在三年内再有一个小主人,业主夫妇希望给孩子们一个独立的活动区域。 需要足够多的收纳空间也是业主夫妇的一个重要需求。 长辈会偶尔过来居住,虽然对房间数量要求不高,但对空间品质非常注重。

此次项目的设计制定主题——晨光,晨光这一名字一出,那些美好的画面如雨后春笋,一幕幕的在我脑中放映。清晨的阳光恰到好处的打到窗台上,嫩绿的树叶上,一滴晶莹的露珠依偎在它的叶心,阳光洒在上面,光芒四射。推开窗户,空气中带着植物的清香,美好的一天开始。 在本案中,设计师用尽量使用的最简单,最少的材质来表现,主要采用自然的原木色、灰色、白色。 设计中引用中国园林布局手法,将大空间化为小空间, 使空间隔而不断,虚实交替,来丰富空间的层次关系。




进门玄关映入眼帘的是那颗吊钟树,透过玻璃,像一幅画,像一个景,就那望着它,一天都市生活的疲惫瞬间就消失了。在树的上方利用层高优势模拟天花效果,所有的设计围绕着玄关开始了。 公共区域以吊钟树为中心,围绕弧型的玻璃,所有设计元素由此迸发,将玻璃,天花,墙面,以至于地面融为一体。原建筑近百平方的大厅功能区分,被设计师分成了中厨、书房、西厨、餐厅、客厅五个区域,设计师考虑到空间功能间的互动,隔而不断的设计方式,既能互动,又相对独立。




客厅是以暖色调为主,橡木色木地板与白色天花的简约设计,正好搭配出温馨的感觉。采用无主灯的设计,选用的是4000K色温,明亮防眩不晃眼,同时氛围感十足。 采用隐藏式烤漆柜形式的电视背景墙,满足业主极大的收纳需求。同时设计中考虑电视机的走线,将线隐藏于柜体内,使之更加干净整洁。 选用现代模块组合沙发,不仅容易打理,还能自由组合满足不同的户型需求,提升客厅的灵活性。







客餐厅一体式布局,两扇大落地窗,为空间带来明亮的阳光以及充足的照明。考虑到聚餐,餐厅选用岩板台面的6-8人餐桌,满足多人的用餐需求。




业主喜爱烹饪,常年在国外居住,空闲时间也会亲自下厨,而西厨主要承担一个餐边柜和烘焙区的功能,同时也承担着社交的功能,柜子设计成隐藏的蝴蝶门,打开后是一个操作台,最大程度提高空间利用率。 中厨结合岛台,满足业主不同的饮食需求。这个区域最大化的将景观和采光合二为一,一边做菜一边欣赏窗外的美景也是十分享受。中厨采用L型洗切炒动线,操作流畅。一组高柜收纳了一台嵌入式蒸箱,另一侧的岛台既是料理台也是吧台,使用需求可以随意切换。




在儿童房的陈设设计中,设计师营造了一个富有童趣、能带给人们更多来自艺术设计灵感的空间氛围。 拱形置物架的设计,引发了孩子的好奇心。当孩子走进该空间,能够随意坐在地毯上,嬉戏玩耍,让孩子在其中感受美妙的游戏时光。 小孩活动区的设计中,游戏功能与动线串联起来,形成小孩子玩乐的特殊动线。将小孩与客厅相结合,形成回形动线方便小朋友活动,同时将小孩活动区作为多变空间,现阶段还可以作为客房,后期增添新成员时也可以作为小孩房使用。


卧室整体传递内敛温和的气息,从设计到道具,匠心独运。素雅的空间布置以简单的线条,为空间增添细腻的灵动感,没有多余繁杂的装饰,却交融出优雅且富有生命的力量。



卫生间采用干湿分区,拥有独立淋浴间与独立马桶间。洗手台与浴结合形成L型体块,更具流线感,在空间中,黑色属于后退色,黑色的瓷砖与白色瓷砖产生对比,显得空间更加宽敞,节奏更清晰。隐藏式电热毛巾架与墙面融为一体。
