

装修前
设计理念:这是一套温馨奶油风格的装修案例。本案一家2口,更注重空间的舒适性,对家的样子更多的是希望这个家简约温馨且富含质感。定位简约奶油风格,对原户型稍作改动,半开放厨房设计,扩大入户及餐厅过道空间。没有过多造型设计,挑选温柔轻盈的家具装点,搭配出一个简雅清新的奶油风美宅。希望你们会喜欢。
装修后
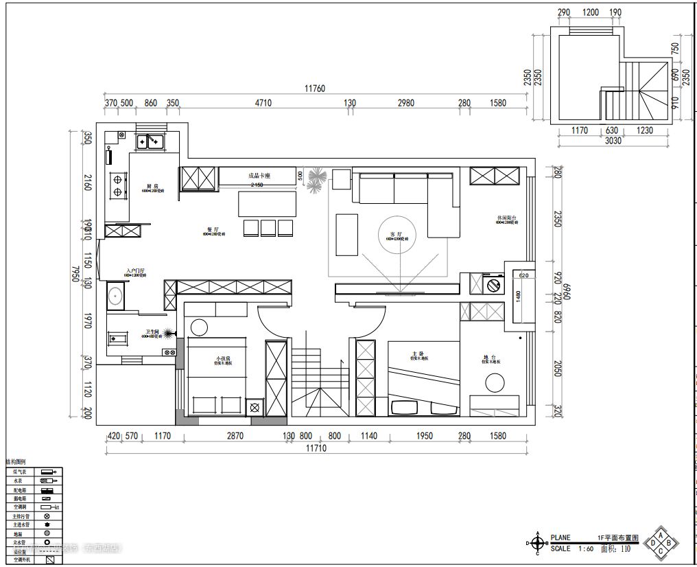
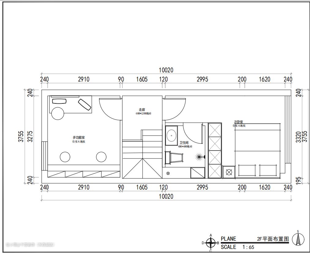
▲ 一层平面布置图:①除会客、餐厨区域外,将小孩房、主卧也设计在一楼,适合如今2人的家庭结构。②客餐厅一体化布局,并设计半开放式厨房,扩大入户区及过道空间,提升全屋品质。 二层平面布置图:①将独立的房间空出来作为多功能房,可根据日后人员变动再做更改。②次卧+卫生间的简单布局,注重空间的舒适度。









设计亮点
▲ 客餐厅一体化设计,并纳入休闲阳台,扩大采光与空间的同时,拉伸整体的纵深感。大白墙设计辅以装饰画上墙修饰,呈现简约美学。整体使用奶油色调,结合同色系软装配饰,营造清新柔和的空间氛围。哑光白色系的地砖与顶面呼应,奠定治愈温柔的奶油基调。
软装搭配
▲ 奶油色调的异形沙发与背景墙融合呼应,搭配云朵茶几,简约却不简单。客餐厅无边界设计,增强空间围合感,提升公区之间的交互性。电视墙的设计简洁且大方,悬浮设计上下皆内嵌灯带,搭配同色系的超长电视柜。纯粹治愈的白色+干净明朗的硬装,落落大方。




设计亮点
▲ 餐厅继续沿用客厅的奶油色调,保证空间的连贯和统一。整墙定制一排通顶收纳柜,拱形玻璃展示柜+开放格组合设计,衍生更多可能。
软装搭配
▲ 清新淡雅色调的餐桌靠墙而设,搭配造型感主灯,构建舒适有温度的用餐环境。小型置物架上墙设计,辅以小摆件装饰品修饰。


设计亮点
▲ 厨房,呈L型操作布局,出口处打开成半开放式设计,适时扩大厨房空间,宽敞明亮。餐厨毗邻而设,形成清晰而明朗的生活动线。
软装搭配
▲ 雾霾蓝色系的橱柜质感十足,上下皆做橱柜让厨房区域具备很强的收纳性。墙地一体铺设浅色大砖,共同营造清新舒适的烹饪环境。



设计亮点
▲ 以木白搭建的楼梯,连接上下两层,设于客餐厅之间,不影响两者的交流。在木色踏步之下,嵌入灯带,营造通透轻盈的空间氛围。





设计亮点
▲ 主卧,将休闲地台纳入,并同样铺设人字木地板,奠定自然温润的主基调。整体使用奶油色系,局部辅以木色点缀,增添层次。背景墙以木白进行分层设计,丰富视觉感受。右侧定制到顶白色衣柜,尽头设开放格并延伸作为床头柜使用,不留任何卫生死角。
软装搭配
▲ 另一侧以斗柜一体的伸缩梳妆台取代床头柜,搭配亚克力材质的水晶化妆凳,白色治愈纯粹,空间整洁干净,带来视觉上的美好享受。在地台一端,也不忘设计壁龛,拱形造型+灯带嵌入,提升空间的收纳功能。白色梦幻帘轻盈通透,透光不透人,打造舒适的睡眠空间。


设计亮点
▲ 卫生间,延续公区的整体设计风格,次卫墙面铺贴彩色水磨瓷砖,提升整体精致度。主卫以功能分区而设,挑空洗漱台方便清洁。
