好房型太重要了,过来人说句实话,这样才能挑到称心如意的好户型
李秀玲设计师
2020-05-06
最近收到了很多小伙伴的选房经验,挖到宝藏了!既然大家都说了,作为买房和装修的过来人接触了上百套房子,今天我就来说说选房型这个问题。

1基础理论
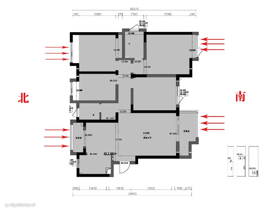
现在大概有99.9%的人知道,选房型第一标准:南北通透、户型方正;所以,到底什么样的房子能称的上这两点呢?
1、南北通透
①朝向

首先是就是房屋的朝向了,坐北朝南是第一位;正南最优,那可能有小伙伴说,正南朝向的房子贵就算了,还少,咋办?
建议:首选正南、其次东南、然后西南,其他方向就东>西>北(这三个都不建议)。
②通风
选好朝向,只能说已经达到了坐北朝南,还算不上通透,通透还得看通风。

△对侧通风
南北都有窗户,形成空气对流的房子,才能南北通透!

△相邻通风
次一点的户型,就是相邻通风,南边有窗户,北边没有,这样的通风条件,在中间户中居多。

△单向通风
即只有窗户的南边有窗户可以通风,单向通风的通透度是最差的,小伙伴们要慎重选择哦。
通透度相比:对侧通风>相邻通风>单向通风
2、户型方正
看户型是否方正,主要看两点:开间进深、空间比例。
①开间进深

就拿上次举例的户型来说,这个户型怎么就不方正呢?因为它开间进深的比例不合理!采光和保温必定不好。

开间:房子东西墙之间的距离,开间越大,采光面越多。
进深:房子南北墙之间的距离,进深越深,保温越好。
注意:开间进深的黄金比例为6:4。
②空间比例
除了看整体空间的开间进深比例是否合理,各空间之间的比例也要合理才能算的上是一个好户型。

建议
①客厅开间3.6m以上才会舒适,主卧开间最低3.3m,次卧最低3.0,书房最低2.7m
②走廊过长、过道过长的房型,大多数人家都是利用不上的,选择的时候需要慎重,虽然用不上,但是钱还是要算上的。
只有满足以上4点,才能算的上是:南北通透、户型方正哦!
2舒适升级
想要越住越舒适,光是以上所说的还是远远不够的。
1、隐私性好
①玄关
玄关的作用是什么,除了收纳,最最最大的作用就是保护隐私!

②动静分区
动区:客餐厅、厨房、阳台、客卫、过道。
静区:卧室、书房、主卫。

动静分区的优点:保证整体环境的安静,不打扰家人的休息和工作,让生活更加有条理,家人动线更加流畅。
总结,这样的房子动静分区才叫好 ↓↓↓

总的来说:
①动区和静区最好集中分布,可根据外墙,东西分区或南北分区。
②在公共活动区域如果一眼就能看到卧室内的场景,那隐私性自然不算好。
③卧室的门洞朝向最好不要对着入户。

2、家居动线
家居动线分为:家人动线、家务动线、访客动线。面积相同的户型,动线越短,则舒适度越高,三条动线互不交叉,动线最优哦!

3常见户型答疑
解决好了户型的问题,又到了新一轮的选择困难期,比如说...
1、高层还是底层
建议:可选总层数1/3以上、2/3以下的楼层哦!

2、一楼还是顶楼
很多房型一楼送院子,顶楼送露台,这就让人纠结了!小孩子才做选择,成年人选择都要!

顶楼的优点是:楼上没邻居,安静;风景好;隐私性好。
缺点是:有漏雨风险,夏热冬冷,停电爬楼梯累。

一楼的优点是:进出方便,利于逃生;适合老人居住。
缺点是:隐私差;蚊虫多;可能会回潮;噪音大。

所以到底怎么选?还是要看小伙伴们自己的接受度!
3、户型标识怎么看?
这些基本的户型标识一定要认识哦!看懂户型图才能防止被坑!▼▼▼

飞墨君当然也知道,十全十美的房子,要么少,要么贵;挑到不那么完美的房型很多时候也不是我们自己愿意的,那就通过设计去改造它。

(部分图片来自网络,如有侵权,请联系删除)