成都九龙仓御园186平米简欧风格装修案例解析
成都业之峰环保装饰
2020-07-23
本案是欧式风格,欧式风格有它的特点是所有主材的配置质感非常强。简单的欧式线条与家具互相衬托。
楼盘名称: 九龙仓御园
建筑面积:186平米
装修风格:简欧风格
房屋户型:平层
工程造价:15万元
主材造价:39.4万元
每平米造价:3200元



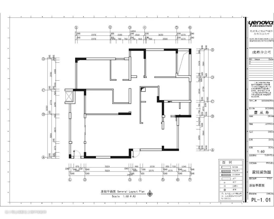
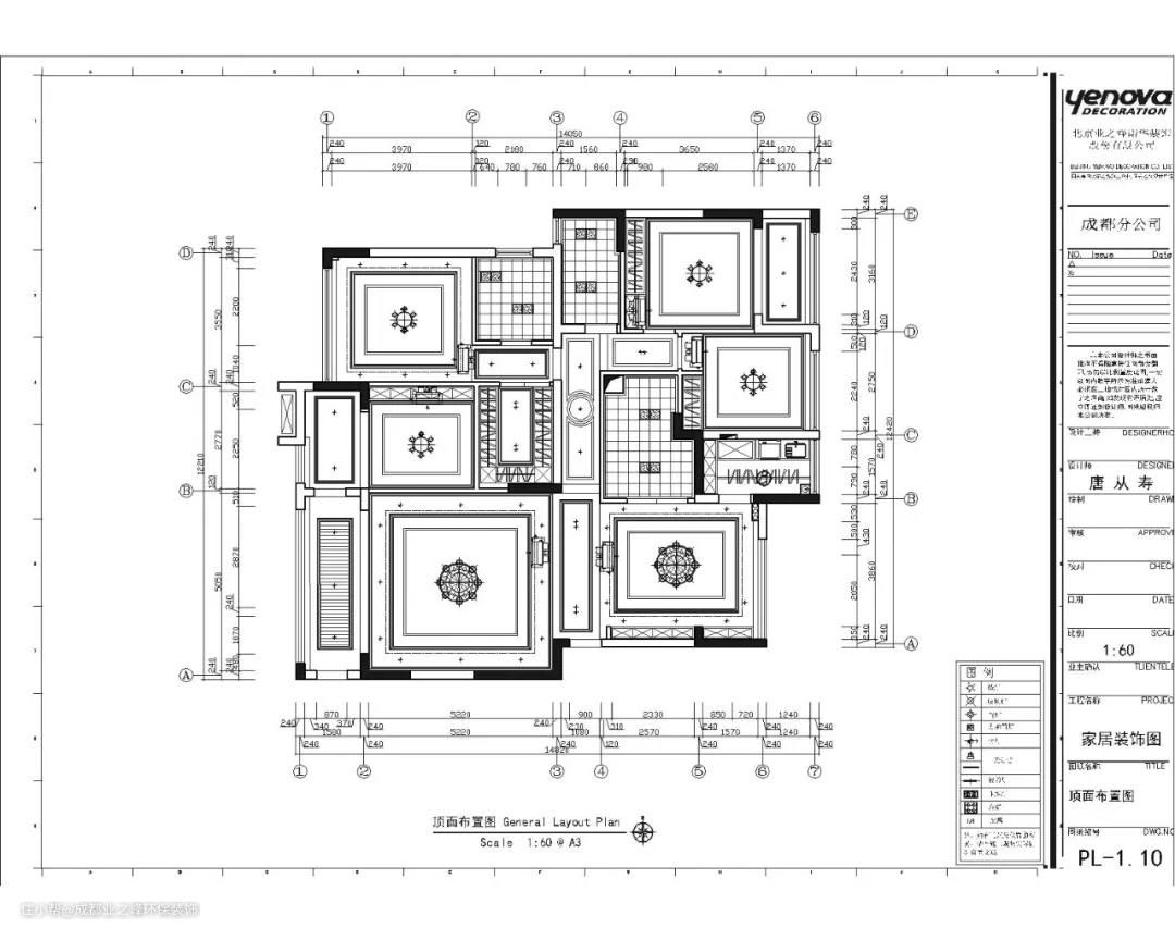
九龙仓御园186平米户型图

▲ 在组合上注意空间搭配,深色的硬包显得更有质感,且不显局促、不失大气,尤其多采用开放式自由空间。

▲ 在选色上,一般选择自然的柔和色彩,且以素色浅色为主,凸显出家具以及装饰的质感,彰显品位。

▲ 在柜门等组合搭配上避免琐碎,让人处处感受到浪漫主义气息与亲切舒适的居家感觉。