沐浴在海风之中,粗旷而简单
如院空间全案设计
2020-07-26
该建筑位于瓦登海(Wadden Sea)的一个名为Fanø的小岛上
▼首层平面图

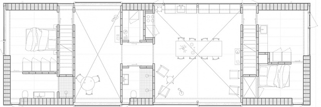
▼二层平面图

▼剖面图

▼住宅轴测图

▼住宅外观
这种类型的特点是其细长的形状,谷仓和居所传统上被放置在连续的屋顶下。为了抵御岛上强烈的西风,它们的风向从东到西。他们是简单和稳健的在他们的细节和清楚的使用和材料的应用。



从房子的大小到门把手的大小,整体的易读性是显而易见的。在整个过程中,粗壮、廉价的材料形成了强烈的、富有表现力的叙述。

它的外观特点是陡峭的坡屋顶覆盖着异形粘土瓦和温暖的赤陶土色调渲染。

▼室内一览
通过精心的安排,每个组成部分被暴露和提升,形成一个连贯的整体。
空间布局围绕三个体量安排,通过分区分隔,建筑稳定,围合楼梯允许移动到上层夹层,其中容纳了办公室和额外的睡眠空间。

木质的家具照应着亮堂堂客厅
微咸的海风带走沉闷的烦恼

▼两侧可往上爬的折叠楼梯



▼透光性超棒的落地窗

▼推拉门式的卫生间

它的每一层组成都被展示出来,并被绘制以强调建筑的复合性质。

层压单板木材,粗渲染,绝缘粘土块,彩色中密度纤维板,纤维石膏板,粉末涂层钢,皂云杉胶合板和沙色水泥砂浆给内部一个丰富多彩的材料质量。

深边和交叉支撑梁在层压板木材定义了每个房间的周长

结构元素,饰带和栏杆它将屋顶从砖石结构上抬高。梁线以下的隔热粘土块分隔了空间。砌块采用浅陶色,接缝狭窄

▼过道

▼厨柜细节

