128㎡现代黑白灰,太空主题儿童房,简直是科幻迷的梦乡
太原今朝装饰旗舰店
2020-08-26
在这套128平米的现代风格装修案例中,整体空间以时尚高级的黑白灰搭配,细节加入安静优雅的蓝色装饰,营造出一种科技感满满的大方氛围感。而在儿童房的设计上,更是大胆地采用了太空主题的设计,从墙面到天花、再到空间的布局设计,营造出一种充满科幻感的太空主题房间。
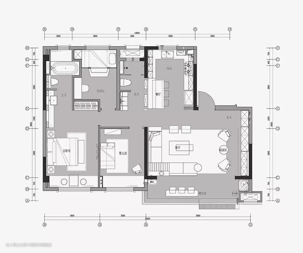
平面布置图

客厅


▲客厅空间以休闲与家庭互动功能为主导,没有电视墙的设计布置,黑白配的家具细节,结合灰色的地毯与沙发,带来的是一种高级时尚的空间感

▲靠窗的阳台位置布置吧台,与客厅沙发相呼应,成为一个情趣优雅的休闲角落。沙发墙在雅白大理石的墙面基础,挂一幅蓝色调的大尺寸装饰画,也让空间显得安静而优雅。

▲挨着定制电视柜,布置上休闲桌椅,后方收纳柜加入玻璃柜门的设计,也让空间显得更加简洁时尚。

▲细节软装的布置,加入黑色线条的装饰,也是显得更加成熟优雅而气质。
餐厅

▲餐厅与客厅连贯,而餐厅则是与厨房一体式的开放设计,客厅与餐厨区中间以黑色推拉门作为灵活的隔断,可以封闭也可以开放,让空间显得更加灵活舒适。

▲黑色脚架+大理石台面的餐桌,搭配蓝色的皮艺餐椅与卡座,结合餐桌上的鲜花花瓶布置,也让用餐氛围显得安静优雅而时尚舒适。
过道


▲黑色门框与踢脚线等线条布置,贯穿了整个过道空间,带来的视觉感也更加时尚自然。

▲层层递进的十九个,右边空墙上挂一幅大尺寸的装饰画,也增加了走廊空间的优雅文艺气质。
卧室


▲卧室床头墙以硬包背景+护墙板墙脚,布置简约舒适的无靠背床铺,床尾还有一张棕色的皮质床尾凳,搭配蓝色床单,营造出一种安静优雅的睡眠空间。飘窗布置休闲小茶几与坐垫,也成为一个舒适轻松的放松空间

▲床头柜上方的饼状吊灯,还有两幅立体视觉感的装饰画,也让空间显得更加文艺优雅。
衣帽间


▲主卧床头另一侧布置了梳妆台+衣帽间组合,衣帽间以玻璃门作为柜体设计,让空间显得通透而又实用雅致。
主卫


▲雅白的洗手盆,还有黑色浴缸布置,整体空间也是充满了成熟优雅的气质。
男孩房

▲男孩房以太空主题设计,星空天花、卫星图案的墙纸与天花连成一体,营造出一种充满童趣与梦幻气质的空间体验。

▲靠窗定制的床铺,以圆形的拱形门进入,像是进入太空舱一般的仪式感,让空间更加童趣活泼。

▲书桌上的漫画书,还有一个动物头像摆饰,也让空间显得更加科幻时尚。
女儿房

▲儿童房整体色调比较暖馨舒适,一面硬包墙,布置婴儿床、小滑梯与玩具,也让空间显得更加活泼有趣。