89㎡各户型的设计风格分享
恒彩家装集团
2020-10-15
在诸多房屋面积中,89㎡无疑是最受青睐的。总结原因无外乎两点:
1. 当前购房主力军为90后,且大部分作为刚需房购入,无论是小两口或是未来的三口之家,89㎡是最能满足居住要求之选。而且其未来的转售率也较高,值得投资。
2. 购房者若是购买小户型,生活空间会比较紧促,而大户型相对的为之花费的生活成本也较大,不仅需要背负房贷还需要负担各种生活开支。为了良好的生活环境,大部分购房者也会选择实用的89㎡。

为了给广大已购但未装的朋友们一些些灵感,本期小编贴心整理了89㎡风格合辑。
01
#定位:宝嘉誉府 风格:现代风

项目面积 | 89㎡loft
项目户型 | 三室两厅
设 计 师| 杨滟妮
装修投入 | 精装18万


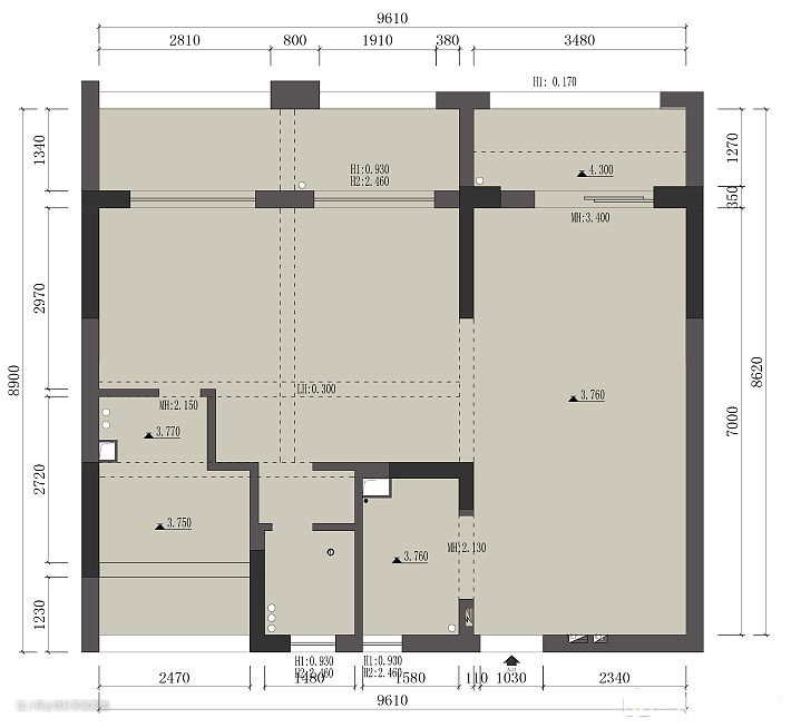
本案户型非常方正,南北通透,客餐厅空间宽敞,视野开阔,采光良好。设计上做了一些小的调整,基本保留了原户型的格局。
重新规划空间动线,书房房门位置做了调整,过道尽头空间用来分别做主卧和书房的柜子。双卧室和客厅阳台都包进来,增加空间感。
//餐厅

简单的四人餐桌,选用低调简约的颜色和线条,不喧宾夺主,与整个风格色系搭配很契合。
//客厅

餐厅再往里走就是客厅的空间了。客厅层高较餐厅更高一些,进来之后瞬间就有种豁然开朗的感觉。
//主卧

主卧背景采用半面木饰面做护墙,上下两种颜色和材质,更有层次感。
//次卧

次卧空间面积与主卧面积一样大,唯一不同的是主卧的衣柜嵌入到过道位置,次卧衣柜在卧室空间里面。
02
#定位:逸品福邸风格:后现代

项目户型: 三室两厅一厨一卫
装修投入: 硬装17万
设计老师: 杨晓枫
常住人口: 2人


设计亮点:
两室改三室,主卧的阳台敲掉包进来,隔成两间房;进门就是厨房,厨房做半开放式,利用吧台隔断餐厅区;整个风格设计上,追求极致的简约而不简单,在材质和色彩上强化空间装饰感。
//客厅

客厅整体简单、素净,大面积白墙坐沙发背景,与深色皮质沙发呈色彩对比,清爽干练。
//餐厅

餐厅位于厨房边上,与厨房直接以简易吧台作为空间隔断。
//厨房

厨房空间不大,小u型半开放式设计增加空间感,白色漆面方砖清新干净,大量白色的使用,让人耳目一新。
//主卧

主卧灰蓝色乳胶漆背景墙,搭配简单的床头吊灯,家具选择上也是追求舒适性,简单清爽。
//榻榻米房

全屋榻榻米设计,增加储物空间,还能作为女儿来的备用房间,一举两得。
03
#定位:西溪悦居风格:现代意式

项目户型:三室二厅一厨一卫
设计老师:许新宝
设计说明:
本方案结合年轻主人需求将现代、简洁、时尚融入居室中,利用留白突出主体,使用少量的元素来提升品质,以自然舒适的材质及柔和淡雅的色彩,营造出宁静轻松的空间气韵。
//客厅

客厅以浅灰色作为主色调,跳跃的橙色与蓝色软配作为点缀,呈现出空间的动与静态美。
//餐厅

餐桌是整个餐厅最大的亮点。意大利家具以精细的做工,出色的设计和可靠的质量,在世界上拥有极佳的口碑。
//主卧

卧室的设计手法依然遵循简单、朴素,以极简的线条和色彩去呈现,通过材质的质感打造,表达简单而又精致的生活。
//厨房

厨房不论是色彩还是纹理都由浅及深,层次分明。通过对颜色的把控,轻而易举地打造出一种精致的高级感。
04
#定位:湾上风华 风格:现代北欧

项目类型 | 三室两厅
设计老师 | 梁斐
主要用材 | 墙面乳胶漆、全屋地板
装修投入 | 合同价15W,总投入30W


户型改造:
主卧房门向内移,预留出一定的过道空间。房间到卫生间之间隔出一部分作为走入式衣帽间;厨房靠入户门处的墙敲掉,原本厨房门的位置做成一个吧台,整个厨房设计为开放式,空间上会显得更宽敞;书房向客厅位置拓宽,做成客房结合书房使用。
//客厅

客厅空间以白色作为背景色,非常干净简洁。简单的吊顶配合金色金属条走边,纯净的色彩里面带着一点小轻奢的味道,配合家具的金属走边,非常契合。
//餐厅

餐厅位置位于客厅背后,紧挨沙发。同时,也是考进厨房的位置。厨房的空间改造,让餐厅与厨房之间没有完全地隔断,整个空间感会更好。
//主卧

主卧空间色彩鲜明,是存在感非常强烈的孔雀蓝色,隐隐之中带着一丝绿色的味道。正是这种模棱两可,让整个空间充满神秘色彩,捉摸不透。
//次卧

次卧空间相对要内敛一些,低饱和度的灰绿色作为空间背景色,既友好又亲和。同样是黄色作为跳色,低调而又不失雅致。
05
#定位:融信·学院府风格:美式轻奢

空间性质:住宅空间
项目户型:三室两厅一厨两卫
设计老师: 姜新伟


在本案中,通过大量高纯色彩以及细节上的雕琢,向我们完美地诠释了美式风格清新通透的一面,大面积色彩的修饰不但不显得浮夸,反而让人眼前一亮。
//客厅

湖绿色沙发背景墙在走进客厅的第一时间便抓住了人们的眼球,白色石膏线将背景墙框成两个部分,避免了墙面过多留白,让空间变得充实。
//餐厅

餐厅空间主题上与客厅保持一致,深棕色的实木家具保留了美式风格的实用大气。餐椅的细节处理跳出了古板、沉闷的禁锢,多了几分艺术气息。
//主卧

卧室空间整体采用浪漫尊贵的紫色作为主要色调,浅紫色的墙面搭配紫色系列的软装,紫色的窗帘、椅子,整体和谐统一。在材料上,选用舒适柔软的材质,意在营造温馨浪漫的起居空间。
//厨房

厨房空间整体清新淡雅,象牙白色的橱柜搭配花纹清新的瓷砖,干净通透。
06
#定位:学院北麓 风格:轻工业

设计主题:随心所欲
项目户型:三室两厅一厨两卫
设计师老:舒贵强
工业风是对工业时代的复刻,将家居设计与工业时代相结合,经过悠长时光的碰撞,丰富了故事场景、也圆润了空间棱角,琢磨出属于工业时代的岁月质感。
//客厅

客厅墙体保留了原有建筑的一些特色,墙面没有任何装饰。同时,水泥灰色的沙发、金属骨架上的灯,在平淡与宁静中,寻找一种热血沸腾的方式来满足我们心灵的诉求。
//餐厅

餐厅空间融入了黑色金属框的隔断,同时餐厅背景墙用砖墙作为装饰,极大地保留了工业风的味道。再配以黑色硬朗的餐桌椅,营造沉稳厚重的气息。
//厨房

开放式设计让厨房不再一个单独个体的空间。空间上既避开了与其他区域的相互交叉影响,又能很好地自我发挥。
//主卧

卧室中质地轻盈的工业风迎面而来。简单干净的水泥灰色墙面不加任何渲染,土黄色的木饰面,黑色金属骨架及灯增添了几分工业元素。
07
#定位:尚景国际风格:新中式

项目户型:三室二厅一厨两卫
设计老师:吕骏元
设计说明:
整体氛围淡雅,清新,在喧嚣的尘世中你应该拥有一处温和的港湾,静一静,享一享,种种花,栽栽草。浸心且逸尘。
//客厅

客厅是中式与现代居室风格的碰撞,设计师以现代的装饰手法和家具,结合禅意中式的装饰元素,来呈现亦古亦今的空间氛围。
//餐厅

餐厅集中采用仿古木色做为主色调,原木色的餐桌椅边上色彩稍重的仿古木色橱柜增添了几分禅意元素。
//厨房

厨房更多的是现代元素,光洁的地砖、厨具,白色中带着仿古的棕木色作为装饰,古典与现代合二为一。