访问APP

75㎡ 一房变两房,开放式布局更显宽敞

秦皇岛蓝琪装饰

2020-11-04

这间舒适宜人的公寓总面积为 75㎡

原本是一间一居室的老式公寓

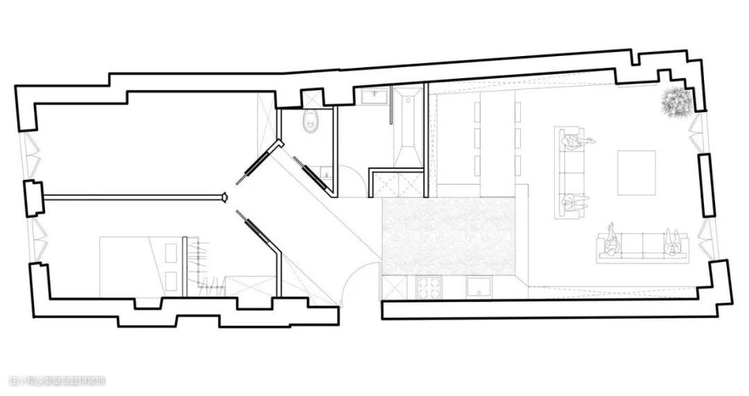
平面图△

立面图△

一进门就能看到一个开放式的空间

白色的墙壁与天花板

配以人字形木地板

看上去很简洁

天花板用老旧木制横梁装饰

充满年代感

厨房操作台以木饰面装饰

防溅采用大理石材质

既美观又实用

操作台上下都是储物柜

储物空间非常大

厨房的对面就是餐厅

餐桌是定制的

是用两块木板拼接而成的

分别固定在台阶和墙壁两端

形成了一张独特的餐桌

餐厅周围是定制的书架

其中一些格子是用木饰面装饰的

与周围的设计相呼应

在不用餐的时候

这里俨然就是一间书房

餐椅和沙发都是蓝色调

为这个温馨的空间增添了奢华感

厨房的另一端

就是通往两间卧室的过道

过道的一侧

是一间浴室和一间卫生间

把浴室和卫生间分割开来

能更好的达到干湿分离的效果

浴室用白色大理石瓷砖包裹

洗手台是木制的

墙壁上的玻璃隔板

与洗手台下方的木制隔板

给浴室增加了储物空间

能更方便的收纳日常用品

卫生间的墙壁用了两种样式

上半部分是普通的白色墙壁

下半部分的大理石瓷砖与地板

和浴室相呼应

这间公寓原本只有一间卧室

现被设计师改造成了两间

主卧的床头板

与墙壁连成一体

蓝白相间的床头板

与客厅的色调一致

增加了整体感

床头板的背后

是步入式衣柜

虽然空间不是很大

但是却井然有序

 

精致温馨的现代家装设计,美出了新高度!

亚美利加整体家装
65赞

 

浴室没有对外窗怎么办?

亚美利加整体家装
59赞

 

新中式装修风格到底有多火?看这45㎡超大客厅变身记!

亚美利加整体家装
69赞

 

有了这5点瓷砖铺贴知识,装修再也不纠结了

亚美利加整体家装
57赞

 

装修十连问?只有经历过,才明白其中的苦!

亚美利加整体家装
65赞

 

注意这6大要点,没有装不好的客厅,值得收藏

亚美利加整体家装
57赞

 

家里收纳空间不够怎么办?房间的拐角空间如何利用起来?

亚美利加整体家装
71赞

 

当客厅与餐厅组成CP后,在50㎡的空间里改变你原本拘谨的生活

亚美利加整体家装
66赞

 

5款男孩儿童房装修效果图,款款有亮点

亚美利加整体家装
64赞