220㎡三层小别墅,这样装才更像家
圳星装饰集团
2020-11-07
导语:本案为一个三层小别墅,总面积220平。每层使用面积只有70平不到,简约的设计突出了房型的优点,没有繁琐的罗马柱点缀,更有家的温馨。业主夫妇知性温良,热爱生活,厨艺再我眼里差不多达到米其林轻食餐厅水准,摆盘非常有设计感。女业主顾老师喜欢简约而有设计感的东西,经常淘一些好看好玩的物件图片分享。因此整个风格基调定位简约台式,空间结构尽量拓展视野,化繁为简,因为户型有点纵深所以在餐厅岀做了一面反射墙面增加采光,对原始建筑不合理的地方做了改动,业主夫妇还是很满意的。

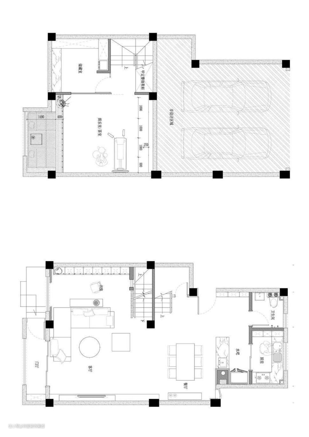
平面布局图 #四室二厅一厨二卫 #简约

平面布局图 #四室二厅一厨二卫 #简约

1.人说绿肥红瘦,两个贪吃的小鱼好像吃瘦了花瓶,让入门处不会拥挤,每日由喧闹处归来总有一分静溢呈现在眼前。

2.客厅与餐厅的建筑结构纵深狭长,为了增加餐厅区光线,增加了一面黑色反光墙面。

3.业主顾老师大爱并且剁手买来的台湾小狮子,令灰调的沙发区充满了小幽默,(此张为帅气小狮子的临时摆拍:)。

4.电视墙和装饰画,在疏离与对比之间达成平衡。

5.一半原木一半素白,在节奏与变化的细微里,撒一地暖阳,偷一日闲暇。

6.半枯的叶子,不饱和的彩色抱枕,我尝试让节奏停在意味的某一处。

7.餐厅左侧是从地下车库进来的入户门,为了维持整个空间的简洁,入户门做成了隐形门。餐边柜上的插花植物就是院子里折来的,经济、方便四时常有,却非常

8.厨房功能为主,配色为做旧木色、米灰色瓷砖,光面黑,简洁温馨。

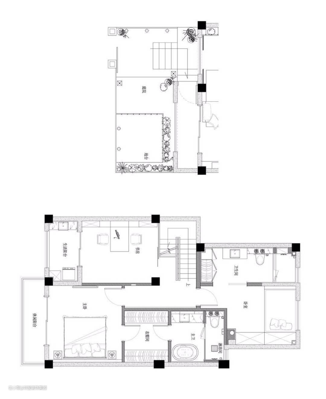
9.楼梯间长长的一抹肌理,似是而非间将空间引入卧室。

10.卧室结构尽量简化,依据功能设置进行色块构成,水泥漆的加入对比出木作的暖。

11.虽然是低调的原木配色,也要努力凹出一点点风情。

12.北侧墙的入室门、衣帽间门均做隐形门,令整个空间保持流畅和简洁。

13.早晨醒来一帘明媚的阳光,一束青翠欲滴的玫瑰。

14.书房在楼梯口,为了增加楼梯间视野,拆除了书房整面墙体,做推垃门。令两个空间灵活闭合与融汇。

15.儿子房间因为面积不大,所以我将卫生间与卧室打通,用半扇玻璃隔断和灰纱帘作虚隔断,令两个空间视野大增、人机尺寸也非常富裕,半虚半实之间得一夜美

16.米白色的墙砖,若隐若现的灰色烟纹,整个空间简洁而充满质感。(墙砖铺设完成的时候 业主和我都非常喜欢)

17.卫生间的堵头设置了一面墙的大衣柜,原木色和米白色之间是院子里折来的枝条,江南不在窗外也不在三月,就在此时。

18.地下室光线较弱,业主儿子喜欢架子鼓,业主喜欢下围棋,所以做了一面墙的反光处理,减少地下室的压抑感。

19.不大的花园,通过灯光与材质的变化,凹出一个下午茶的好氛围。