小夫妻的35㎡小户型婚房,全屋配色让人赏心悦目,精致又温馨
家居设计师宅哥
2020-11-08
关于小户型如何装修这个问题,其实没有什么标准的答案,每个家庭的户型不同,需求也不同,所以设计出来的方案也会是不同的。装修设计的核心其实是自己喜欢,只有把家装成自己喜欢的样子,住着才舒心。宅哥主页分享了很多小户型的装修设计案例,有兴趣的朋友可以到我的主页翻看一下,也许就能找到一套你喜欢也适合你家户型的装修案例。

今天这篇文章宅哥给大家分享的是一套套内面积35.7平米的小户型公寓的装修设计案例,希望能给大家带来一点装修上的灵感。这套公寓属于一对刚结婚的夫妇,夫妻俩喜欢在家做饭、旅行、种花以及DIY。他们想要在这个空间内规划出卧室、衣帽间、客厅、书房、厨房、餐厅、卫生间,并且保留阳台用来种一些植物。原始户型最大的优点就是除阳台外,室内完全是开放式的空间,给了设计师很好地发挥空间。

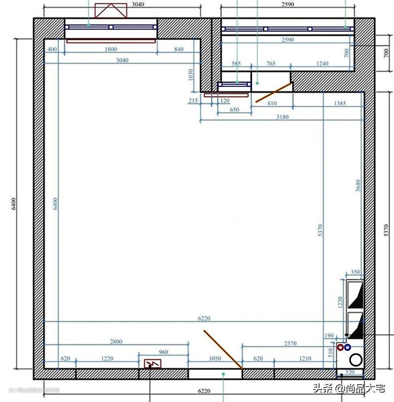
设计师根据客户的需求,做出了上图的平面布置:
1. 根据下水道和烟道位置,划分出卫生间和厨房的空间。
2. 新建隔墙隔出衣帽间和鞋柜的空间,配电箱隐藏在鞋柜中。
3. 用玻璃隔断隔出卧室,保障卧室的采光。
4. 客厅和书房一体化设计。
5. 餐厅和厨房一体化设计。
6. 保留阳台作为晾晒区和植物种植区。
下面我们一起来看看完成后的实景效果吧。
玄关

入户玄关设计到顶的鞋柜,增加家里的收纳空间,柜门中间镶嵌镜面,作为穿衣镜使用,下方摆放了一张沙发凳作为换鞋凳,进出门可以坐着换鞋。玄关处选择和其他空间不同的地砖来进行空间的划分,进门的时候地砖看上去像一块大的地毯。
卫生间

从入户玄关右侧的门进来就是卫生间,卫生间墙面地面整体以浅色系为主,搭配顶上均匀扩散的灯光,让小空间也不会显得压抑。卫生间左侧是浴缸和淋浴组合,在浴缸和浴室柜中间用浴帘做隔断,做到干湿分离。淋浴花洒旁边设计壁龛,收纳沐浴用品。中间摆放浴室柜,浴室柜悬空设计,防潮好打理。右侧是马桶和洗衣机,为了最大程度上的节省空间,壁挂式马桶是斜着摆放的。
厨房+餐厅

顺着卫生间隔墙设计L形的橱柜和吊柜,作为开放式厨房。厨房超大的操作台面,满足了夫妻俩在家做饭的需求,即使两个人同时动手,也不会拥挤。

厨房电器全都采用嵌入式设计,摆放在橱柜和吊柜中,橱柜旁边留出冰箱的空间,方便使用,冰箱上方空间也没有浪费,设计了壁挂式空调。天蓝色的橱柜门和玻璃器皿与原木色系的餐桌、地板、橱柜台面用来营造一种阳光、大海和沙滩的氛围。

餐桌摆放在整个区域中心的位置,餐厨一体化设计,既节省空间,也方便使用。
客厅+书房

厨房和餐厅对面的空间是客厅区域。

客厅沙发摆放在客厅与卧室的隔墙一面,正对着窗户。旁边墙上设计了储物柜,用来收纳书籍、摆件及一些小物品。客厅没有设计电视,因为小夫妻俩说不想把时间花在在家看电视上。

客厅与阳台的墙壁转角处被设计成了书房,一张书桌和书架满足主人在家办公学习的需求。
卧室

客厅旁边是宽敞的卧室,为了不影响卧室的采光和通风,卧室使用玻璃作为隔断。卧室面向餐厅这一面是入口,为了保障卧室的私密性,折叠的玻璃门全部采用的是磨砂玻璃,既不影响采光,又能很好地保障隐私。

衣帽间设计在蓝色的移门后面,天蓝色的门和墙面组合营造出海洋和沙滩的感觉。卧室内装有壁挂式空调,解决空气流通的问题。

卧室的床头背景墙采用的是3D效果,给室内营造出一种流动的效果,同时也能在视觉上放大空间。柔软舒适的大床搭配床头柜,足以让人褪去一天的疲惫。床两侧还设计了对称的吊灯,供主人在床上阅读的时候使用。
阳台

厨房和餐厅通往阳台,阳台上靠窗设计了一排收纳柜,柜面上方摆放栽种的花草,下方收纳花盆、种子以及一些栽种工具。

阳台靠墙的一侧设计高柜,用来摆放花草和水壶,把阳台打造成花草的海洋。
好了,本篇文章宅哥就给大家分享到这里了,看完这篇文章,你喜欢这种装修风格吗?欢迎大家在评论区留言!对于装修,大家有什么关心的话题,可以在评论区留言告诉宅哥,我会作为后续的选题,希望创作出更多大家喜欢的内容。