衣帽间布局和尺寸以及舒适度
设计罗
2020-12-11

/1/
衣帽间的几种布局形式衣帽间在空间形式上可以分为以下三种开放式衣帽间它是利用一面空墙存放,不完全封闭。优点是空气流通好,宽敞;缺点是防尘差。因此防尘是此类衣帽间的重点注意事项


独立式衣帽间
这个对住宅的面积要求较高
只有在宽敞的大空间中设立独立式衣帽间
才可以使其美感与实用兼具
它的特点是防尘好,储存空间完整
并有充裕的更衣空间,所以房间内照明要充足


步入式衣帽间
步入式衣帽间是用于储存衣物和更衣的独立房间
除储物柜外,一般还包含梳妆台、更衣镜、
取物梯子烫衣板、衣被架、座椅等设施
面积要求比独立衣帽间小


嵌入式衣帽间
这种衣帽间是权宜之计,比较节约面积
空间利用率高,容易保持清洁
一般来说,平面上如果能够
划分出面积在4㎡以上的空间
就可以来作为衣帽间
常见的主卧室与卫浴室之间以衣帽间相连


衣帽间在布局上可以分为三种形态
U型布局正方形的布局一般都采用U型衣帽间这种布局需要占用较大的空间面积与此同时0其收纳空间也相对较大适合成员人数多的家庭有些U型衣帽间四面都是柜体在进入空间的视觉体验上会有一些压抑感空间需要协调搭配灯光照明的设计来弥补压抑感的体验缺陷


L型布局
这种布局占用的面积不用太大
一般空间中的转角就可以充分利用
一般面积稍大的卧室都适合布局L型的衣帽间
同时也并不会让整个空间看起来很压抑
这种布局适合绝大多数的卧室空间


平行布局
平型布局适合小户型或户型不太方正的空间
可以利用这种布局弥补,更好的实现空间收纳
如果两侧较宽,还可以考虑平行双一字型衣帽间
一侧放置衣物,一侧用作梳妆台


/2/
衣帽间的布局尺度以及人的活动尺度衣帽间布局设计中不可妥协的重点就是人活动的尺度面向于衣帽间,我们要进行站立、伸手、抬臂、臂展、蹲姿、转身的活动衣帽间采取什么样的平面布局,或者是能否可以做某种布局并非取决于布局形式的好坏或者是哪种布局空间利用率大,哪种布局浪费多而是取决于预留出人的活动空间后还有多少剩余的空间,用来储藏储物在平面设计中,人体活动所需要的空间就是我们设计衣帽间的“依据”

· 平面人活动尺寸 ·
衣帽间内部通行尺寸
人在通道区域中不影响舒适度的情况下
自由活动的范围
横向宽幅800mm---1000mm
在平常的设计工作中
衣帽间人通行尺寸一般设置为900mm

卫生间门的开启
可以造成空间的扩大
通行距离略小于900mm
也是可以接受的宽度
但是必须保证预留至少在800mm以上

人穿衣换鞋的空间尺寸
另外,人坐在矮凳上
穿鞋的最小距离1060-1160mm
穿上衣时手施展开所需要的
最小空间为1720-1930mm
衣柜与床之间的通行尺寸衣柜和床之间预留800mm以上的通行距离最低不得低于600mm,衣柜门门扇宽度宜在400-500mm左右以保证人开启门扇时有足够的空间站立或两个人能够侧身通过

· 立面人活动尺寸 ·
根据人体动作行为,以及使用时的舒适性、方便性我们把人体高度划分成为三个区域

第一区域
600-1800mm 以人肩为轴
上肢半径活动的范围。
这一区域存取物品最方便,使用率最高
人的视线最容易看到,一般存取常用物品
例如当季衣物、内衣、包和帽子等
第二区域600mm以下是地面到人体手臂下垂指尖的垂直距离范围此区域内存取比较不便,使用频率一般,必须下蹲才能操作。一般存取笨重或较不常用的物品。如杂物箱、床单被套、过季衣物。第三区域正常人一伸手就能拿到最高处的物品高度在1900mm左右1900mm以上人体手臂向上伸直时指尖以上的范围这一区域存取物品不便,使用频率不高一般存取较轻或不常用的物品。如过季性衣物、棉被、靠垫及毛绒制品、旅行包等

· 衣帽间布局尺度 ·
标准柜深一般为600mm
可以用来储藏被褥、可以挂衣服
600mm是柜深的一个标准规格
实际的柜子箱体深度为570mm,柜门22mm

在实际的设计工作中
并不是每个衣帽间都能
既满足人在空间中自由活动的需求
同时又能设置标准柜深柜体的布局
当衣帽间尺度,不能同时满足
人体活动和标准柜深的时候
优先牺牲柜子深度,保留人体可活动空间
即使牺牲了部分的柜深剩余柜深至少保留在300mm以上主要功能是储藏可以用层板支承的物件比如叠放好的衣物、包、盒等等

不管采取U型布局、L型布局或者是平行布局
都必须保留至少900mm*900mm的人活动空间
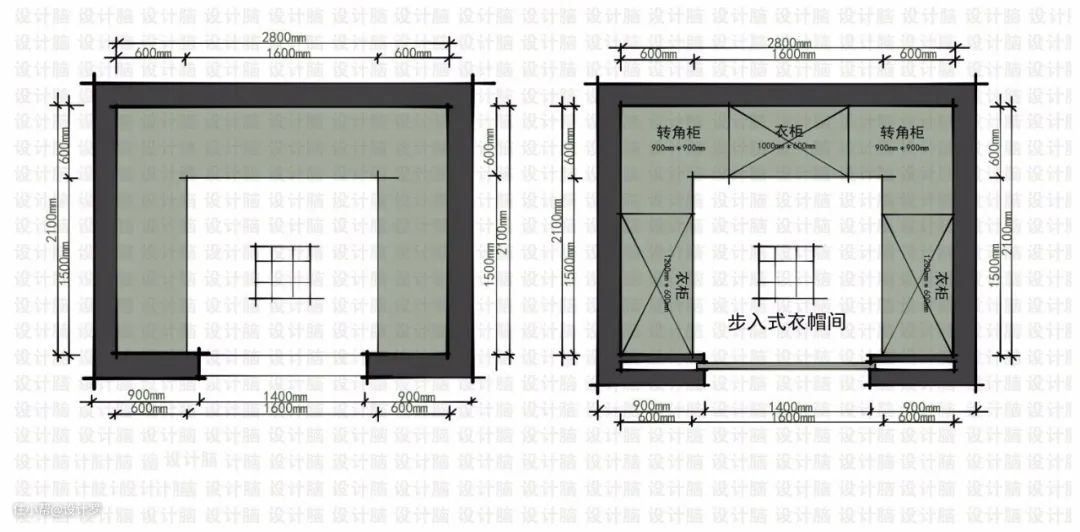
步入式衣帽间是非常普遍的布局形式是否能布局成“步入式衣帽间”依然取决于衣帽间的尺度

以500*800的衣帽间沙发凳为例:
沙发凳周围预留出800mm的人活动空间
预留出700-900mm都可以
都可以满足步入式衣帽间的尺寸要求
3600mm*2700mm
这是一个比较理想标准式的步入式衣帽间


衣帽间布局主要取决于
空间的尺寸、结构,以及开门方向
在满足更大尺寸的前提下,才有多余选择的空间