88㎡二手 INS风墨蓝色墙面+大智能拼地板,时尚现代感厨卫
天津Banana家装
2021-01-23
= 基本信息 =
房屋地址:北辰区 国宜北里
装修类型:二手房、重新装修
建筑面积:88㎡ 两室一厅一厨一卫
实际完成费用:10.2万元(包含水电改造)
设计:Banana家装 主案设计师 –赵维维
施工:Banana家装 金标施工 – 杨工
工程管家:Banana家装 资深监理 – 宋工
装修亮点:INS风墨蓝色墙面、时尚现代厨卫、大智能拼地板
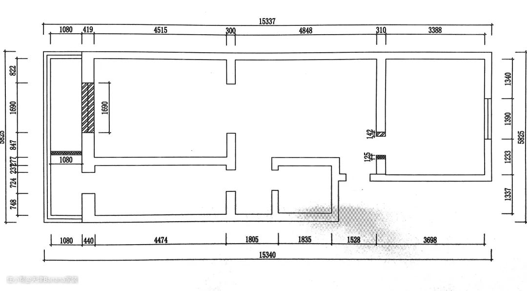
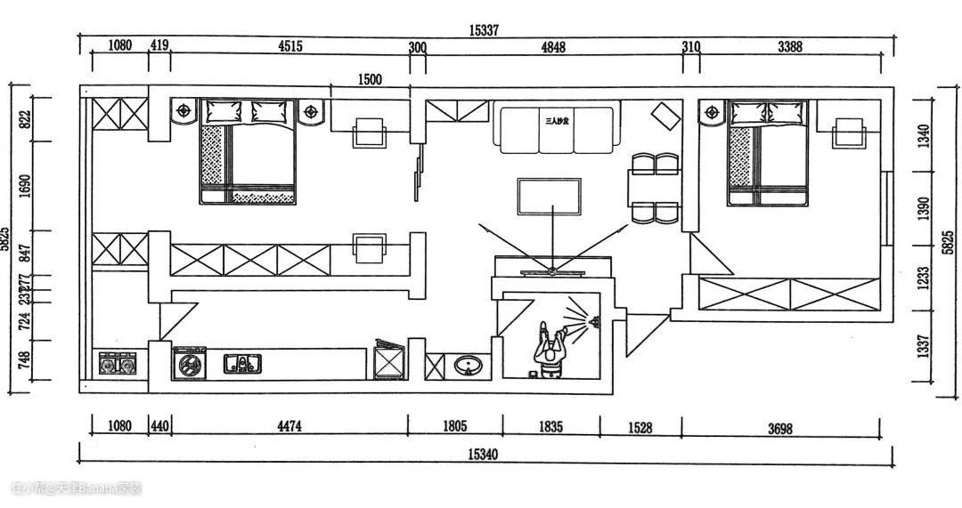
= 平面户型 =

▲ 原始户型 拆砸示意图

▲ 平面示意图
= 设计综述 =
本套房子是业主张先生为自己打造的独居住所,整体以墨蓝色为基调,打造时尚现代感都市新居。
运用了墨蓝色沙发背景墙、深灰蓝橱柜、轻奢风浴室柜、大智能拼地板等时尚元素,结合Banana家装金标德系施工整包完成。
接下来我们一起看看完装效果~
= 完装效果 =
- 客厅 -
▼

▲地板:英仑地板(宜家IKEA样板间专用)
乳胶漆:德国进口都芳漆(欧盟蓝天使认证环保)

走入客厅首先是墨蓝色的沙发背景墙,时尚ins风格,非常吸引目光。
搭配全屋大智能拼地板,更加大气、时尚。浅棕色地板,增添一些复古氛围。

▲ 地板:英仑地板(宜家IKEA样板间专业)

大智能拼地板,相比常规的拼字拼,板幅更加宽,铺贴出来的视觉效果更好,突显主人的生活品味。
适合全屋铺贴,搭配木色踢脚线,色调搭配和谐。
- 厨房 -
▼

▲ 橱柜:恒茂经典 欧标E0级环保板材柜体 厨房瓷砖:依诺设计

厨房选用了颜色较深的灰蓝色肤感膜橱柜,搭配金色把手,融入轻奢元素。
肤感膜柜体使用感好,橱柜款式时尚现代,颜色与整体墨蓝色色调一致。

▲ 水槽 台下盆(套餐升级)
水槽选用台下盆设计,不易藏污纳垢,更加人性化,便于日常生活。


▲ 厨房瓷砖:依诺设计 吊顶:罗格朗 legrand
厨房整体选用白色瓷砖,显得厨房的干净、整洁。更能突出橱柜的质感。

▲ 厨房阳台门:长虹玻璃门
厨房阳台区域规划为烹饪区,用长虹玻璃门作为阳台门。
既能阻隔油烟,又能大大提升厨房的颜值,网红长虹玻璃门大家也可以多多pick~

▲ 阳台烹饪区

厨房整体结构属于长条形,因此设计了一字型橱柜。更好的利用空间,保证动线流畅。
- 卫生间 -
▼

▲ 全套卫浴:惠达 HUIDA
卫生间瓷砖:依诺设计

卫生间采用了干湿分离的设计,选用了惠达经典款轻奢浴室柜。
浴室柜旁放置一组柜子,合理利用空间,增加储物功能。

浴室柜手盆为陶瓷一体式,方便清理,不易藏污纳垢。

▲ 卫生间瓷砖:依诺设计
卫生间铺贴暖黄色瓷砖,搭配花片腰线,丰富视觉感受。


▲ 花洒:惠达 HUIDA

▲ 卫生间门:长虹磨砂玻璃门
卫生间干湿分离结构如上图所示,卫生间门选用了长虹磨砂玻璃门,很好地兼顾了美观性和隐秘性。
- 主卧 -
▼

▲地板:英仑地板(宜家IKEA样板间专用)
乳胶漆:德国进口都芳漆(欧盟蓝天使认证环保)

主卧与客厅相连,通铺大智能拼地板。

▲ 地板细节图
- 次卧 -
▼

▲地板:英仑地板(宜家IKEA样板间专用)
乳胶漆:德国进口都芳漆(欧盟蓝天使认证环保)
次卧涂刷了更显活泼一些的天蓝色,搭配通铺的大智能拼地板。

▲ 卧室门:逸品木门

次卧木门选择了这款时尚造型的棕色木门,增加了一些设计感。搭配黑色优质锁具,提升颜值质感。

▲ 地板细节图
以上就是本套88㎡时尚现代风,北辰区 国宜北里 二手房重新装修实拍案例的全部内容。更多实拍完装案例,敬请期待。