听我的,你要悄悄装2个厨房,然后惊艳所有人
设计师阿爽
2021-02-04
传统厨房几乎都是封闭式设计,好处是不少,但空间很小,做饭永远是单打独斗,下厨的人很累,其他家人想帮忙,经常是越帮越忙。
但开放式厨房又有头疼的油烟问题,咋整?
不如中西厨结合!

中西结合要怎么设计布局呢?下面跟着阿爽来了解一下!
1
中厨和西厨怎么划分区域?
别以为只有大户型才能中西结合,只要设计妥当,90㎡的户型也可以!
我们先明确中厨和西厨的分工,看看谁的东西更多。
中厨:以明火炒菜为主,采用封闭设计
中厨主要是烹饪热菜的,油烟比较重,因此采用封闭式设计,避免油烟四处扩散。

中厨主要物品:
厨具:各种锅具(炒锅、蒸锅、电饭锅、高压锅等)、油盐酱醋调味瓶
电器:油烟机、洗碗机、厨余垃圾处理器
西厨:以煮、烤、拌为主,空间是开放的
西厨主要负责备菜、烘焙,一人下厨的时候,另一半和孩子,可以在岛台帮忙或聊天,很适合培养感情。

西厨主要物品:
厨具:水槽、砧板、碗柜、酒柜、五谷杂粮玻璃罐、零食柜等
电器:微波炉、烤箱、热水壶、面包机、酸奶机、打蛋器、咖啡机等
一般来说,西餐需要的锅具比较多,空间比例可以参考60%西厨+40%中厨。

如果中西厨连在一起,中间利用滑轨门或推拉玻璃门,将产生油烟的中厨封闭即可,外面的西厨区域可以和餐厅融为一体。
2
什么样的户型适合中西双厨?
厨房的户型很多,不是所有户型都很适合做中西双厨的,我们先排除那些不适当中西结合的:
不合适户型之①
厨房和餐厅太小,操作空间不足

▲狭长型厨房和餐厅的面积太小的话,很难腾出操作空间。如果是对客厅需求不大的年轻家庭,可以考虑“去客厅”设计,直接打造全开放的中岛式大厨房。
不合适户型之②
厨房和餐厅相隔太远或被过道隔开

▲像这种厨房和餐厅离得比较远的户型,也很难做到半开放的公共空间。

▲这个户型的厨房和餐厅相隔更远,原本的上菜就餐动线就不太合理,但厨房和阳台相连,可以考虑牺牲部分阳台空间,设计岛台实现中西厨合并。

▲厨房和餐厅之间被门厅或者长过道隔开的话,也都很难做到开放式、半开放的厨房空间。
不合适户型之③
厨房有多面承重墙

▲厨房的可拆墙面是非承重墙的话,才能打通做开放式空间。如果是承重墙就拆不了,只能放弃。
总结:如果你家的户型恰巧是以上提到的3种情况,那就不要太勉强了,还是维持传统的中厨就好。
下面再看看适合做中西双厨设计的4个户型:

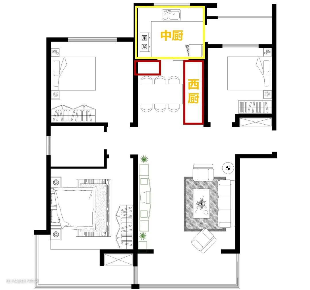
①▲厨房与餐厅的位置近在咫尺,且面积合适,西厨作为中厨的延伸段,利用餐厅的空余位置设计西厨操作台,各区域位置比例协调,不显突兀。

②▲厨房与阳台相邻,利用小的设备阳台做为中厨烹饪区,空间利用恰到好处。

③▲如果阳台在餐厅的侧面,也可以利用阳台空间做成西厨区域。

④▲常用的方法还有缩小中厨的空间,将冰箱移到外面作为西厨的一部分,扩大西厨的使用面积。
总结:以上的户型基本都能实现中西厨分离,将烹饪区单独封闭起来,没有油烟困扰,西厨区操作起来也很方便。
3
中西厨有哪些设计布局?
根据户型空间的不同,中西双厨有很多布局方式。其中最好的布局还是尽量让中厨和西厨处于同一空间内。
1、中岛厨房


▲在厨房的内部设计中岛,如果是一字型橱柜,就一半做中厨布局灶台和油烟机,另一半做西厨设计烤箱、微波炉等电器,中岛则作为共同的操作台使用,非常方便。
2、半岛厨房


▲中岛厨房需要的面积很大,不是所有厨房都能做到。空间比较小的户型不妨考虑设计半岛式厨房,可以向餐厅的方向借空间,设计吧台作为操作台。
当封闭式厨房的空间不够大的时候,我们就换种设计思路,半开放式或是全开放式中西厨、甚至把西厨分离出去都是可行的。
3、封闭中厨+餐厅西厨



▲厨房和餐厅紧挨在一起,用玻璃推拉门隔绝中厨油烟,在餐厅设计餐边电器柜+岛台操作台,动线流畅,使用起来也得心应手。


▲餐厅面积非常宽敞,可以充分发挥岛台的作用,在岛台上设计水槽+操作台,还有简单的收纳功能。
4、围合型开放式中西厨



▲原本的厨房空间小,橱柜设计时划分了中西厨,靠里位置设计水槽、灶台等中厨功能,往外延伸部分增加西厨操作台,连接餐边柜并设计电器柜,成功打造开放式中西厨。


▲L型橱柜布局,两侧分别是中厨区和西厨区,电器嵌入柜体内部,并连接吧台做为共同的操作台使用。
5、半开放式中西厨



▲厨房面积太小又不想把整面墙打掉,可以做成半开放式厨房,面向餐厅那面开窗洞做吧台,既阻挡油烟又不影响交流。外面设计岛台+电器柜,冰箱外移,保证中厨区有足够的操作空间。
6、分离式中西厨


▲将西厨的功能从中厨中脱离出来,在其他空间例如餐厅寻找合适的位置,沿着餐厅墙面设计台面及收纳柜,吊柜+地柜储物量非常大,超长台面也能放置超多小家电。
你家适合做中西厨结合的设计吗?快到留言区告诉阿爽~
- End -
PS:想要阿爽工作室的设计,点击下方‘了解更多’,阿爽会优先处理哒!