66㎡两居,木格栅兼做电视墙,卧室门斜装更通畅
冀仕丰聊装修
2021-02-07
今天秀巢网小编分享的这套小户型装修设计案例,使用面积仅有66㎡,但通过设计师的精心户型规划,将结构改成了2室2厅1厨2卫1衣帽间的格局,不仅实用性非常强,而且也非常漂亮。本案例来自基辅SDV design。
玄关



▲ 进门右侧是一排玄关柜,左侧以一面木格栅隔断将客厅区与玄关区进行划分,还在前面摆放了一只双人换鞋凳。木格栅起到了多重作用,既作隔断,又兼作客厅的电视背景墙,同时,还可以让玄关区尽可能多一些光线。
客厅


▲ 客厅面积不大,和厨房共用了中间区域,一个绿色的双人沙发,搭配一个小茶几,旁边再摆放一幅彩色的装饰画,个性感十足,同时又不失实用性。
餐厨区




▲ 厨房只能做开放式布局了,但L型的橱柜结构也保证了基本的实用性,最左侧的蒸箱和烤箱全部内嵌高柜内,冰箱靠近餐厅摆放。设计师把原来的阳台设计成了一个阳光餐厅,圆形玻璃餐桌,搭配四张杏黄色餐椅,实现了实用和颜值的统一。
主卧




▲ 通过最后一张的平面图可以看到,主卧室的门安装在一面斜墙上,这样的处理为从玄关到客厅的通道提供了更充足的空间,这样的处理,大大缓解了室内这个交通枢纽区的局促感,让整个客厅区显得更为通畅。
书房


▲ 书房的布局其实也非常巧妙,地面安装榻榻米地台,书桌临地台而放,为衣柜提供了更多的占地面积,提升了收纳容量。书柜选择了一种较为大胆的设计方案,以铁架悬挂于天花板,既可以摆放书籍,以便从床上顺手取下,还可以作为博古台,摆放一些饰品做装饰。
衣帽间


▲ 设计师还巧妙地占用了书房的一部分空间,将其设计成了一个独立的步入式衣帽间,的确构思巧妙吧?
卫生间





▲ 两个卫生间的规划实现了真正意义上的二式分离,大卫生间承担了洗手台和洗浴的功能,小卫生间承担了坐便器的功能,这样的设计也提高了卫生间的使用效率。
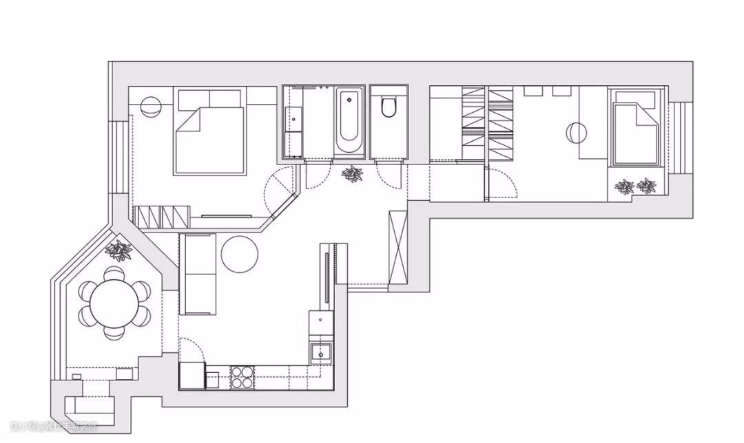
平面布置图

▲ 标准的手枪户型,但经过设计师这样的设计规划,是不是非常完美呢?
这个66㎡小两居户型,以玄关木格栅兼作电视墙,以卧室墙体斜砌让客厅更通畅,再以个性的色彩搭配和软装进行装饰,真的是紧凑又漂亮!