干货 | 室内吊顶的小知识你知道多少?建议收藏
蜂糖设计
2021-03-19

说起吊顶,大家真的知道是什么吗?我们知道原建筑分为天、地、墙,真实的楼板称为建筑楼板,也叫真天花。

而我们说的吊顶,是通过一层“假天花”,将顶面相关设备,比如空调、检修口、管道隐藏起来的装饰措施,为了保证空间装饰的美观性而存在。

90%以上的精装修都是使用轻钢龙骨为基层骨架,来应对复杂多变的吊顶造型,因此作为设计师理解轻钢龙骨的构成就非常重要。
接下来,咱们就来具体分析一下吊顶构造的工艺内容,主要解决以下问题:
1、吊顶构造做法与参考案例
2、吊顶施工流程与把控
3、吊顶关键部位和注意事项
吊顶构造做法与参考案例

从吊顶的定义可知,当我们隐藏天花上的管道,就会用轻钢龙骨和石膏饰面的形式来完成,根据完成面厚度的不同,轻钢龙骨的构造做法和造价成本会有所不同。
归结起来可分为3种:撑卡吊顶、38卡式吊顶、悬挂式吊顶。
1撑卡吊顶

▲石膏板吊顶节点图(贴顶式)
撑卡吊顶适用于家庭装饰、酒店客房餐厅包间等小空间的平面吊顶,也被称为“贴顶式骨架”。
▲动图演示
优点:和墙面龙骨一样,能最大限度的缩小完成面的厚度,最小可做到35mm的完成面,且材料成本低。
缺点:承载小、不受力、不宜大面积使用。

238卡式吊顶

▲石膏板吊顶节点图(卡式承载龙骨)
38卡式吊顶适用于吊顶完成面100~300mm之间的空间,如:家庭装饰、酒店客房、会所吊顶等等。
▲动图演示
优点:成本低、施工快,节约吊顶空间。
缺点:承载力相对于悬挂式吊顶而言较小。

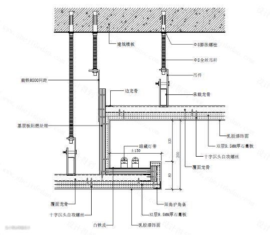
3悬挂式吊顶

▲石膏板吊顶节点图(悬吊式)
悬挂式吊顶是轻钢龙骨界的主力军,占了大半个吊顶骨架的市场,适用范围:≥300mm的空间吊顶,几乎适用于任何室内空间。
▲动图演示
优点:承重大、施工灵活、稳定性强等。
缺点:较浪费室内空间,成本比其他两种龙骨高。
接下来,咱们来瞧下悬挂式龙骨的构造。

悬挂龙骨部件解析:主龙骨+吊件+吊杆,承载整个吊顶的全部受力,常见搭配:60mm主龙骨+配套吊件+φ8吊杆。

覆面龙骨,是连接接承板的受力骨架,靠挂件与主龙骨相连接,形成完整的骨架。

▲成品检修口节点图
需要注意的是需要检修口或吊顶加固时,会在次龙骨垂直的方向设立横撑龙骨,主要是为了让吊顶更加稳固,常规项目中使用比较少。
吊顶施工流程与把控

1吊顶施工工艺
乳胶漆天花吊顶的具体工艺流程:测量放线→固定边龙骨→安装吊筋→安装主龙骨→安装副龙骨→隐蔽验收→安装石膏板。
1)测量放线
基层清理,保证基层面无浮尘,用墨线弹出天花的标高,并在建筑的顶面画出吊筋的点位。
2)固定边龙骨
可采用L或U型龙骨,钉的距离小于500mm,必须与副龙骨固定牢固,可通过铆钉和自攻丝固定。
3)安装吊筋

▲轻钢龙骨吊顶平面节点图
按照规定,室内吊顶吊杆的间距≤1500mm。建议平顶吊杆间距应≤1200mm,有叠级造型吊顶的吊杆间距应≤1000mm,且采用不下于φ8的吊杆。
最侧面的吊筋距墙面<300mm,同时保证与主龙骨方向的吊筋处于一条直线上,防止与灯具的位置冲突。

另外,不管侧板是木板还是金属骨架,均需单独安装吊筋,且间距建议≤1200mm;若侧板造型较重,则需采用角钢作为吊筋,吊筋与木侧板造型用对接螺栓固定。
4)安装主、副龙骨

副龙骨距离一般为400mm,要求较高会在300mm,横穿龙骨间隔600mm。
为安全起见,副龙骨也建议正反安装,减小受力变形的隐患,之后进行粗略的隐蔽验收。
5)安装石膏板
安装第一层石膏板,应从材料的中间向四周固定,不要同时多点作业,以防止后期开裂。
第二层石膏板与第一层垂直,自攻钉和切割边的间距为10~20mm,底层石膏板间距≤200mm,面层石膏板间距至127~150mm为宜。
2吊顶要点把控
1)次龙骨

根据板材规格尺寸,次龙骨一般有3种排布的模数:300mm、400mm、600mm、大多数项目的间距400mm。
2)吊顶末端

在吊顶龙骨末端,吊杆需距主龙骨末端距离≤300mm。为防止间距过大,吊顶末端不受力,影响吊顶的安全性。
3)灯槽

灯槽正确做法:灯槽部位轻钢副龙骨应深入灯槽底部,加强灯槽部位的龙骨刚度,避免开裂,不建议只用木板或石膏板做灯槽支撑。

3吊顶安全性的把控
(增加吊顶骨架的安全性)
1)龙骨与吊件

相邻的主龙骨吊件应该是正反扣,并且连接铆钉,相邻的接头应该错开,以便加强它的稳定性。
2)龙骨与主龙骨的连接

次龙骨与主龙骨的连接应扣死,不扣死容易造成坍塌造成安全事故。
3)副龙骨与边龙骨连接

连接时必须锚固或用自攻丝固定,以免吊顶震动造成危险。
4)吊顶侧板+木板

为防止木板变形,板H>300mm建议使用全龙骨吊顶。
5)吊顶侧板+木板高度

侧板H>300mm必须侧板加固,节约材料、且稳定性强。
4装石膏线注意事项

板子需要用快腻粉进行粘接,用自攻丝与木基层进行固定,严禁使用钢排钉或者蚊钉固定。
石膏板与石膏板的接头处,需要预留3~5cm的接缝,接缝处用石膏去填补,防止热胀冷缩的开裂。
装石膏线注意事项

1窗帘盒


窗帘盒的把控要点:多考虑固定窗帘轨道的承载力,窗帘越重,基层就需要越牢固,越重就需要越强的握钉力,比如采用9mm或18mm的层板来承载窗帘轨道的重量。
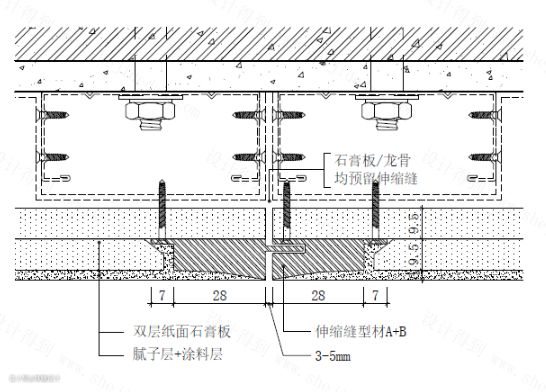
2伸缩缝

▲大面积乳胶漆墙面留伸缩缝
伸缩缝是防止吊顶热胀冷缩或建筑沉降等外部因素导致的顶面开裂而设置的处理手段。

当吊顶长度>12m,或者平面>100㎡,或遇到原建筑伸缩缝时,石膏板天花需要设置伸缩缝。
还有一种做法是留变形工艺缝,如下图;


▲【天花】变形缝工艺节点图
3检修口


若吊顶内部有设备或管道、阀门等需检修的部位,就需要设置检修口,一般在石膏板吊顶中设置检修口的常用规格为:350*350、400*400。

检修口分为上人与不上人,上人检修口的注意事项有:
①需在四周加覆面龙骨或者木板加固;
②检修口材料建议采用GRG的材料或石膏制品;
③根据现场情况,在封板之前要进行现场开孔,不要单纯按照施工图纸去设置,否则会出现检修口和设备冲突,造成无法检修。


检修口做法,只需了解最基础最标准的即可,如:成品检修口(石膏板+成品)和上人检修口。
小结
有关吊顶方面的内容就讲到这了,大家还有什么疑问或者想要了解的内容,都可在下方留言告诉我们~
最后,咱们来总结一下今天的重点内容:
