18㎡简约小公寓,竟然有两张床,巧妙设计逆天了
SHJ设计院
2021-04-17
这是一套不到18平米的小户型,得益于3.4米的层高,在玄关区域的上方架设了一个床铺位置,通过以巧妙实用的定制设计,让这个小房子实现了两张床的布置,充满了简约自然的文艺感
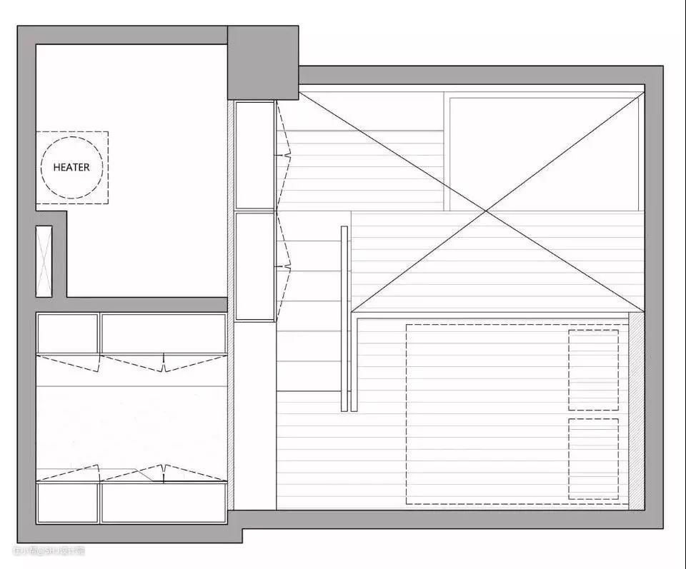
平面布置图

玄关&厨房

▲从室外进入这套小公寓,首先经过的是一个过道,以哑光灰色地面,搭配洁白的定制柜,整体空间给人以文艺自然的简约舒适感。


▲玄关连接的这个过道,空间虽小,却纳入了厨房与日常收纳功能,还把洗衣机也嵌入到这个厨房操作台的台面下方,整个空间给人以文艺轻松的氛围感。


▲小小的厨房空间,在过道两侧都有操作台面,让小空间也能有个舒适方便的烹饪体验。


▲丰富的搁板层架与收纳,还有温馨自然的灯光布置,让小厨房空间也显得明亮实用好惬意。
客厅&办公区&客房

▲玄关鞋柜与厨房收纳柜中间留出的一条过道,这个过道里面就是客厅与卧室区域了。


▲一楼的这个空间布置了一张床兼沙发的定制设计,同时“电视墙”则是做成了隐藏式的书台,偶尔在家办公也有一个好地方。
▲原木色+白色的定制家具,整体空间虽小却也收纳丰富,让小空间保持简约大方的格局。




▲日常保持折叠,需要加班工作台的时候就展开,灵活的设计,小空间也充满了乐趣。
卫浴


▲小空间以灰色哑光地面砖基础,搭配白色的玻化砖墙面,整体空间搭配充满了简约文艺的舒适感。


▲靠窗位置还增添了一个浴缸位置,结合百叶帘窗帘的布置,整个空间都显得文艺简洁好舒适。
二层






▲楼梯在木质踏步+玻璃扶手的设计,在楼梯转台位置是卫生间的长虹玻璃门,靠窗是一个矮书架,与定制床连成一体,整体给人以文艺实用的精致感。

▲从楼梯上到二层,过道位置装了一个矮小的梳妆台,为主人在家梳妆打扮提供了优雅方便的体验。


▲二层的卧室,是宽敞的主人床,睡在这里还可以看到楼下的篮球场,生活充满活泼的生机气质。