高端精装项目“轻钢龙骨吊顶施工工艺”,做出高性价比的文明工地
铭品装饰设计官方号
2021-05-15
在高端精装项目中,全轻钢龙施工标准做法已经很成熟,轻钢全龙骨施工标准和设计将更有利于项目成本管控、设计品质管控、施工周期管控,做出性价比高的文明工地。
可工厂定制装配化运送到现场施工的“全轻钢龙骨”结构,能实现快速安装,大幅缩短安装时间,也就降低了人工成本,和材料成本综合来看,全轻钢龙骨标准并没有增加太多成本,反而提升了项目质量水平。
下面我们就来介绍下轻钢龙骨吊顶施工工艺标准,

01装饰吊顶分部相关资料
根据《建筑装饰装修工程质量验收规范》GB50210-2001标准规范对目前的吊顶工程的相关规定要求,吊顶主要分为:暗龙骨吊顶和明龙骨吊顶等分项质量验收。
资料要求规定
- 有吊顶工程施工图、设计说明和其他设计文件。
- 材料的产品合格证书、性能检测报告、进场验收记录和必要的复试报告。
- 施工记录。
- 隐蔽工程的验收记录齐全。

02吊顶深化节点设计

传统工艺深化做法△

新工艺深化做法△
工厂化吊顶施工图深化△
延边吊顶施工图深化△
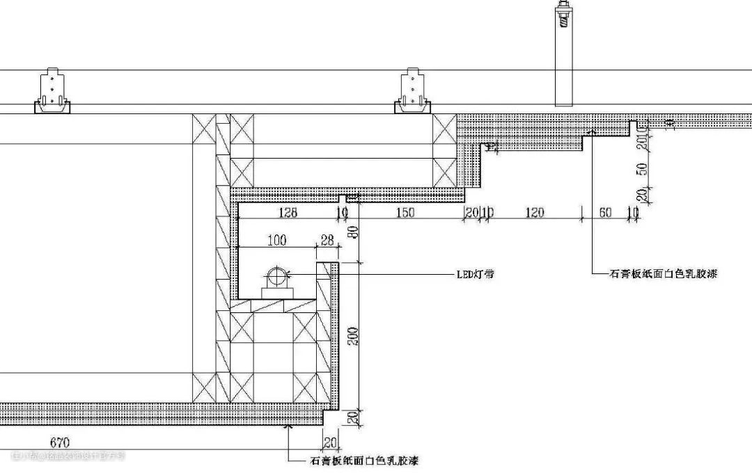
任意曲线灯槽吊顶施工图深化△
03施工工艺要点
1、弹线
用水准仪在房间内每个墙(柱)角上抄出水平点,弹出水准线,从水准线量至吊顶设计高度加上要求的石膏板的厚度,用粉线沿墙(柱)弹出水准线,即为吊顶次龙骨的下皮线。

2、固定吊挂杆件
采用膨胀螺栓固定吊挂杆件。吊杆用膨胀螺栓固定在楼板上,用冲击电钻打孔,孔径应稍大于膨胀螺栓的直径。
3、在梁上设置吊挂杆件
吊挂杆件应通直并有足够的承载能力。当预埋的杆件需要接长时,必须搭接焊牢,焊缝要均匀饱满。吊杆距主龙骨端部不得超过300mm,否则应增加吊杆。

4、安装边龙骨
边龙骨的安装应按设计要求弹线,沿墙(柱)上的水平龙骨线把边龙骨用自攻螺丝固定在预埋木砖上,如为混凝土墙(柱)上可用射钉固定,射钉间距应不大于吊顶次龙骨的间距。
5、安装主龙骨
主龙骨应吊挂在吊杆上,主龙骨间距900~1000mm。跨度大于15m以上的吊顶,应在适宜的地方,留设伸缩缝。

6、安装次龙骨
次龙骨应紧贴主龙骨安装。次龙骨间距300~600mm。用镀锌铁片连接件(付吊)把次龙骨有效固定在主龙骨上时,次龙骨的两端应搭在边龙骨的水平翼缘上。

7、罩面板安装
吊挂顶棚罩面板常用的板材有纸面石膏板、埃特板、防潮板等。选用板材应考虑牢固可靠,装饰效果好,便于施工和维修,也要考虑重量轻、防火、吸声、隔热、保温等要求。

04吊筋设置要求
1、安装吊筋前,应在楼板上,弹出布置线,并标明吊筋点位。吊筋间距,普通单层石膏板应≤1100mm,双层石膏板应≤1000mm。吊筋与原顶面应垂直向下。

顶面吊顶线在地上投影,弹出分层标高线△
2、吊杆长度大于1.5m的,应设反支撑。

3、双层、有叠级或灯槽造型的吊杆,应将间距控制在≤1000 mm。

4、吊杆距主龙骨端部距离大于300mm,应增加吊杆。

5、当吊杆与设备、管道相遇时,应调整并增设吊杆。

6、管道设备下方应设置转换层,同时注意照明灯具及喇叭嵌入深度的尺寸,提前调整。

7、在设备、管道两侧的吊杆间距应控制在≤900 mm。

05龙骨安装
5.1 主龙骨安装▪ 安装主龙时,相邻两只主吊应相反布置,以增加其稳定性。主龙接头应错开布置,并锚固。

5.2 边龙骨安装
1、安装边龙前,应按设计标高线,在墙面四周弹好控制线,应注意墙角,柱头的交接处理。

2、金属类边龙,应采用木塞加自攻螺丝固定,木塞应防腐处理。

5.3 副龙骨的安装
1、副龙的间距

2、相邻两根副龙接缝应错开

3、副吊与主龙的连接时,相邻副吊应一正一反或两正一反.严禁两反一正. 副吊卡口应用老虎钳压紧,防止承重而下脱。

卡口用老虎钳压紧△
4、副龙与与L型边龙的连接,一定要全锚固。

5、U型等边及不等边龙骨,与副龙连接,原则上要全锚固,但也可以相隔1至2根,进行锚固,切不可不锚固。

6、与木边龙的连接,需开八字型三边锚固(自攻螺丝),木龙骨靠墙面需防腐处理,其他面需刷防火涂料。

7、所有龙骨在安装时,应按1/200进行起拱。办公室、客房等小开间应按房间短向跨度的1‰~3‰起拱 。

06顶面造型制安
1、造型预制后安装固定要用角铁与楼板作稳定固定,用全牙丝杆固定失稳。

2、造型预制后安装固定要用L40角铁与楼板作稳定固定,且做三角撑,用膨胀螺栓与顶面楼板固定好,预防失稳。

3、走道通道大于15M长的灯槽造型吊顶采用方管和轻钢龙骨制作,如用细木工板要考虑到后期会容易变形、裂缝等缺陷。

4、吊顶处如有大型灯具的应设检修通道。

5、经常上人的大型空间检修孔要加固,顶面检修口增加5#角钢加固框,防止以后在工人维修时破坏吊顶。

6、吊顶要求采用成品检修孔,规格满足检修要求。其周边龙骨需加固处理。

检修口四个角安装专用加固件△
7、吊顶造型挂落侧板,转角需包角加固。

8、空调出风口要求设置木边框,防止凝结水。

9、施工吊顶完成面距离土建面很小的吊顶可以用卡式龙骨当支撑部分(待修正)。

10、国家强制性规定第6.1.12 条 重型灯具、电扇及其他重型设备严禁安装在吊顶工程的龙骨上。必须单独支撑,且需做大于2倍灯具重量的过载试验。

07顶面封石膏板
1、纸面石膏板应在自由状态下从板的中部向四边固定,固定方向应使板的长边(包封边)沿纵向次龙骨。

2、石膏板拼缝应在上板前预先刨出“V”形口;顶面转角接缝应能错开30厘米缝,采用“L”字切割。

3、螺钉间距:板中间150~170mm,板四周150~200mm,螺钉距板边10~16mm;螺钉应与板面垂直且埋入板内1~2mm,不破损纸面。

4、双层石膏板的面层板与基层板的接缝应错开,接缝不得在同一龙骨上 。

5、石膏板严禁使用针钉固定,必须采用自古螺丝钉。

6、板面无裂缝或明显修痕,表面应平整;曲面吊顶应顺畅;叠级造型吊顶应平直、平行,侧板应通顺、垂直 平直、平行,侧板应通顺、垂直。

7、石膏板阳角,可用镀锌专用件加固,以使直角挺直,并不易开裂,做小凹槽时,也可以施工此类配件。

8、石膏板吊顶长度超过15米的各类走道或大面积吊顶转角处应预留伸缩缝,且伸缩缝两边应设置独立的主龙骨、副龙骨。

9、钉帽应防锈处理,用毛笔有效点红丹防锈漆,再用石膏腻子刮平。除此方法外还有:用油性腻子嵌平;用密封膏、石膏腻子或掺胶剂的水泥沙浆嵌涂板缝并刮平。