98㎡超大视角新概念空间,光与现代的融合
上海禧鑫装饰
2021-06-12
【导语】该案例为98m2现代简约风格室内空间,业主是对生活品质具有一定要求的都市白领。在前期工作中,首先要满足空间的储物功能;其次,设计要体现现代简约风格简约、时尚的特点;最后,业主希望在细节中融入设计师的个人理念,让整个空间又可以更加出挑与众不同。

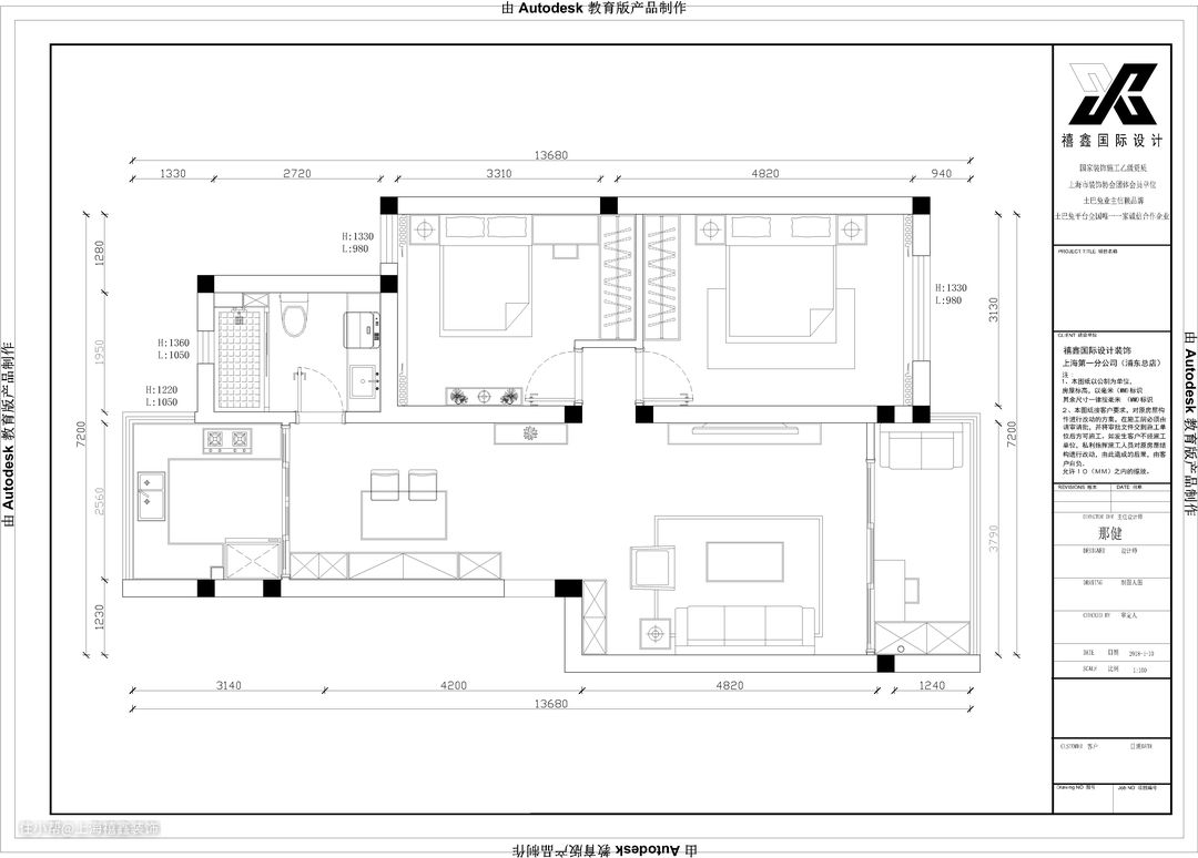
【结构】两卧的门没有直接对着客厅,而是形成一个小走廊作为缓冲。中规中矩的户型,优势在于客厅餐厅与厨房阳台在统一直线上,公共区域集中。

【客厅】一改复杂的传统电视背景,通过上方嵌灯的照射,让背景更加干净整洁。传统的电视背景墙采用的都是墙纸,但是现代设计风格中,往往都是采用立体背景墙,更加突出层次感。

【客厅】客厅没有设置主光源,吊顶采用平面式外加嵌灯,整体简约而灵动,沙发是业主之前没装修时留下来的,因为颜色上与主体色调一致,所以选择延用。白色与深咖色相拼接的开放转角壁橱,将开放式与封闭式手拿香融合,既增加收纳空间,又让整体美观大方。

偏法式浪漫风格的白色典雅立柜,再加上一束烟粉玫瑰将整体空间的调性提了上来。

【餐厅】客厅与餐厅一体,联动性强,统一的瓷砖让空间有更多延展性,更加规整。踢脚线的设计选择了黑色,与白色的主色调形成对比,增加层次感的同时又能耐脏抗造,做怀旧复古风也是很不错的。

餐厅的空间位于过道,所以不宜选用复杂的餐桌和餐椅。简易的黑色细腿支脚在视觉上就能够减轻空间的压力感,薄而坚硬的餐桌更实用和美观。餐灯绝对是氛围的制造者,所以采用暖色系光源,不同高度的灯源打造不同的感觉。

【厨房】厨房的玻璃采用透明形式,既满足了开放式厨房的那种明亮宽敞的效果,又能够很好的阻挡油烟散出。U型设计满足厨房的储物要求,厨房的格局一定程度上决定了家的温馨,提高功能性的同时,又能激发都市白领对于下厨的渴望。

【卧室】烟粉色与白色的斜对角拼接,简洁又柔和。床头配有驼色软包,椅靠更加舒适。写字桌上方挂有一个置物架,装饰收纳两不误。床头配有白色的双层床头柜,与另一边的白色写字桌相呼应。

【卧室】床尾处采用简易几何形状立柜,不占取更多空间的同时又时尚美观,轻松收纳。墙壁上的网格状铁艺照片墙,打造独一无二的DIY装饰一角,丰富卧室墙内的留白还能突出业主的自我风格和格调。


【阳台】阳台改造成多功能用途,设置写字桌和一整面壁橱,休闲办公两不误。并且后方是一整面透明落地窗,视野极好,空间效果很美观。在大大的落地窗前办公,也算是梦想中的书桌吧。