小户型建议这样装,四个40平米公寓设计案例分享,温馨又实用~
梵客 I 非梵全案装修
2021-07-06
在寸土寸金的大城市,小户型越来越受到年轻人的喜欢,在有限的空间里,实用的收纳和精致的布局往往更能展现创意和设计感。
今天给大家分享四个40平左右小公寓的空间布局,还在烦恼户型太小的家庭可以参考一下哦!
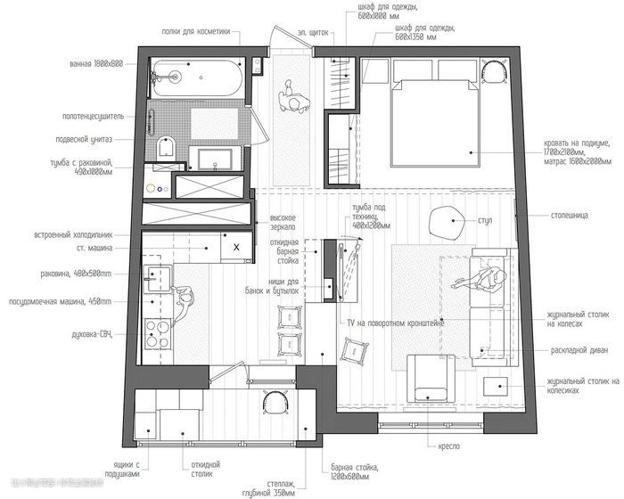
一、年轻夫妇的温馨小窝
业主是一对年轻夫妇,这个只有40平米的公寓将作为他们未来几年的居住场所。
设计的基本原则是合理划分各功能空间:卧室、工作区、客厅、餐厅、厨房和卫生间,以及阳台的酒吧区,步入式衣柜,甚至还有洗衣房。


△客厅

△垫高的卧室区和工作区


△厨房和餐厅

△阳台

△平面图
二、小巧精致的色彩空间
这套面积只有40平米的小公寓,小巧精致,主色调是白色,再点缀一些亮丽的粉色、绿色、黄色,整体看起来顿时活泼跳跃了不少,造型简洁的家具和黑白色调的挂画,给这个小公寓增添了几分设计感。客厅、厨房、吧台、卧室在这么小的空间下,恰到好处地融合在一起,却不显得拥挤凌乱。






△平面图
三、时尚又实用的北欧设计
同样是40平米的小公寓,整体色调以灰色、白色为主,搭配适当的原木色家具,卧室、餐厅等局部空间用装饰画来点缀,增添艺术感。家具也都以细腿家具为主,看起来更轻盈,更适合小户型使用。小空间应尽量避免购买太大或者笨重的家具,会让整体感觉更加拥挤。





△平面图
四、有质感的复式公寓
这座公寓位于乌克兰首都基辅,之前是印刷厂的办公室,这样一栋拥有悠久历史的建筑,被改造后,成为了一对年轻夫妇的复式公寓。公寓面积约为35.7平米,高度约为4米。为了增加可用空间,同时又不会显得压抑,设计师在空间一角建造出一个LOFT形式的卧室,整面的收纳墙,配上简单的铁架楼梯,同时用投影仪取代电视,餐客一体的多功能区域,使原本不大的空间显得更加宽敞舒适。






△一层平面图

△二层平面图