户型分析第6期 |【北大资源紫境东来】107㎡如何设计?
大树装饰成都站
2021-08-06
最近树宝收到许多伙伴的消息,问能不能做一期紫境东来的户型分析?
当然安排!
不但如此,为了更切实的户型分析,我们的大树伙伴和设计师还进行了实地勘测,顺便给大家播报一下楼盘的最新进展:



从最近踩盘情况看:楼盘目前侧重于精装房与公区的施工,清水区和精装区的楼栋大厅已经开始贴砖,另外叠墅区公区的区域也初见雏形。
总体进展比较顺利,如果进度能正常进行, 按时交房应该问题不大,over!
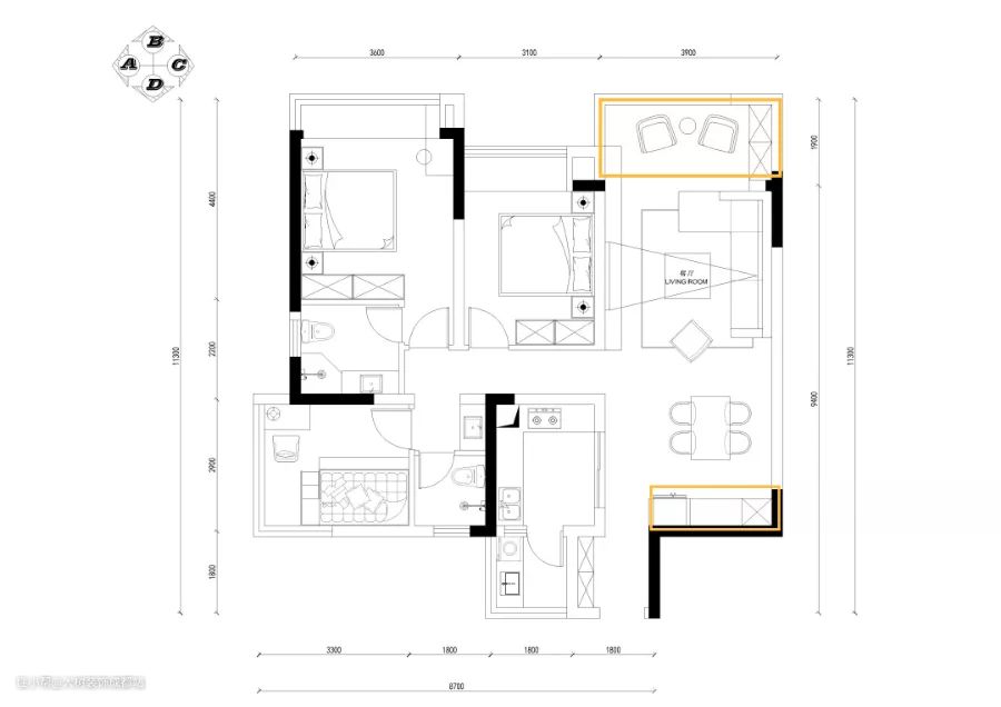
北大资源紫境东来107㎡户型
01/户型点评
Comments on house type

现场实测【原始户型】
- 户型优点:
①户型方正;
②卧室居住区域连为一体,与客厅等区域分开,形成动静分区;
③客厅休闲阳台光照通风效果极佳。
- 户型缺陷:
①客餐厅纵深较长,导致餐厅区域采光稍差;
②入户空间稍显局促;
③厨房空间小,冰箱不好摆放;
④小卧室空间较小,不好摆放床。
02 /方案设计
conceptual design
方案一(改动较大)

△改造户型
- 户型改造:
① 把原始厨房打开,增加中岛台设计,强化厨房区域功能(洗水果或做直饮机都非常方便),提高家人生活品质和体验。
② 冰箱与电器高柜在外面餐厅位置,电器高柜里面可嵌入蒸烤箱等,与里面中厨分开。
③ 客厅阳台打通,扩大客厅空间,提高采光通风,增加收纳空间。
④ 主卧牺牲主卫空间改为衣帽间,扩充家庭收纳空间用于满足一家人的收纳需求。
⑤ 左下角卧室做定制榻榻米,节约空间,满足多种功能居住需求。
方案二(改动较小)

△改造户型
- 户型改造:
① 客厅阳台打通,扩大客厅空间,提高采光通风,增加收纳空间。
② 冰箱柜与酒柜一体化靠餐厅纵向摆放,不影响餐厅开间尺度。
03/动线设计
Mobile route design

04/收纳设计
Storage design

05/设计参考
Design reference
1、入户玄关、厨房:
玄关↓↓

厨房:

02、客厅



03、餐厅


04、阳台
阳台打通的优势:
①减少一堵墙,可以提高室内采光。
②空间利用率更高,设计也有更多的可能性。
③扩大客厅空间,对于小户型来说尤为重要。


Ps:部分图片来源于网络,如有侵权请联系删除!