83㎡古色中式装修,现代与传统完美相接
禧鑫装饰丨旧房翻新
2021-08-07
【导语】因为户主是一个很热爱中式传统的老教师,平日里喜欢喝喝茶下下象棋,所以对于家装的需求希望更加的质朴、古色古香。因此,结合了客户的需求和对于房子整体结构的了解,我们将做局部改动,增加储物空间,扩大客厅采光通风,打造一个完美的中式家居。

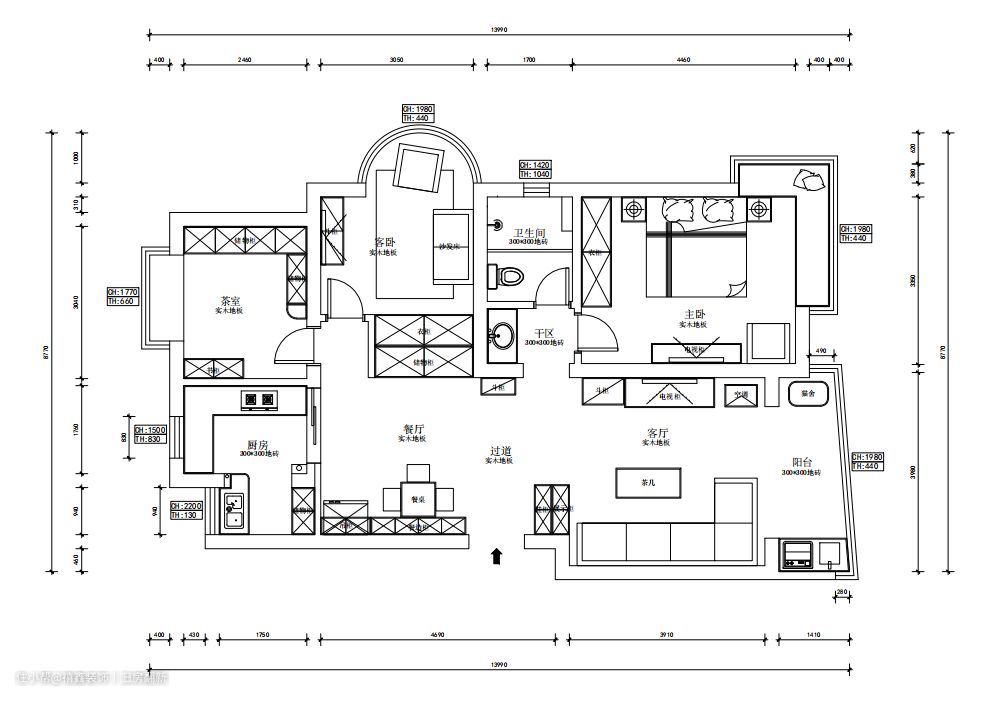
【结构】客厅较长,将餐厅和阳台都包容在一起。客卧有一个半圆弧的房间构造,所以以此打造一个特殊的空间。为了满足户主的需求,设计茶室。

【玄关】如何设计中式风格的玄关柜,既可以展现中式的传统之美,又能够同时拥有收纳功能呢?于是我们将柜子和博古架相结合,上方具有展示陈放装饰品的作用,下方用来收纳鞋子。传统博古架的材质大部分都采用木材,整个风格靓丽复古又时尚。

【客厅】电视柜对新中式风格经典元素的运用,与红木家具完美搭配,充分体现出大气、内敛的格调,以及深厚的中国人文气息。在中国风成为流行元素的当下,古典风格与现代轻奢元素的碰撞成就了新中式的风格。

【客厅】客厅用现代气息去营造已经,让空间显得更通透阔达。白色的软包沙发搭配实木框架,舒适和美观并存。背景采用三幅梅花装饰画,时尚风格与细腻的艺术气息相融,给人唯美的东方韵味。


【餐厅】餐厅的家具选色与地板相近,餐椅和餐桌的造型都以中式风格为主,因为常住人口是一家三口,所以为了拓宽过道距离,将餐桌靠近餐边柜。因为考虑到冰箱的放置问题,所以将上方的吊柜量身定制出能够放置冰箱的大小。

【厨房】喜欢白色但又担心白色会过于单调的宝宝可以看向这个厨房的设计,整体虽然为白色,但是大理石花纹的墙面却有种山水画的意境风格。上下方都设计了橱柜,这样可以收纳更多厨具。因为冰箱外置,所以厨房的空间也得以充分的发挥。


【卧室】卧室的色调以浅白色乳胶墙布和深色实木为主调,地板是木制的纯然,而床头处的一幅“难得糊涂”点缀了整个空间,从容儒雅展现人生百态。中式家居的特点在于既满足了现代创新的审美诉求,又能够拥有古典优雅的气质。


【次卧】设计的初衷在于让户主更舒适的居住和享受,在承载时尚气息的家庭活动中,要包含居住者的个性需求,也要包含实用需求,简简单单自成意境。光线打到空间中,仿佛一场流动又静谧的涟漪。