隐形收纳折叠床yyds,书房有了这个设计,一屋两用
共合设
2021-09-08

作品信息
项目户型 Project type:四室两厅复式
设计风格 Design style:简约风
项目面积 Project Area:230㎡
居住人口 resident population:一家四口
设计团队 Design team:王云河、郭倩、熙颜
施工单位 Builder:恒典装饰公司
项目地址 Project Location:邯郸 - 尚品新苑
一位年轻海归归国后,买了一所漂亮的大房子,想好好设计一番,为父母和妹妹提供一个惬意的生活环境。
看到户型结构后,设计师团队快速地对一楼二楼的空间结构中,存在的缺点问题提供了一些解决思路,基本上第一次见面就确定了这次设计合作。

△一楼原始结构图
从原始户型来看,厨房与储物间相邻但是不通,各自空间狭小。餐厅位置东西设置将造成空间使用不足,从餐厅到厨房出入不方便。

△一楼平面布置方案
重新设置后的厨房将两个小空间打通,餐厅走向重新调转90度重设,并巧妙将承重的柱子加以利用,做成餐台。空间设置的变化使得屋子的品质感与使用感都有了很大的提升。

△二楼原始结构图
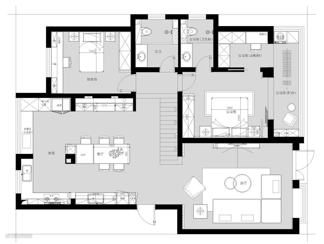
二层原始结构是两个卫生间,在空间上重复,设计师将两个卫生间进行合并,做成干湿分离。

△二楼平面布置方案
改造后,主卧、阳台、书房的设置采用多功能空间设计原则,将二楼区域设计成为一个完整的“小家”,即便将来添丁进口,也丝毫不会影响到楼下父母和妹妹的个人生活空间。

设计师摒弃明显的“风格”束缚,围绕“高级感”和“仪式感”来展开空间的设计。

空间说
SAID BY SPACE
客厅.
围炉精神
一楼主要是父母和妹妹居住,并且作为主要活动空间和接待空间,所以整体设计思路要呈现出大气、通透、时尚的感觉,并运用家具搭配烘托出家的围炉精神。

考虑到老人的精神需求以及家人的互动,客厅沙发区的的设计采用传统的电视+沙发模式。不同的是,设计师将电视背景墙进行了简化,黄橡木色的墙板上嵌入可以自由加减组合的置物板用于简单陈设品的陈列,让原本被新家装设计理念所诟病的电视背景墙区域变得干练时尚。

沙发和茶几的选择是这个空间的亮点,也是整个空间的亮色。蓝色+橙黄色沙发简约又灵动,可以随意摆放的沙发靠不仅改变了沙发的使用人数限制,也让这个区域的场景重构变得更加随心所欲,既能找到自己平时的专属位置,又方便家庭聚会时更多人的坐卧聚集。轻巧时尚、可以随意拆分组合的几何三角形茶几同样对空间的变换使用游刃有余。
经过疫情的洗礼,大家对一成不变的家居空间心生厌烦,更加追求灵活多变的居家场景所带来的新鲜感。设计师所打造的这一围炉空间也在疫情期间得到了很好的验证。


楼梯的设计灵感来自钢琴的琴键,z字型的踏步设计增加了台阶的进深,智能的灯光随行而亮,既保证了行进的安全,也增加了楼梯的律动感。
餐厅.
新生活方式
厨房和餐厅是设计师重点打造的空间,也是打造家的仪式感最重墨的地方。在设计师看来,好的开放式厨房应该是主空间的延展,与主空间和谐统一,在动线上也保持统一,让下厨成为一种家庭交流活动。设计师打破常规,将原来的一个厨房和一个小储物间的墙面拆除,合成一个中西开放式厨房。通过开放式的格局,增强了家庭成员的互动性与连通性,让业主在客厅就能看到在厨房中家人忙碌的身影,形成一种无声的交流。

两个空间不能拆除的承重墙就势延伸出了岛台和餐桌,即可容纳一家人平时的用餐,还可以延长桌面,满足节日更多人的家庭聚餐。一体式的橱柜及酒柜,嵌入式的厨电让这个空间满足强大的收纳还十分整齐。

设计师高超的收纳术像是一个隐秘技能,让这个空间内所有的物品都有合理的位置不会造成使用过后空间的凌乱。在设计中,设计师充分调研了下厨人的习惯动线及饮食习惯,将厨房操作台、调料区、备菜区都进行了专业的设计。

除了收纳空间的精细化设计,在照明方面,设计师更是运用了主灯+辅助照明的形式。餐厅造型简洁时尚的球形吊灯搭配中西厨区域的嵌入式顶灯组成主照明,既能够营造简约时尚的空间气氛,又能适应厨房多油烟、用水频率高的环境。
在吊柜底部安装的自感应灯带,橱柜、酒柜内部加装的感应灯组成区域的辅助照明,让切菜、洗碗、找调料、餐具收取都十分安全、方便。

家人.
无微不至的细节

妹妹房间
“做最细致的设计给我妹”,对于这个家里还在上学的妹妹,业主给予了最无微不至的关怀,从功能到搭配,与设计师反复强调一切最细节的布置。
橙色系搭配淡淡的灰色调,配合简约内敛的木质肌理,取得适宜生活的温度平衡。考虑到妹妹还在上学,对书本、杂物的收纳需求较大,设计师特意设计了多储物的书柜,加长的书桌。
设计师还在墙面上为妹妹规划了一块精神园地——一大块软木板,可以任由妹妹随意发挥,喜爱的偶像、自己的作品、奖状......都可以随意张贴,满足心灵的自我释放。

父母房

沉稳的木色搭配浅色的床品尽显优雅品味,整个父母房的设计简单大方。背景墙柔软的布纹肌理线条,为空间增添细腻灵动的情调。无主灯设计,空间更简洁、自由。
作为父母房的设计,主要考虑到父母的生活习惯,在墙面增加电视的设计,为父母在卧室时增加了一份热闹。
考虑到业主父母在闲暇时喜欢侍弄花草,设计师在阳台上设计了空间层间错落的绿植架,空间上减少了摆放面积,也为房间增加了一丝生机与活力。绿植架的对面是为父母添置的一台按摩椅,方便不能外出的日子里的身体保健。
男主人空间.
家中之家
二楼的空间包括了一间卧室、一间书房、一个独立卫生间,是男主人自己的生活空间。此空间,设计师的匠心之处在于既考虑了男主人当下的个人爱好及生活习惯,又将空间进行了至少五年的前瞻设计,能够轻松应对未来家庭结构的变化。

卧室的阳台设置了地台与室内区域进行划分,这个地方将来可以作为小夫妻独处的茶空间,也能变成将来宝宝的玩耍空间。地台边缘设置了夜间照明设备,搭配床头灯,可以很好解决夜间照明问题。
卧室空间以咖色为主调,在床头墙板和衣柜的连接处选用红色的壁布来提升空间的喜庆氛围。
点击空白处发现书房里意想不到的设计
设计师始终不忘将空间营造的更加舒适及有品质。加长的书桌,同时放置工作需求的两台电脑也很宽松。一整面墙的书架让空间充满浓浓的书卷感。
书房的设置采用了空间叠加术,既可以作为书房、客房或将来用于儿童娱乐空间使用,墙面上隐形收纳的折叠床也满足了客房的使用功能。
室外效果图▿



好物清单▿

单品选自法国写意空间 如果您喜欢,可在共合设公众号私信我们~
设计师说
SAID BY DESIGNER
共合设:对空间做了哪些调整呢?
设计师王云河:首先,我们对视觉中心的楼梯进行了重新设计,让楼梯变成钢琴键,营造大音希声、大爱无言的情感表达, 是无声胜有声的美的意境。
第二,考虑到餐厅、厨房和相邻的小房间面积较小,使用不充分,于是把三个空间打通进行结合。
共合设:空间里有哪些独具匠心的设计?
设计师王云河:二楼书房的床是多功能的,可以变成收纳器,很实用!
业主需要一个整理仪容的地方,于是我们在酒柜的门板当中设计了一个镜子,不开灯的时候是镜面,打开就会有灯光。
共合设:具体通过哪些设计提升人在空间里的幸福感呢?
设计师王云河:业主从英国留学回来,他想在客厅放一个壁炉不要电视,但我建议还是保留,虽然我们很少看电视了,但回到家能陪父母一起看电视一起聊天,能更好地增进感情的交流。
妹妹虽然在外地上学,但业主希望给她在老家留一个房间,有一盏灯永远为妹妹亮着,希望给她带来心里的温暖。
因为有家人为我们镇守一方,所以我们才有勇气奔走四方,脚下是三三两两,远方是心心念念,一岁里一寸欢喜,无论身处何方,家人细致入微的关怀总会萦绕着彼此,愿一家人在新的房子里,阳光满路,温暖如初。
关于设计师
ABOUT DESIGNER

共合设 设计师会员
恒典装饰设计总监/王云河
2008年度第七届中国室内设计双年展大赛铜奖
2010年作品(飘逸)荣获亚太室内设计大奖
2011搜狐·德意杯第八届中国室内设计明星
2013年第八届中国国际空间设计大赛
2015第十届中国国际建筑装饰及设计艺术大赛
2015年梦天设计杯设计大赛设计银奖
2016至2017年河北省十佳创意工作室
2018腾讯家居年度设计第二届金腾奖“设计大赛风采奖”提名
2018美国认证协会认证国际设计师
2018-2019年度4040中国(河北)杰出青年设计师
2019年设计成功获得原创作品登记证书认证
2021年第五届家装产业红鼎创新大赛旧改TOP10
-END -
共合设·品牌运营中心
撰文、编辑:牛QQ
平面设计:AVIVA 一止
主编:okazaki
共合设官方微信平台整理发布
未经授权,请勿转载