有一种美叫新中式,这套143㎡大平层,透出原木质感,古韵气质
设计赢家
2021-09-08
新中式是中国传统文化在当前时代背景下的演绎,它传承了传统中式风格的精髓,通过与现代潮流的对话碰撞而产生的创新。新中式风格在设计上延续了明清时期的家居配饰理念,提炼了其中的经典元素并加以简化和丰富,在家具形态上更加简洁清秀,空间配色上也更为轻松自然。


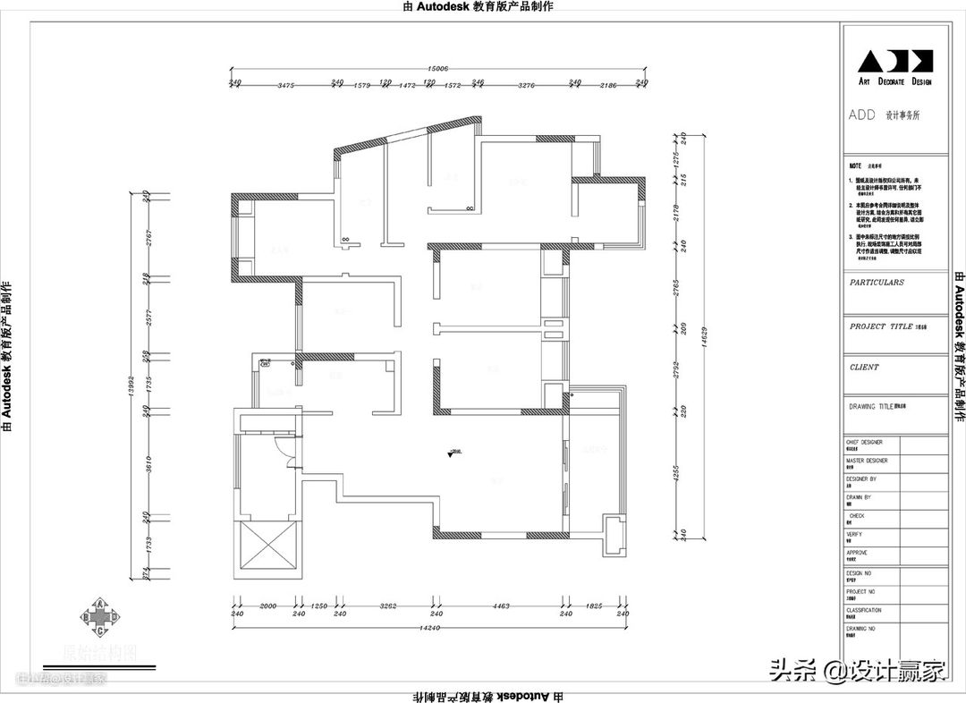
原始户型
本案原始户型为5室,餐厅面积局促,过道狭长,主卧衣帽间无采光,且为异形户型,给日常生活造成诸多不便。

结构改造
设计师打破原始格局,最终改为2个套房加1个茶室的格局,让空间布局更为合理,生活更舒适。设计师将厨房和生活阳台连通,打掉了厨房正面和右边的墙,做成了开放式厨房,这样在增加厨房操作空间的同时,也放大了餐厅。再就是打掉原始次卧临过道的墙,将其做成柜子,把剩余的空间划分到老人房,做成衣帽间,设计师对老人房与主卧的进门位置做了调整,缩短了过道长度,打破了空间的压抑感。然后在次卫做了壁龛,将异型角落充分的利用了起来。

案例详解
门厅
一进门,迎客盆景映入眼帘,高高的底座将其衬托的悠然挺拔,与中间圆形的镂空屏风组合成最自然的装饰画,再搭配以温润的木质,显得精致和谐。

鞋柜中间留出的台面可以放包包、钥匙等物品,第一时间将双手解放出来。常穿的拖鞋可以放置在底下悬空的地方,方便取用。

客厅
木纹饰面板颜色厚而不重,对称的墙面设计,色彩错落有致,有一种秩序之美。中式复古吊灯发出的光晕与筒状灯照射在背景墙上的光效形成呼应,阳光透过落地窗洒向客厅,给空间带来极好的采光。

地面铺陈的地毯好似汹涌的波涛,也仿佛艺术家的水墨丹青,为空间增添了一丝动感。木质与布艺结合的联排沙发,搭配考究的茶几,使客厅的中式风更加浓郁。

一把太师椅尽显稳重之气,地毯上的蒲团营造了一种休闲放松的氛围,二者形成的反差在空间的渲染下达到了某种平衡,毫无违和感。

电视背景墙以木饰面板为主,中和了两边墙砖的冰冷感,使空间拥有层次感。电视柜采用中式设计构造,搭配复古风的壁灯,于是,古色古香的气息弥漫于空间当中。

餐厅
客餐厅的一体设计形成了连通共享的空间格局,使得视野更加开阔,空气流通更加随意自在,舒适的生活尺度也是对品质生活的追求。

餐厅是古今风格的融合,古韵十足的单人餐椅与大木板形制的餐桌,搭配现代感的长条椅,造成不同时代的物件在空间中的对话,也是仪式感与休闲气质的一次碰撞。

厨房
开放式的厨房与餐厅动线相连,便于两个空间的互动交流,同时也使空间转换更加便捷。

厨房以斑点砖铺设空间,再以木质橱柜进行点缀,形成冷暖的视觉对比。洗菜区、切菜区及炒菜区动线流畅,使烹饪成为一件轻松的事情。

过道
水墨意蕴的挂画为空间注入了灵动气氛,设计师以简单的视觉意向来表达内心的丰富内涵,简约不简单。

主卧
纺锤形吊灯若隐若现的视觉效果,增加了空间的通透感,飘逸的纱质窗帘在微风中恣意摆动,幽静的休憩空间就此呈现在眼前。

极具东方特色的山水画提升了空间的艺术品位,也因此成为空间的点睛之笔,并与斗柜墙上的挂画遥相呼应。床尾巾的铺设彰显业主对于精致生活的追求,墙面融合的木质元素增加了卧室空间的柔和感与亲切感。


一排窗帘围绕的这一方天地是女主人梳妆打扮的空间,同时也是一个简易的换衣间,业主常穿的衣物可以放置在这里,生活有序,更显从容。

功能实用的衣柜设计,可以轻易收纳长短衣物,大小包包,白色搭配木纹地板,柔和温润。

次卧
浅米黄搭配木纹饰面板,呈现色彩的渐进效果,显得素雅柔和。山水壁灯与空间主灯搭配,展现次卧的古韵色彩,孔雀蓝的床品效仿主卧铺设了床尾巾,营造出一个放松的睡眠空间。

镂空的木质隔断将卧室与衣帽间区分开来,同时又毫不妨碍两个空间的连通性。衣帽间上薄下厚,按需储物,充足的收纳空间能轻松放置父母的生活物品。


书房
书房与主卧之间只有简单的隔断,空间互相融合,彼此功能分离。

一整面墙的书柜收纳能力惊人,可以装下思想,也可以安放兴趣。

书桌后的榻榻米可以消除业主阅读后的疲倦,也可以享受阳光带来的恩赐。

茶室
来到茶室,视线从简洁的墙面跳跃到构成元素丰富的红墙,设计师一改传统茶室清幽的格局,运用象征火热的色彩打造出一个洋溢着生活激情的品茶空间。

两个并排的展示柜摆放着有关茶文件的书籍和器件,中间凸出墙面渐隐的展示架陈设的是各种喝茶的器皿,空间中不时还飘来阵阵的茶香,像是业主早早泡好的茶一般。

邀三五好友,就一壶清茶,轻松拥有惬意的闲暇时光,鲜明的色彩对比让空间更具个性。


卫生间
彩色浴室柜搭配浅色的墙地砖,能够提亮空间,弥补采光不足的问题。

次卫的壁龛设计完美的利用了异形角落空间,盥洗区与卫生间分离开来,可提高空间的利用率,给生活带来方便。
