这位53岁阿姨的“厨房装修”,值得写入教科书,真的太有智慧了
家居设计师COCO
2021-09-13
在中国的古代有个陋习:“女人吃饭不上桌”
虽然在现在,这种陋习基本已经消失。
但是,每当家庭聚餐,你会发现,还是会有一个身影,在厨房里忙碌。
这就是中国封闭式厨房的弊端,零交流、零互动。
特别是一些小厨房、小餐厅的户型,更是让人无法体验到厨房带来的幸福感。
本篇文章的主人翁是苏州一位53岁的阿姨,她为家人做了半辈子饭,永远是一个在厨房默默地付出。
所以,在第二次装修的时候,她做了6个超有远见的厨房决定,把“餐厨一体化”,打造了一个氛围感十足的厨房,非常值得学习。
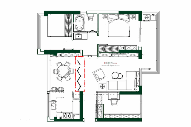
餐厨一体化设计
对于厨房,阿姨有个“开放式厨房梦”,因为不仅好看,还能在做饭的时候和家人互动。
然而除了大豪宅,普通的住宅,想要开放式厨房太难了。

▲餐厨一体化
在国内,开放式厨房有两个非常明显的缺点,让很多人望而却步:
- 油烟问题。
- 开通天然气的问题。
▲餐厨一体化
但是,当阿姨看到别人家“餐厨一体化”设计的时候,恍然大悟。
于是,她家厨房也做了开放式设计,她把餐厅也进去了厨房,在餐厅的位置加一到推拉门,解决油烟和天然气的问题。

▲餐厨一体化
这样设计,不但实现了开放式厨房的梦想,而且让厨房使用面积扩大了1倍。
平常折叠式的推拉门处于打开状态,丝毫不影响空间的通透感。
▲阿姨家的餐厨一体化
餐厨一体化设计,这对于小厨房、小餐厅的家庭来说,太实用了,堪称教书级的智慧。

▲餐厨一体化
装修完的餐厨一体空间,既不担心油烟问题,又扩大了厨房的利用率,最主要的是颜值满满!
▲餐厨一体化
餐厨一体化的厨房,还实现了小小的岛台梦,而且拉近了厨房和餐厅的距离,让一家人都可以在一个愉快的空间内交流,拉近家人的距离。
除了餐厨一体化的设计,阿姨还做了其它几个超有远见的决定,让厨房越用越顺手。
厨柜能做抽屉,尽量不做隔板
▲抽屉设计
无论你的厨房是找木工打制还是定制,无论厨房大小,阿姨建议橱柜能做抽屉,尽量不做隔板,体验过的人才知道有多爽。

▲传统隔板设计
常规的橱柜,往往都注重柜门的外观,忽视内部的规划,里面是一层层的隔板,虽然分了上下两层,但是空间很难充分利用。
如果柜子里面塞得满满当当,那你要拿取里面的东西就要把外面的物品全都挪开,非常不方便,而且很浪费空间。

都知道日本太太都善于收纳,当你仔细观察日本的厨房,你会发现,善于收纳的日本主妇,他们的橱柜多是抽屉。
▲抽屉设计
抽屉多了,内部区域划分就更加精细,在做物品分类的时候自然也就更容易。

▲抽屉设计
抽屉的数量以及位置一定要根据自己的生活习惯来定制化设计,不能说抽屉好就全部做成抽屉。
点到作为、恰到好处才是设计的精髓。
厨柜适当留空
日子过久了,你会发现不是所有东西都合适藏在柜子内,有些东西还是需要随手拿起来,才足够方便。
▲留空设计
在做橱柜的时候,阿姨把利用率不高的橱柜拐角处留空,做成了开放式储物空间,实用性提高了许多。

▲厨房收纳小“神器”
橱柜的留空,主要是为了这移动小推车,这款可以折叠的小推车,阿姨觉得是厨房最实用的“收纳神器”。

▲移动小推车
如果不差钱,建议厨房尽量添置这个移动小推车,用它收纳不适合放在冰箱里的蔬菜和瓶瓶罐罐,特别实用。
▲移动小推车
特别是用它来替代调味拉篮,用来收纳调味品,做饭的时候拉出来,使用起来特别顺手。
不用的时候,推回到留空的橱柜底部,特别方便。

之所以给大家安利这个小推车,主要是因为它的诸多优点,是厨房的小帮手。
例如它无需安装、可折叠不占空间、防锈烤漆耐用、静音万向轮移动方便、容量大自带沥水篮等等。

除了用在厨房,它还可以应用在很多场景。
例如有婴儿的家庭,放在床边,就可以作为放奶瓶等婴儿用品的收纳架。

还可以放在阳台作为养花的置物架。
放在客厅作为水壶、杂物置物架。
放在餐厅作为餐边移动收纳架。
保持台面“空无一物”
喜欢乱糟糟的台面,多少会影响下厨的心情,而且台面东西一多就会乱,一乱那就显得整个厨房很“没品味”。

始终保持台面“空无一物”,可以提高厨房的幸福感,让厨房看起来就舒心。
阿姨说:要做到这一点看似简单,但是做起来也不容易。
- 首先你要给厨房里的每件物品都归好位。
- 随手清理。
- 合理的收纳
特别是厨房的收纳,在这里多了“啰唆”几句,因为它是关乎厨房是否实用的关键。
▲上墙设计
比如勺子、锅铲等常用工具,放在抽屉里既放不下,拿取也不方便,那就可以利用置横杆式的物架“上墙”。
另外,合理地利用厨房“闲置鸡肋”空间,更是厨房越用越顺手的关键。

▲插入式悬挂架
比如,把吊柜下的“闲置”,利用插入式悬挂置物架收纳一些杂物,会非常方便且完美利用了空间。

▲插入式悬挂架
橱柜内也可以利用这种插入式悬挂置物架,把浪费的隔板“层高”利用起来,收纳更多的东西。
▲酒杯专用置物架
利用酒杯专用的插入式悬挂置物架,可以收纳酒杯,既美观又实用。

▲门板置物架

利用门后闲置的空间,安装上一个门板置物架,收纳一些方便袋之类的杂物,既节省了资源又利用了空间。
这些看似不起眼的“小决定”,在生活中起到的作用是实打实的的“接地气”,不华丽呼哨,让生活变得更加便捷。
防油污贴,减少家务量
厨房油烟大概是让所有人都比较头疼的一件事吧,尤其是灶台上方的墙面,不管油烟机多优秀,这一块墙面都避免不了油烟的“光顾”。
厨房要想用起来舒心,就要尽量减少这些让人头疼的家务活。

▲虽有用但是不好看
以前,看到过很多人会在灶台周围用“罩子”做一圈防护,说实话虽然能抵挡油烟。
但是真的“巨丑”,要知道小小的厨房在装修时也是花了好几万的,颜值个格调自然不能丢弃。

▲防油污贴
阿姨觉得,这时候可以使用透明的防油污贴,不但不影响美观,体验感也非常好。

▲防油污贴
防油污贴是透明的,就像纸一样薄,可以直接贴在墙上,不用胶。
贴墙上的效果就和不存在一样,完全不会破坏我精心挑选的墙砖效果。

▲防油污贴
平常做完饭后,用抹布随手擦两下就可以,一般情况下,经常在家做饭的家庭,防油污贴纸两个礼拜更换一次即可。
这种贴纸也不贵,经常换也不会心疼。

而且贴纸从墙上撕下来以后也不会在墙上留下胶水印,常换常新,这样墙面就能始终保持干净清爽的状态了。
减少家务量的厨房,才能让人越用越顺心。
保持锅具的洁净如新
想要厨房用得顺心,自然少不了不吃厨具的洁净如新。
然而日子过久了,家里的厨具、锅具就会有一层黑色的污垢,这种污垢可能是因为汤汁长时间的积累,也可能是铁锈,总之不管是什么,就是很难看,严重影响厨房的颜值。

大多数人在去除这类黑渍时,用得最多的方法可能就是钢丝球+洗洁精了,但是不仅费时费力还会刮花锅具,关键是效果也很不理想。
▲不锈钢去污膏去污效果
偶尔的机会,阿姨从一位家政师傅那里了解到,专门去除锅底污垢的不锈钢去污膏,本来也只是尝试,没想到不但没翻车,反而出奇的好用。

这种去污膏看上去就是一种普通的白色膏体,但是去污效果好,使用方法也非常的简单。
1、先用清水打湿锅底。
2、用海绵蘸取适量去污膏。
3、反复擦拭锅底至干净。
4、用清水冲洗干净即可。
整个过程也就5分钟,比起钢丝球动辄半小时来说,那简直太轻松了。

它之所以,被广大网友安利,甚至连家政阿姨都赞不绝口,除了去污效果好以外,还有以下几个优点。
- 不伤手,膏体中含有植物椰子油成分,比洗洁精温和得多。
- 不刺鼻,没有明显的刺激性气味。
- 防锈抗氧化,在去污过程中会在不锈钢表面形成一层保护膜,防止生锈,全面养护。
- 适用范围广,除了锅具以外,还可以用在灶台、油烟机、水槽等处。

清洁小建议:如果污垢比较厚重的话,可以先把清洁膏均匀地涂抹在器具上,用保鲜膜包住,静置一晚,第二天再按照使用方法清洁一遍,效果会更佳。
文末总结:
厨房是否用得顺心,是否越用越顺手,除了“餐厨一体化设计”以外,阿姨还为大家分享了一些实用的小决定,最后在这里做下总结:
- 合理的布局,巧妙的设计,满足自己的需求。
- 合理的规划橱柜内部空间。
- 利用实用的收纳工具,极限利用厨房闲置空间,提高厨房的收纳能力。
- 做一些减少家务量的设计。
- 使用顺手的清洁工具,保持厨具洁净如新。
当厨房的灯亮起来,房子才会变成家。
柴米油盐的厨房,当充满欢声笑语的时候,就会变成充满诗情画意的风景。