81㎡极简风的家,干净纯粹
JORYA玖雅
2021-09-26

简洁的能力意味着消除不必要的东西,从而使必要的东西可以说话
——勒·柯布西耶
这次的案例是一对年轻夫妻的家,男屋主曾留学法国,见识过凡尔赛宫的极致繁复,也曾为现代主义大师们的作品深深折服。
这次找到我们来做设计,他提到对新家的期许,他希望组成家的风格要素,应该是经典耐看、永不过时的。设计师不负所望,仅用几种非常简单的材料,为屋主夫妻呈现出了一个简洁,而又温柔隽永的家。
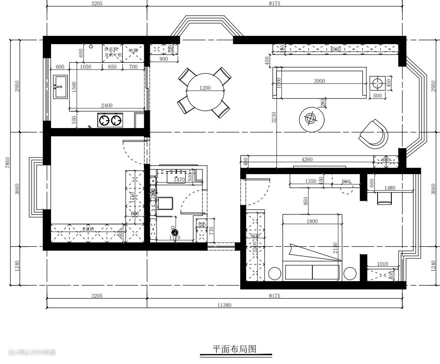
户型分析
原始平面图:

这个户型从采光、通风、布局上来看,都是几近满分。(为屋主选房的眼光点个赞~)
1、采光,整个房子3面都有窗,客餐厅区域更是有2扇180度的钻石型落地窗,视野和采光都非常棒。
2、通风,除了卫生间需要靠排气扇通风,其他区域均可以形成穿堂风,夏天能省下不少空调费,这也是屋主没有选择中央空调的原因之一。
3、布局,交通面积小,每个空间布局合理、大小合宜,仅需要做微调。
墙体拆改图:

空间改造:
1、玄关处的凹墙原本进深为22厘米,后期只能做斜式层板鞋柜,使用起来舒适度很差。设计师从卫生间“借”了13厘米,将进深调整为35厘米,这样就可以正常收纳鞋子了。
2、厨房是个正方形的空间,非常适合高效的U型厨房布局,设计师将左侧原本57厘米的墙体扩展到了60厘米,便于橱柜找齐。
3、主卧加建了一道60厘米的墙体,让定制衣柜可以隐身墙内。
最终平面图:

实景照片
玄关:

从黑色入户门走进来,可以看到两段式的白色收纳柜、磨砂玻璃门、大块淡灰色水泥砖,色调是清冷的,但质感却很温润。
餐厅:

餐厅在厨房和客厅当中,占据整个空间枢纽的位置,如果用长桌或者方桌,必然会产生一定程度的阻隔,导致动线不畅,设计师选用了除去棱角的圆桌来“顺滑”这一块的动线。

玻璃桌面搭配透明悬臂餐椅,如同水晶般晶莹剔透,放置在光线充沛的落地窗前,散发出干净纯粹的气息。
世界上第一把悬臂椅是著名荷兰建筑师马特.斯坦在1926年设计的,这种没有后腿的椅子看上去动感十足,又轻盈飘逸,一反传统座椅稳重保守的姿态。因为悬臂椅出色的设计理念,改变了世界1/3天际线的建筑大师密斯.凡.德罗,也开始在此基础上进行创作,最后让悬臂椅逐渐为大众所熟知。

全屋通铺哑光灰水泥砖,神似水泥自流平细腻的质感,因为没有材质上的区分,整个客餐厅区域视觉上显得开阔透亮。
水泥砖营造出的高级感,不适合搭配存在感太强的踢脚线,设计师用黑色隐形踢脚线+黑色门套来勾勒线条,让整个立面看上去没有丝毫赘余。
隐形踢脚线安装的方法很简单,就是在墙面贴一层石膏板(等于自己新建一面墙),连找平的步骤都省了,神不知鬼不觉地把伸缩缝给挡上了。不过石膏板会增厚墙面,占用一定的空间,寸土寸金的小空间要酌情考虑了。

餐桌在玄关的尽头,一进门就能看到,餐厅灯的选择就尤为重要了,设计师选择了FLOS的Frisbi吊灯,每次打开灯,光线会从灯罩反射到漫射盘上,远远看去就像悬停在半空中的飞碟,优美灵动。
客厅:

客厅的横向跨度是3.88米,如果按照传统的方式让沙发靠墙,收纳柜放在对面,一个是会显得过于空旷,还有就是屋主坐在沙发上时,眼前会比较杂乱。
设计师在沙发背后加了一组进深35厘米的通顶收纳柜,敞开的展示区可以放投影仪、书籍、摆件等,封闭起来的柜体用来收纳生活上的杂物。

电视墙留白,正好充当投影仪的幕布,拉上窗帘,客厅一秒就变身私人影院。

为了安装嵌入式灯具和新风,做了10厘米的全屋吊顶。因为层高不算高,所以设计师选择了相对低矮一些的家具,让空间更显舒展开阔。

这组无扶手的模块化沙发,可以根据屋主当下的使用需求来进行拼装,灵活度很高。宽窄不一的坐深,不管是盘腿坐或是半躺,都非常的舒适。

温柔的浅米色沙发套,是由科技布制作而成,屋主家的小猫咪可以在上面尽情跑酷不怕划伤~

沙发对面是一组地柜+悬挂式收纳柜,白色按压式柜门,没有多余的装饰,完美融入到了整个氛围中。


被纱帘滤筛后的阳光静谧柔软,能治愈所有的压力与不快。
厨房:

U字型的厨房,总是能带来很多幸福感。洗菜—备菜—烹饪—餐后将碗盘放入洗碗机,整个流程便捷顺畅。

厨房有一整面窗,光线极佳。设计师选用深灰色的水泥墙砖与浅灰色地砖拉开层次,用白色岩板台面和柜门来提亮,将整个空间里的黑白灰过渡得柔和自然。
卫生间:

卫生间是全屋唯一没有窗户的区域,设计师在盥洗区和淋浴区的吊顶一侧,加入了漫反射灯带,模拟天光的照射。

洗手池水龙头、马桶、淋浴花洒均采用了暗装的方式,外观上干净利落。

米色墙砖、深灰色墙砖、水泥灰地砖均采用了同色系的瓷缝剂,与砖融为一体。墙砖与地砖还做了严格对缝,极简风的高级感就藏在一个个细节里。
主卧:

卧室延续了柔和的中性色,让人心绪宁静。
次卧:

次卧现在定位为客房和收纳间,L型的收纳柜与书桌相结合,充分利用上了每一寸空间。

本期案例介绍完毕
感谢观看~
设计机构:JORYA玖雅
设 计 师 :景森
设计面积:81㎡
房屋位置:大兴区芳源里
户型:两室一厅
装修花费:40W(硬装+主材)
带尺寸平面布局图:
