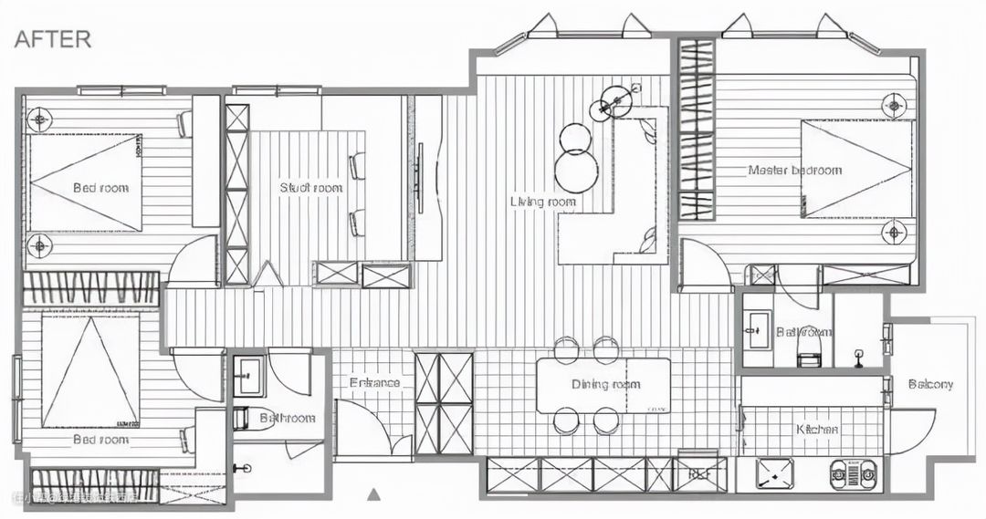
115㎡美式轻奢风,柔和中带着清爽太迷人了
绿港装饰铁西店
2021-09-28
这是一套室内115㎡的美式轻奢风住宅,奶油色与优雅蓝的搭配营造出一个温馨浪漫的居家氛围。用混搭的方式融入美式和欧式气息,其中白墙搭配黑色折叠半窗,颇有现代美式的风采,而莫兰迪蓝色墙壁则是简欧风,厕所半墙花砖也很漂亮等等。每个空间功能区都有自己独有的特色,不同的角度给人不一样的视觉体验,空间更为丰富多彩。

玄关
玄关和餐厅相连壁面的收纳柜,内凹台面收纳进出常用小物,小吧台餐桌后方收纳占据整个墙面,延伸到和玄关相连处,形成一个L型收纳空间。每个房间设大面积衣柜,书房和房间靠窗处卧榻下方也有收纳机能。

客餐厅
公共空间都以莫兰迪色打底,再用白色收纳柜减缓视觉压迫感,空间柔和中带清爽。屋子本体原有窗户就颇多,为了发挥采光优势,让大量白色映衬明亮日光。和客厅相连的书房、餐厅和厨房改半开放,玻璃拉门延展日光,像个阳光屋般让人心生向往。

以混搭方式纳入美式和欧式气息,让白墙配黑铁折叠半窗,有些美式风范,莫兰迪蓝色壁面则是欧风感,厕所半墙花砖也很漂亮,可在拍近照时增添产品风采,切换着不同风格的空间,让屋主拍照时比较多选择角度。

客厅
客厅的窗户占据了一整个墙面,采光极好,为了延续优点,更换全新铝门窗后配白色木百页扇,可视需求调整日光引进多少。靠窗处有卧榻隐含收纳空间,家人访客较多时,无需担心座位不够。


墙面选用淡奶茶色搭配线板,温润舒服,沙发背墙切换成莫兰迪蓝及线板装饰,空间视觉有了主轴,以暖色蓝配上柔和奶茶色,还有浅色超耐磨木地板,勾勒居家自在感。


书房
和客厅相连的书房做半开放,打掉部分墙面并补强基础工程,以折叠式玻璃拉门为区隔,视线得以穿透兼具采光。靠窗规划卧榻加隐藏收纳柜,适合白日时光闲来无事窝在上头放空。


书房为了孩童长大后需要念书的空间而准备,折叠玻璃门以玻璃材质透明看似无形的方式,温柔区隔家人间的领域,彼此显得亲近。书桌后方墙面规划柜体,两侧有展示架,柜体看起来比较不笨重兼具展示功能。

餐厅&厨房
餐厅地中海风情的蓝与白带出舒适大方,小吧台餐桌有着柔和圆弧造型,延续客厅莫兰迪蓝搭配地板缤纷花砖,餐桌则悬挂巴黎都会风吊灯,花瓣造型透明灯罩打出柔和光晕,像是置身咖啡馆般悠哉。

背墙设设置了收纳柜,上方台面做展示柜也可摆放小厨电,菱形大理石砖背墙和水磨石台面,呈现细致跟粗犷完美质感,墙面规划的L型收纳橱柜,和玄关相连柜体内规划吊衣空间,贴心收纳外出衣物。

厨房保留原始柜体,更换成灰蓝色美式门片,料理台面以水磨石配水蓝色烤漆玻璃,方便清洁。亮面玻璃质感与粗犷水磨石产生视觉冲突,地板铺着灰色花砖,厨房以轻巧装修技巧,营造出国外居家感。

厨房尽量挑选深色系建材,因应料理容易有油渍产生,日经月累产生的油垢,看起来比较不明显。比起公共领域色系,主卧房略带粉色,背墙用简约线板以对称四六比例带出层次感。靠窗处卧榻可坐可卧,下方还有收纳机能,搭配白色百页扇调节采光度。

主卧
主卧略带粉色,床头背景墙用线框装饰,带出空间层次感,床头靠背做了弧形设计让线条更为柔和,更具有延展性,同时床头两侧摆放小尺寸圆桌,取代床头柜更具有都市现代感。为了让卧房的粉色具视觉层次,床头板以倒圆角柔化表面,摆放小尺寸圆桌取代床头柜,桌脚带些现代感。



主卫
主卫入门右侧利用墙面规划柜体,可收纳脏衣或小物品。纯白简约的卫浴柜体,凸显花砖活泼图样。延续主卧房粉色,画出靠天花板处的色块线条,其余铺上欧风感壁砖,以1比9视觉比例区分色块和壁砖领域,视觉多些活泼调性。

次卧
灰绿色作为次卧墙面的主色调,床头木格栅搭配配灰色特殊涂料,营造略带日式禅风的质感。简单舒服的配色让客房成友人来访时,舒适的睡眠场域。


次卫
次卫使用了截然不同的配色,干湿分离,干区以同款但不同色的蓝作为壁面瓷砖,而且往天花板做到满。湿区则是以三种不同素材瓷砖营造视觉层次,除了和干区一样花砖之外,再铺上大理石白跟湖水蓝马赛克砖另外两种瓷砖,蓝色系卫浴空间,仿佛置身在蔚蓝天空里,很有层次。
