100㎡简约原木风,大白墙+原木质,让空间简约舒适
设计馆
2021-10-10
在这套近100平米的房子中,整体空间以木地板+大白墙的空间,营造出一种简约原木风的气息,通过布置灰色调的舒适软装,以独特的空间格局设计,让不规则的户型也实现了一个轻松舒适而简约大气的居住氛围。
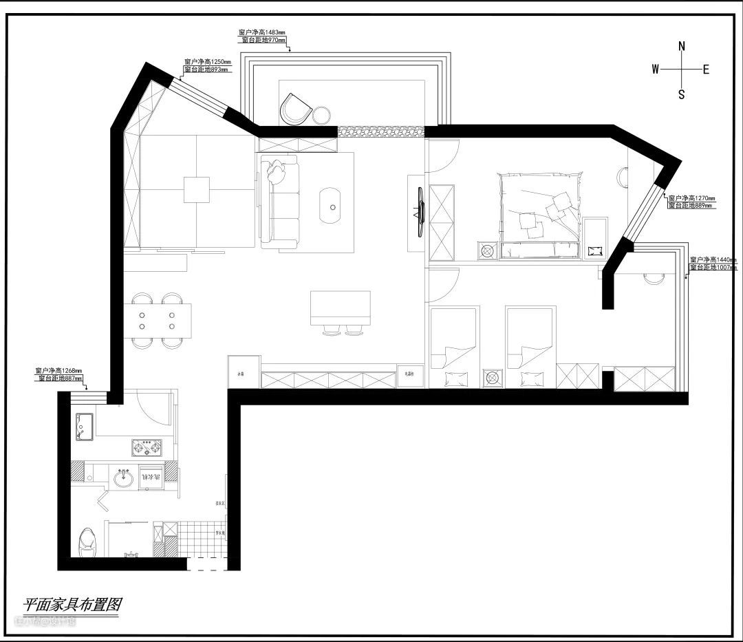
平面布置图

▲平面图可以看出,这个房子的户型的四角不太规则,但通过巧妙的设计构思,也是实现了一个方正舒适的空间功能;而在客厅后还加入了一个多功能榻榻米房,让居家空间更加有趣。

▲客厅以无主灯的天花,加入明装筒灯与嵌入式灯带,让空间显得简洁大方。整个空间以原木色木地板,墙面则是以干净的大白墙,电视墙两侧对称装了房门,让空间显得更加极简大方而舒适。电视机壁挂安装,下方布置原木电视柜,窗户以百叶帘的设计,让空间显得私密明亮而大气。

▲沙发区域垫上灰色地毯,布置浅灰色布艺沙发,加上一张实木茶几的设计,沙发边上定制一个木质感的收纳展示柜,让客厅显得简约舒适而实用;客厅侧边柜子旁的阳台以防腐木地板,中间以鹅卵石过渡,布置休闲椅,提供了一个轻松舒适的休闲位置。

▲客厅旁边定制一个中岛台,后方加入西厨操作区,为主人提供了一个多样化的休闲、西餐烹饪的空间,在木质感与白色的整体空间下,中岛台以灰色的岩板材质装饰,也让空间显得更加舒适优雅而时尚高级。餐桌是在休闲室旁边,实木餐桌椅组合,加上实木餐边柜的布置,整个空间也是充满简约实用而自然的气息。

▲沙发后方是一个休闲室,以定制地台抬高,垫上定制的垫子,装上屏风门,内部还装了收纳柜与展示格,整个空间充满简约自然的实用感,让这个空间可以充当家人休闲娱乐、客人睡觉的客房,一房多用、非常实用。

▲卧室与客厅一直的木地板,结合净白的墙面空间,布置一张实木床与婴儿床,床头墙挂一幅蓝白色调的海浪装饰画,侧边木质床头柜,衣柜以木色柜体+白色柜门的设计,天花装一盏木框的吸顶灯,整个空间显得简约优雅而自然。而在床单软装方面,则是以灰色与蓝色的布置,让空间显得更加安静简约而舒适
设计:壹加设计-邓凯 ,点评:设计馆