300m²木地板展厅,无言之诗,空寂之境
风云国际设计
2021-10-16


沉默是种选择,言辞充满了野蛮和谎言,没有比无言之诗更有力的言说了。

项目是都市里的高端建材卖场,各种品牌专卖店争奇斗艳,展示着各自的独特、格调、新颖与不凡,符号化的世界遮蔽了材料本身的物性。
作为传统建材的木地板展厅,试图去除概念,在大环境中保持纯朴,摒弃一切符号性的指向与形式,让光、材质、空间以其本真的属性显现,营造独特的感官体验。



空间是包容着物体的边界,是静止的容器,当我们需要一个展示木地板的空间的时候,我们营造的是一种氛围。
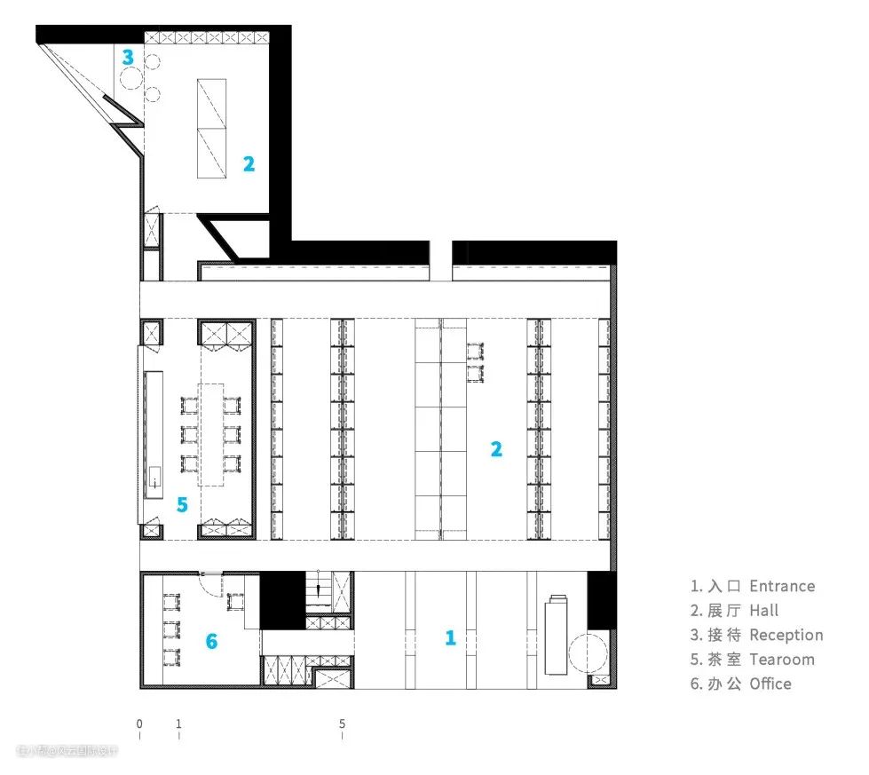
在前侧围合的边界需要洞开门洞让人进入,并有一定的厚度,增加空间的趣味,使人可以短暂停留,同时作为内外的过度。


浑厚的门形成了前厅,门廊通向辅助的储物办公空间,左侧的边界增加厚度以容纳接待用的茶室。
后侧置入了一面和纸的灯箱,达至隐匿边界,让空间趋于无限。围合的区域形成了展厅的核心区域,展示柜以家具的形式按照中轴线陈列于空间中。


前厅门洞和大厅以同样的中轴线布局,呈现同样的节奏,就像一首音乐的前奏,预示了空间的主旋律。人从洞开的入口进入,穿过前厅回廊,或被硕大的灯笼吸引转身,或止步于放置样板的手推车前。明亮的大厅召唤着,正对入口中轴线的长台,中央有缝隙藏光强调中轴的存在。
展柜对称陈列于两边,突显展品的重要性外自身也形成了独特的韵律感,其高度阻挡了人的视线,区分开产品系列,但没有阻隔大厅的连贯性。正上方天花体块与展柜位置一一对应形成同样的阵列,像交响乐中不同乐器的应和,更加强调了空间节奏,给人和谐统一的美感,激发情感共鸣。



空间结构作为场所的骨骼,不关乎建筑传统与形式外观,而着意于人的状态、漫游与驻望;着意于入口、边界与过渡。
好的空间应该有清晰的动线,给予来客明确的指引,使他们自由游览而不至于迷惑,也应有适当的分区,使人快乐体验并沉浸于其间,不受打扰。





材质是空间的表皮,决定了空间的触感与视觉温度。空间的边界部分用白色水泥涂层,它纯净光滑,不传递任何信息,类似于“无”,保护着内部的“有”,并与之形成对比。
在空间内部,桦木多层板作为展品木地板的底部材质,日常处于隐退遮蔽的状态,在这里被用作空间的主要面材,侧面显示出木材压合的条状纹路,表面有细腻的纹路,温暖质朴。



桦木板材做成展柜、长台、抽屉、柜门、桌子、椅子以及包裹着茶室的墙面。
在纯净空间的边界保护下,内部质感更为突显,整个空间诗意静谧,让人安心。



穿过悠长的通道,接待的茶室静待于大厅一旁,茶室一侧设有服务通道,与整个空间连通一起,边界处纤细的格栅过滤了室外的纷扰,坐位区的天花向上倾斜形成凹陷,增加了私密性,给客人安坐的暗示。





细部决定了作品的精准性,细节在材质交接处被认真地审视,在门洞的入口,墙漆和木质护墙板被细小的缝隙分离开来,以区分空间的内与外,开放性与私密感。
板材之间的拼接处留有更细的缝隙,侧板纹理的交错体现每块用料的尺度和受力结构,对每块材料给予尊重。


家具作为空间中的小建筑以相同的材料被构建。椅子刚好满足人安坐的尺度,由四块桦木板组合而成,高度刚好可以推进桌面下方,椅背拉手做了与形体呼应的方形镂空,每块板材清晰明了,几把椅子并排放置时也形成类似主空间的旋律,如一种艺术的回响,激荡着人的心灵。
细部一旦设计得成功就不仅仅是装饰,成为作品的重要组成部分,引导人们去理解整体。


事或物,按照自身的进展终结、消失或者崩溃,而当我们观察和描摹它们时,仅仅是由于它们使光受到了折射,由于它们塑造了光,给予光一定的形态,使我们得以了解认识。材质、表面、色彩、形体在光线里得到显现,阴影得以延伸,情绪在空气中弥漫。
入口是幽暗的,过滤了外部的喧嚣,保护了内部的光明。大厅尽头的透光体如此明亮均匀,温润的和纸让光有了触感,可调的亮度和色温可以模拟不同时段的日光效果,以便让展示的样板呈现在与使用环境相同色温的环境中,也可根据自然中的时节和访客的喜好设定不同氛围的光环境。在它的映照下材质纹理熠熠生辉,空间体块层次分明,入口更加幽暗,内部更加辉煌。


这个空间的墙面地面和天花都被带有自然痕迹的黑色松木所包裹,空间高阔,墙壁有不规则的凹凸,侧面留有窗口,整个洞口被压低,黑色的沙发镶嵌在窗台平面边缘,这一切都隐没在黑暗中,仿佛黑色的洞穴。
从外部温暖明亮的环境进入,人一下子松弛下来,一切都在黑暗中被保护着,处于原始的静谧中,时间凝固,一切平等如初,这正是旧木带来的世界。




诗跟有趣的形态或创意无关,它跟洞察力和理解力有关,也跟真实有关。或许,诗正是未曾预料的真实,它居于沉静之中,建筑的艺术使命正是要给这种沉静的期待带来一种形式。建筑物本身不是诗性的,它可能拥有一些敏锐的特质,使我们在特定的时刻,能以前所未有的方式去理解事物。
动线尽头是作为旧木展厅,展品是从国内外收集来的老木头为原料做成的地板,带有时间记忆的木材呈现出诸多纹理和色泽,非常有特色。



在这里构成现实本体的空间形体、材质、光,按照场所的条件和材质特性自主地生长出来,它们不传递任何信息,没有符号和概念指向,像自然中的事物一样安静地存在着。
如此真实的存在,将人带入安静沉思之境,一段回忆被勾起,一个似曾相识的全新空阔的世界得以展开。现实的事物不断将想象的世界拉回现实以确立自己的存在,想象的世界却因为更多确定性的质料而更加丰富空寂,二者产生的张力给予了空间别样的生命力,即是无言之诗。

项目名称|有木家居Admonter木地板展厅
项目面积|300m²
项目地点|广州罗浮宫家居艺术中心
设计主创|谭立予 彭文博
设计团队|葛鑫 陈泳诗
灯光顾问|赫光照明 吴景民
家具定制|澜德高端定制家居
设计时间|2021.3
完工时间|2021.9
项目摄影|林灿宇