主卧室的方案动线布局,该怎么设计?
湖北岚庭装饰
2021-11-03
1、主卧家具尺度
主卧空间中最主要核心的家具就是:床
常规的床一般分为三种规格的尺寸,分别是1米2宽,1米5宽,1米8宽三种规格。具体如何选择,设计师需要把控和协调这三者的尺寸,建筑尺寸=床体固有尺寸+通行尺寸(注意开柜门的尺寸)。
在整个空间的比例关系当中,床在空间中占据的面积,最大不超过空间面积的50%,最佳理想状态是,床面积/空间面积之间的比例为1比3的关系,关于床体的高度,床垫顶面离地一般在450-600mm左右。

床头柜:通常市面上的床头柜宽度在400-600mm左右,其高度和床垫顶面高度相差不多,450mm左右。两者或多或少有些高差,高差保持在150mm以内都是没有问题的。
小程序,
君艺 全屋配画,,全屋配画小程序
2、主卧家具布局尺度
按照空间布局和形式,
主卧的尺度类型可以划分为以下三种:
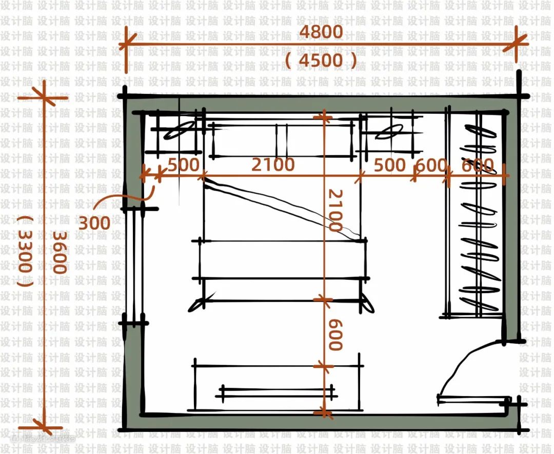
刚需型主卧:一般刚需适用型主卧空间,其开间尺寸大约在3600mm, 进深尺寸4800mm。这样的尺度搭配是满足主卧空间中家具的布局设置以及人在空间中的活动所需要的最小尺寸。

舒适型主卧:通常来说,舒适型主卧空间。其开间尺寸大约在3900mm, 进深尺寸5100mm,相对刚需型主卧来说面积充裕了一些,可以增设更大的衣物储存空间或者增设工作或者休闲娱乐空间。

豪华型主卧:所谓的豪华型主卧其实就是主卧与其他功能区相叠加融合形成一个完整套间,比如主卧+主卫,主卧+衣帽间,甚至是主卧+书房等等。给设计师发挥的余地是非常大的,因此在布局上,除了功能与尺度以外更加讲究布局的形式感和美观性。


二、主卧的基本功能尺度

休息睡眠

女主人梳妆

收纳储藏

视听娱乐

小程序,
君艺 全屋配画,,全屋配画小程序


阅读学习

其他功能
三、主卧的通行动线尺度
衣柜布置在床的侧边时,衣柜和床之间的间距预留600mm以上的通行距离。
600mm是预留的最小距离,如果空间尺度充裕,最好留到800-900mm。
衣柜门门扇宽度最好设置在400-500mm左右,如果有人开启柜门保证人有充足的空间站立或者侧身通过。

如果床前方设置桌椅,桌子的深度大约在500-750mm左右最为适宜。床边到梳妆台或者书桌的距离预留500-800mm,才能保证舒适的通行距离以及坐椅的使用舒适度。
