颐和盛世丨私人别墅花园设计案例
汪工YGF設計
2021-11-13
项目〡别墅花园设计
花园面积〡365㎡
项目地点〡佛山颐和盛世
常住成员〡一家六口
风格定位〡欧式风格
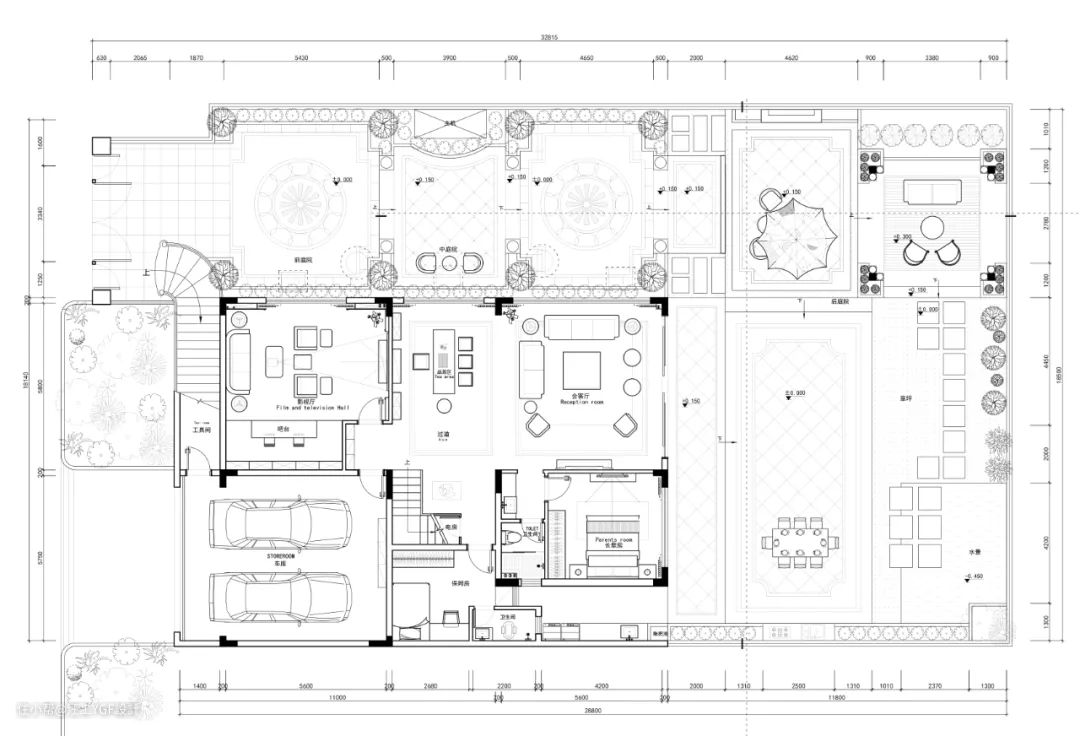
平面图

效果图

颐和盛世位于佛山,四周江河环绕、环境优美,有如繁盛都市中的绿洲。本方案景中汲取灵感,融入现代时尚风格与细腻,营造写意优雅的生活意境。由室内到园林设计、家具以至艺术饰品等细节皆一丝不苟,整体选取大地色系为主色调,并以一系列自然材质及简洁利落的线条,缔造优雅别致的时尚花园。

实景图











汪工YGF設計
2021-11-13
项目〡别墅花园设计
花园面积〡365㎡
项目地点〡佛山颐和盛世
常住成员〡一家六口
风格定位〡欧式风格
平面图

效果图

颐和盛世位于佛山,四周江河环绕、环境优美,有如繁盛都市中的绿洲。本方案景中汲取灵感,融入现代时尚风格与细腻,营造写意优雅的生活意境。由室内到园林设计、家具以至艺术饰品等细节皆一丝不苟,整体选取大地色系为主色调,并以一系列自然材质及简洁利落的线条,缔造优雅别致的时尚花园。

实景图










