【106㎡现代简约】半墙半玻璃隔出意境书房
珠海佳鸿装饰
2021-11-17
楼盘:凯南广场
面积 :106㎡
户型 :3房2厅
风格 :现代简约
客户情况:
业主一共需要三个房间,一个长辈房,一个儿童房和一个主卧,而书房也是照着喜欢的样子做成了一半墙一半玻璃的形式。因为还未有小孩,房间内的装饰以简单舒适为主。

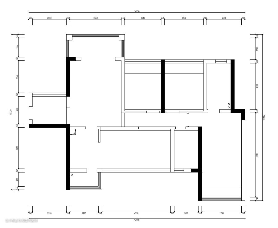
▲(原始户型图)

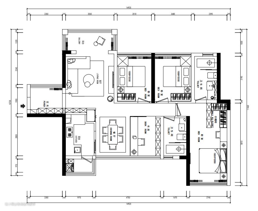
▲(平面布置图)
设计灵感:
根据业主的需要,设计师从简约时尚的角度出发,在客餐厅里面隔出书房,抛弃繁琐的装饰,为业主打造了一个明亮、实用、经济的家。
设计材料:
岩板、长虹玻璃、原木、乳胶漆等
客厅01

客厅作为公共区域,简约的设计风格,将阳台纳入室内,大面积玻璃窗加窗幔的搭配设计,使得空间最大程度释放出来。

电视背景墙利用纯白与茶棕色墙漆的拼接设计,看起来大气明朗。地台摆上太空人的玩偶装饰,同时以吊灯点缀,让空间更加灵动活跃,不失格调且赋予满满的现代感。
餐厅02

餐厅以百叶帘调节室内光线,结合大理石纹的岩板餐桌、灰色餐椅、雅白的斗柜和条纹地毯,营造着舒适而惬意的就餐氛围。小清新的绿植摆放,让整个空间增加了一份活力。
书房03


书房是半墙+玻璃的设计,与餐厅形成隔断,一侧嵌入半开放式的储物柜,增加储物空间,让人眼前一亮。
再摆上有弧度的舒适单椅和抱枕,可看书阅读也可观景,打造成休闲的一角,让屋主不由自主地放松下来。
厨房04

厨房采用了隐秘性极好的长虹玻璃推拉门,呈现出“U”型的结构,相比传统的“L"型结构,增加了可以操作的台面,而且正对天然的采光,让屋主没有后顾之忧。
设计师同时设计了到顶橱柜,充实的柜体中不忘安装吸油烟机,靠近台面,方便拿取和操作。
主卧05

主卧呼应客厅的设计,以奶茶色为主,加上鱼骨纹木地板,空间变得温和且不失质感。软包床卧两侧安装床头柜和梳妆台,满满的设计感,小巧轻盈,时刻散发着生活的仪式感。
长辈房06

长辈房以深蓝色的背景带来更沉稳的睡眠体验,床卧选用灰棕色和格纹的床品,搭配木色的衣柜,色调的搭配让一种优雅的家居气质呼之欲出。
儿童房07

未来小宝贝的房间,墙面同样采用蓝色调,搭配可爱的儿童床和小摆件,整个房间看起来既生动又温馨。同时以通顶的一体式衣橱柜,满足小朋友衣物、绘本、故事书等的摆放需要。
卫生间08

卫生间整体通铺防滑耐脏的灰瓷砖,干湿区独立开来,悬空浴室柜的安装,避免了卫生死角的产生,搭配内藏灯带的方形镜,也使整体空间更整洁明亮。