280㎡意式简约风装修,别具一格的室内设计,满足你对家的幻想
川豪装饰
2021-11-25

本套案例是一套意式简约风装修,上下两层的户型格局。空间面积足够大,因此设计师设计了很多功能区,满足屋主需求。整体设计以当下流行的灰咖色为主导色系,用 硬装和软装营造居家舒适度以及高级感,空间呈现出优雅舒适的氛围。
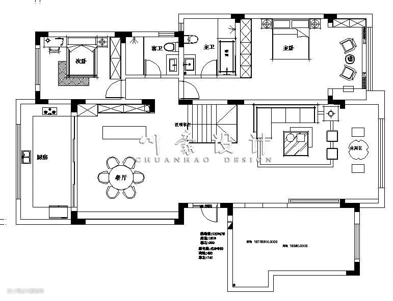
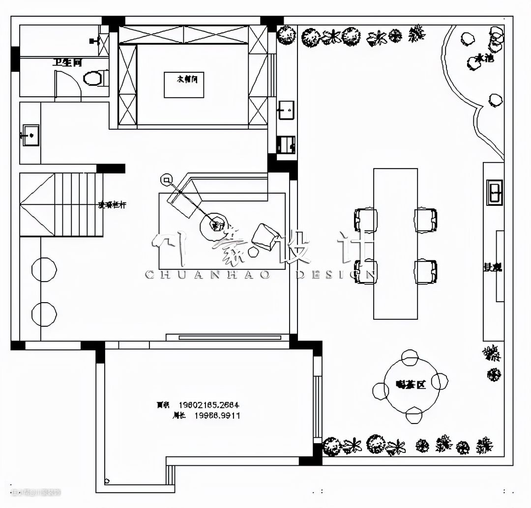
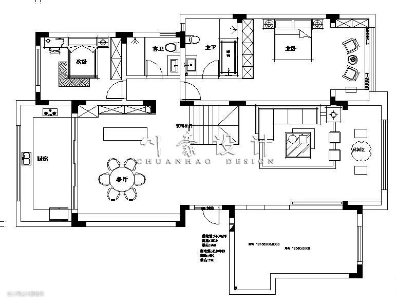
平面布置图
负一楼

负二楼

作品信息:
面积:280㎡
风格:意式简约
户型:3室2厅3卫
设计师:安慧
项目地点:乔治庄园
负一层
客厅

客厅摆放灰色沙发,棕色抱枕作点缀,营造时尚感。客厅没有选择放电视机,而是增加了投影幕布设计,在家也能随时观影,体验不输电影院。
会客厅

小院打造休闲惬意观景区,摆放绿植、假山,闲暇时,泡上一杯茶,和亲友畅聊,最舒适的状态莫过于此!
负二层
客厅


休闲区宽敞明亮,阳光通过大大的落地窗照进室内,不仅满足了室内的采光需求,室外景色也一览无余。无主灯设计简单大方,电视墙是黑色木饰面与瓷砖为背景,结合简约灰的布艺沙发、橙色休闲沙发椅,让整个客厅显得沉稳端庄又不单调。
餐厅


餐厅大理石餐桌搭配橙色餐椅,桌上摆放精致的餐具,优雅的用餐氛围就这样轻松营造出来。岛台的设计平时可以用来做熟食,后方设置整墙式的酒柜,用来收纳酒具和放置装饰物,一物两用,实用性满满。
主卧

主卧设计以沉稳舒适为主,整墙式玻璃收纳柜,满足平时衣物收纳需求。搭配上灰色的布艺床,还有灰色窗帘与软装,再加上独特的造型装饰物布置,让空间显得更加舒适、优雅。
次卧

次卧是儿童房,整体设计以可爱舒适为主。白色木饰面搭配蓝色造型床头背景墙,清新又好看。奶灰色儿童床,以可爱的粉色抱枕和彩色地毯作点缀,色彩丰富却不杂乱。L型整墙式白色收纳柜,与墙面融为一体,显得干净又整洁。